Id 158120

улица Воронцово Поле, 12с3 - 1337 кв. м. - Аренда / Офис / Бизнес-центр

адрес Москва, улица Воронцово Поле, 12с3

Бизнес центр
Офис

4 011 000 RUB | в месяц

(за 1 м2 — 3 000 RUB)

площадь 1 337.0 м2

QR код Qr код

Аренда офиса 1337 кв. м. в историческом особняке в самом сердце Москвы
Адрес: г. Москва, ЦАО, Таганский район, улица Воронцово Поле, 12с3. Престижный исторический центр Москвы, в шаговой доступности от метро Чкаловская (9 мин. пешком), Курская (12 мин. пешком). Здание расположено в динамично развивающемся районе с высокой проходимостью, в непосредственной близости от ключевых транспортных узлов, деловых и культурных кластеров. Сверхинтенсивный пешеходный и автомобильный поток. Рядом находятся ТРЦ «Atrium», арт-квартал «АРМА», центр «ВИНЗАВОД», дизайн-центр ARTPLAY.

Технические характеристики:
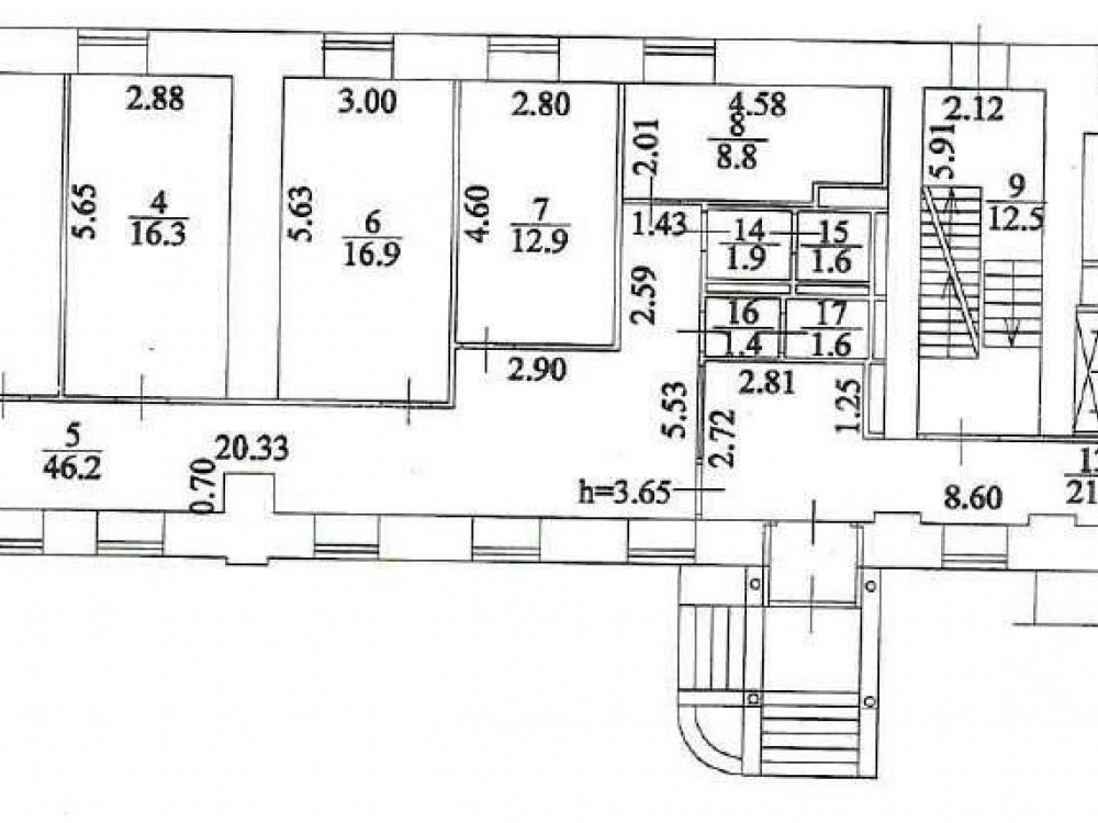
Площадь: 1337 кв. м. на 4 этажах + подвал и чердак. Без лифта (лифт можно пристроить). Свободная планировка (open space), почти все несущие стены по периметру. Произведен полный демонтаж. Капитальный ремонт здания выполнен в 2010 году. Высота потолков: 1 этаж - 3,56 м.; 2 этаж - 3,7 м.; 3 этаж - 3,46 м.; 4 этаж - 3,4 м.; подвал - 2,25 м. Коммуникации: Электрическая мощность 149 кВт, приточная вентиляция, местное кондиционирование, система оповещения о пожаре, центральное отопление. На закрытой территории предусмотрена наземная парковка на 5 машин.

Идеально подходит для: представительского офиса, штаб-квартиры, бизнес-центра класса В/В+

Коммерческие условия:
Арендная ставка: 4 011 000 рублей в месяц (включая НДС)
Ставка за 1 кв. м. в год: 36 000 рублей
Тип аренды: Прямая
Минимальный срок аренды: 11 месяцев
Арендные каникулы: Предусмотрены (условия обсуждаются индивидуально)

Технические характеристики

Тип здания: Бизнес центр,Офис

Общая площадь: 1337  м2

Этаж: 1

Всего этажей: 4

Электрическая мощность: 149 кВт

Высота потолков: от 3,4 до 3,7 м

Парковка: наземная на 5 мест

Коммерческие условия

Цена в месяц: 4 011 000 RUB

ФОРМА ВЛАДЕНИЯ: по запросу

карта

Расположение

Адрес: Москва, улица Воронцово Поле, 12с3

Округ: Центральный административный округ

Близость метро: Курская,Чкаловская

Транспортная доступность: в пешей доступности

Окружение

Торговое окружение: развитое торговое окружение

Адрес:

Москва, улица Воронцово Поле, 12с3

Округ:

Центральный административный округ

Близость метро:

Курская,Чкаловская

Транспортная доступность:

в пешей доступности

карта

Торговое окружение:

развитое торговое окружение

Общая площадь:

1337  м2

Этаж:

1

Всего этажей:

4

Тип:

Бизнес центр,Офис

Электрическая мощность:

149 кВт

Высота потолков:

от 3,4 до 3,7 м

Парковка:

наземная на 5 мест

ФОРМА ВЛАДЕНИЯ:

по запросу

Цена в месяц:

4 011 000 RUB

Планировка

Теребилов Михаил

Ваш брокер по работе с клиентами

Найдите лучшее место
для жизни, бизнеса, инвестиций

Оставьте свои контакты — с вами свяжется руководитель отдела для презентации нужного вам объекта

Похожие объекты