Id 158244

Москва, ул. Ивана Сусанина, д. 2с7 - Арендный бизнес Пятерочка, Ozon fresh

адрес Москва, улица Ивана Сусанина, 2с7

Арендный бизнес
С отдельным входом
Торговая

Окупаемость: 8.9 года

Доходность:11.21%

320 000 000 RUB | за все

(за 1 м2 — 256 000 RUB)

площадь 1 250.0 м2

QR код Qr код

Продажа готового арендного бизнеса на 1-м этаже дома с федеральным сетевым арендатором "Пятерочка" и Ozon fresh , по адресу: г. Москва, САО, район Дегунино Западное, ул. Ивана Сусанина, д. 2с7. Транспортная доступность: м. «Селигерская» – 950 м (10 мин. пешком) и станция МЦД-3 «Моссельмаш» – 250 м (3 мин. пешком). Активный трафик. Остановка автобуса в 250 м от дома.

Технические характеристики:
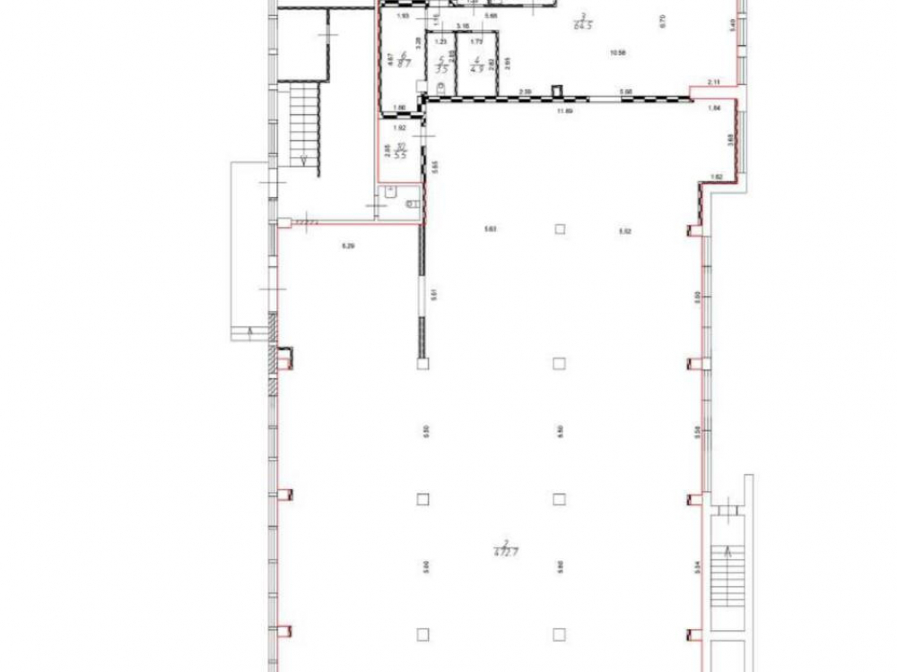
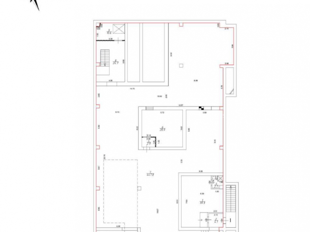
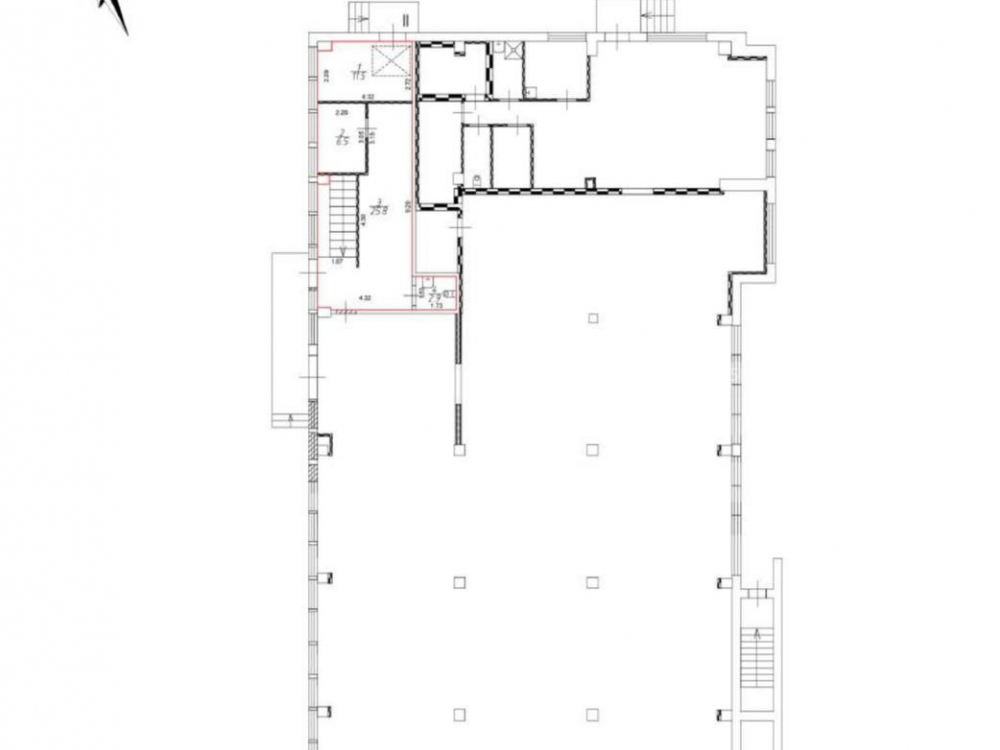
1-й и цокольный этаж. Общая площадь 1250 кв. м. Площадь 1 этажа 600 м2 и 650 м2 цоколь. Несколько отдельных групп с улицы. Витринное остекление. Все центральные коммуникации от жилого дома. Приточно-вытяжная вентиляция, кондиционирование (сплит-системы), централизованное пожаротушение. Зона разгрузки.

Коммерческие условия:
Стоимость объекта - 320 000 000 рублей.
Стоимость за м2 - 256 000 рублей.
Федеральный арендатор: «Пятёрочка», ДДА на 10 лет от октября 2025 года.
МАП - 2 000 000 рублей, привязка к РТО - 6%.
Оzon Fresh, ДДА на 5 лет от ноября 2025 года.
МАП 1 000 000 рублей, безусловная индексация 5%
ГАП 36 000 000 рублей.
Окупаемость: 8,8 лет / Доходность: 11,2%
Форма сделки: ДКПН.

Технические характеристики

Тип здания: Арендный бизнес,С отдельным входом,Торговая

Общая площадь: 1250  м2

Этаж: 1

Всего этажей: 12

Электрическая мощность: 150

Высота потолков: 3

Парковка: есть

Коммерческие условия

Цена за все: 320 000 000 RUB

ФОРМА ВЛАДЕНИЯ: собственность

Общий МАП: 3 000 000 RUB (данный МАП является минимальным, при оптимизации арендаторов арендный поток можно значительно увеличить)

Общий ГАП: 36 000 000 RUB

Окупаемость: 8.9 года

Доходность: 11.21%

карта

Расположение

Адрес: Москва, улица Ивана Сусанина, 2с7

Округ: Северный административный округ

Близость метро: Селигерская

Транспортная доступность: м. Селигерская

Окружение

Торговое окружение: Магазины

Адрес:

Москва, улица Ивана Сусанина, 2с7

Округ:

Северный административный округ

Близость метро:

Селигерская

Транспортная доступность:

м. Селигерская

карта

Торговое окружение:

Магазины

Общая площадь:

1250  м2

Этаж:

1

Всего этажей:

12

Тип:

Арендный бизнес,С отдельным входом,Торговая

Электрическая мощность:

150

Высота потолков:

3

Парковка:

есть

ФОРМА ВЛАДЕНИЯ:

собственность

Цена за все:

320 000 000 RUB

Общий МАП: 3 000 000

(данный МАП является минимальным, при оптимизации арендаторов арендный поток можно значительно увеличить)

Общий ГАП:

36 000 000

Окупаемость:

8.9 года

Доходность:

11.21%

Планировка

Мурат

Ваш брокер по работе с клиентами

Найдите лучшее место
для жизни, бизнеса, инвестиций

Оставьте свои контакты — с вами свяжется руководитель отдела для презентации нужного вам объекта

Похожие объекты