Id 158758

Москва, ул. Рождественский бульвар, д. 20а - Продажа Особняка в бульварном кольце

адрес Москва, Рождественский бульвар, 20А

Особняк/здание
С отдельным входом
Офис
Медицина

350 000 000 RUB | за все

(за 1 м2 — 629 270 RUB)

площадь 556.2 м2

QR код Qr код

Предлагается к продаже отдельно стоящее здание, по адресу: Москва, ЦАО, р-н Мещанский, Рождественский бул., 20А. Ближайшая станция метро - м. Сретенский бульвар, Тургеневская 6 минут пешком. В шаговой доступности находятся такие магазины, как: ВкусВилл, Азбука daily, Магнолия. Интенсивный деловой и туристический трафик с высокой покупательской способностью, популярная гастроулица Москвы. Здание имеет выходы на Рождественский бульвар, так и на территорию Сретенского монастыря.
Окружение: бизнес-центры, бары и рестораны, музеи, школа современной пьесы, центральный рынок, Чистые пруды.

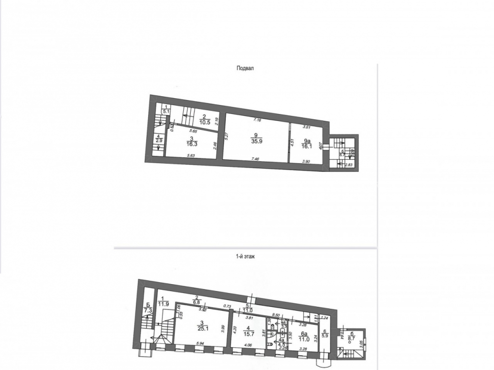
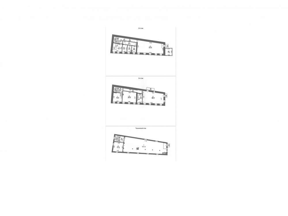
Технические характеристики:
Общая площадь здания - 556,2 кв.м. Цоколь (93,5 м2), 1 этаж (111,2 м2), 2 этаж (104.2 м2), 3 этаж (118,5 м2), 4 этаж (128,9 м2). 2 Отдельных вход с фасада здания + отдельный вход со двора. Наличие мокрых точек. Потолок высотой 2,7,-3.1 м., электрическая мощность по запросу, отопление, водоснабжение и канализация - центральные.

Коммерческие условия:
Стоимость объекта: 350 000 000 рублей.
Стоимость за кв.м: 629 270 рублей.

Технические характеристики

Тип здания: Особняк/здание,С отдельным входом,Офис,Медицина

Общая площадь: 556.2  м2

Этаж: 1

Всего этажей: 4

Электрическая мощность: -

Высота потолков: 3

Парковка: есть

Коммерческие условия

Цена за все: 350 000 000 RUB

ФОРМА ВЛАДЕНИЯ: собственность

карта

Расположение

Адрес: Москва, Рождественский бульвар, 20А

Округ: Центральный административный округ

Близость метро: Сретенский бульвар,Трубная,Тургеневская

Транспортная доступность: м. Сретенский бульвар

Окружение

Торговое окружение: Магазины, бизнес центры

Адрес:

Москва, Рождественский бульвар, 20А

Округ:

Центральный административный округ

Близость метро:

Сретенский бульвар,Трубная,Тургеневская

Транспортная доступность:

м. Сретенский бульвар

карта

Торговое окружение:

Магазины, бизнес центры

Общая площадь:

556.2  м2

Этаж:

1

Всего этажей:

4

Тип:

Особняк/здание,С отдельным входом,Офис,Медицина

Электрическая мощность:

-

Высота потолков:

3

Парковка:

есть

ФОРМА ВЛАДЕНИЯ:

собственность

Цена за все:

350 000 000 RUB

Планировка

Мурат

Ваш брокер по работе с клиентами

Найдите лучшее место
для жизни, бизнеса, инвестиций

Оставьте свои контакты — с вами свяжется руководитель отдела для презентации нужного вам объекта

Похожие объекты