Id 158780

МО, г. Люберцы, пгт. Красково, ул. Карла Маркса, д. 63, ЖК Олимпийский / 121м2/ Продажа ГАБ

адрес посёлок городского типа Красково, улица Карла Маркса, 63

Торговая

33 900 000 RUB | за все

(за 1 м2 — 280 165 RUB)

площадь 121.0 м2

QR код Qr код

Объект расположен по адресу: Московская область, г. Люберцы, пгт. Красково, ул. Карла Маркса, д. 63, ЖК Олимпийский. Расположено на первом этаже 14-и этажного жилого дома. Ближайшая станция метро МЦД-3 Красково в 7 минутах пешком. Локация характеризуется плотной жилой застройкой и развитой инфраструктурой.

Торговое окружение: в доме супермаркеты Дикси и Первый выбор, Аптека Здравсити и ПВЗ ВБ. В соседнем доме Сбер. DNS, Верный через дорогу.
Технические характеристики:
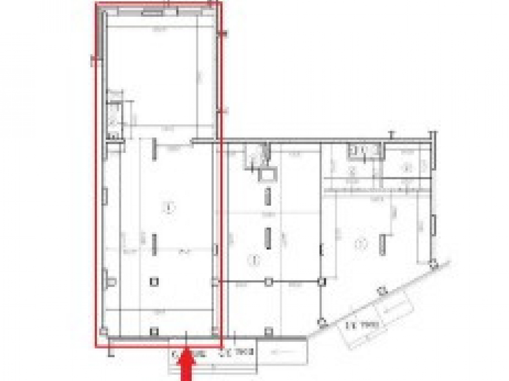
Первая линия домов. Отдельный вход с 1-й линии. 1 этаж 1 этажного здания. Общая площадь: 121 кв. метров. Высота потолков - 3 метра. Электрическая мощность 15 кВт.

Коммерческие условия:
- Стоимость: 33900000 рублей
- Стоимость квадратного метра: 280165 рублей
- Форма сделки: ДКП
- Собственник: физическое лицо
-Арендатор Улыбка Радуги. ДДА на 5 лет с сентября 2025 года.
- МАП: 245000 рублей
- ГАП: 2940000 рублей
- Односторонняя индексация 5%.
- Коммунальные и эксплуатационные платежи компенсируются сверх арендной платы.
- При возникновения у Арендодателя НДС - Арендатор оплачивает НДС сверх арендной платы.

Технические характеристики

Тип здания: Торговая

Общая площадь: 121  м2

Этаж: 1

Всего этажей: 14

Электрическая мощность: 15

Высота потолков: 3

Парковка: во дворе

Коммерческие условия

Цена за все: 33 900 000 RUB

ФОРМА ВЛАДЕНИЯ: Физ лицо

карта

Расположение

Адрес: посёлок городского типа Красково, улица Карла Маркса, 63

Округ: Юго-Восточный административный округ

Близость метро: Лермонтовский проспект

Транспортная доступность: станция Д3 Красково 7 мин пешком

Окружение

Торговое окружение: в доме супермаркеты Дикси и Первый выбор, Улыбка радуги и ПВЗ ВБ. В соседнем доме Сбер. DNS, Верный через дорогу.

Адрес:

посёлок городского типа Красково, улица Карла Маркса, 63

Округ:

Юго-Восточный административный округ

Близость метро:

Лермонтовский проспект

Транспортная доступность:

станция Д3 Красково 7 мин пешком

карта

Торговое окружение:

в доме супермаркеты Дикси и Первый выбор, Улыбка радуги и ПВЗ ВБ. В соседнем доме Сбер. DNS, Верный через дорогу.

Общая площадь:

121  м2

Этаж:

1

Всего этажей:

14

Тип:

Торговая

Электрическая мощность:

15

Высота потолков:

3

Парковка:

во дворе

ФОРМА ВЛАДЕНИЯ:

Физ лицо

Цена за все:

33 900 000 RUB

Планировка

Егор Дмитриев

Ваш брокер по работе с клиентами

Найдите лучшее место
для жизни, бизнеса, инвестиций

Оставьте свои контакты — с вами свяжется руководитель отдела для презентации нужного вам объекта

Похожие объекты