Id 158812

Москва, Скандинавский б-р, 17 - 342,5 кв.м. / Продажа торгового помещения в ЖК Скандинавия

адрес Москва, НАО, Скандинавский бульвар, 17

С отдельным входом
Торговая
Новостройка

44 740 200 RUB | за все

(за 1 м2 — 130 628 RUB)

площадь 342.5 м2

QR код Qr код

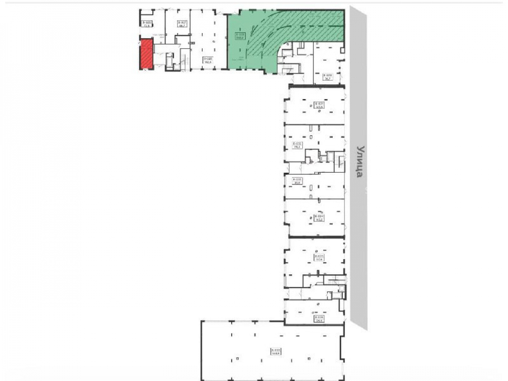
Продается торговое помещение площадью 342.50. на 1-м этаже ЖК "Скандинавия". Дом сдан.
Первая линия оживленной внутрирайонной улицы самого густозаселенного нового района Новой Москвы.
Пешая доступность от станции метро "Потапово".
Торговое окружение - кафе, аптеки, магазины и т.д.

Разрешённая мощность: 68.6 кВт
Потолки: 5.3 — 2 м
Количество входов: 1
Тех. параметры вентиляции: Ø100, Ø100, 300х150, 300х150
Возможность организации доп. уровня: Есть
Горячее водоснабжение: Есть
Холодное водоснабжение: Есть
Нагрузка на пол: 726 кг/м2
Технологические решения для общественного питания: Нет
Канализация: Есть
Дымоудаление: Нет
Пожарная сигнализация: Есть

Коммерческие условия:
Стоимость объекта - 44 740 200 руб., в т.ч. НДС.
Стоимость объекта за м² - 130 628 руб., в т.ч. НДС.

Продажа по ДКПн.

Технические характеристики

Тип здания: С отдельным входом,Торговая,Новостройка

Общая площадь: 342.5  м2

Этаж: 1

Всего этажей: 18

Электрическая мощность: 68,6 кВт

Высота потолков: 5,3 м

Парковка: Наземная

Коммерческие условия

Цена за все: 44 740 200 RUB

ФОРМА ВЛАДЕНИЯ: ООО с НДС

карта

Расположение

Адрес: Москва, НАО, Скандинавский бульвар, 17

Близость метро: Потапово

Транспортная доступность: 8 мин метро Потапово

Окружение

Торговое окружение: Озон, ВБ, Московский пекарь, Суши-бар, Магазин крафтового пива, ГорЗдрав, Фитнес-клуб, Школа и Детский сад, Спорт-комплекс.

Адрес:

Москва, НАО, Скандинавский бульвар, 17

Округ:

Близость метро:

Потапово

Транспортная доступность:

8 мин метро Потапово

карта

Торговое окружение:

Озон, ВБ, Московский пекарь, Суши-бар, Магазин крафтового пива, ГорЗдрав, Фитнес-клуб, Школа и Детский сад, Спорт-комплекс.

Общая площадь:

342.5  м2

Этаж:

1

Всего этажей:

18

Тип:

С отдельным входом,Торговая,Новостройка

Электрическая мощность:

68,6 кВт

Высота потолков:

5,3 м

Парковка:

Наземная

ФОРМА ВЛАДЕНИЯ:

ООО с НДС

Цена за все:

44 740 200 RUB

Планировка

Сухарев Михаил

Ваш брокер по работе с клиентами

Найдите лучшее место
для жизни, бизнеса, инвестиций

Оставьте свои контакты — с вами свяжется руководитель отдела для презентации нужного вам объекта

Похожие объекты