Id 140614

ЦАО, Москва, ул. Александра Невского, 1/ 372 м2/ Продажа АБ ''ВкусВилл'' и ''Skuratov''

адрес Москва, улица Александра Невского, 1

Арендный бизнес
Многофункциональный
Торговая

Окупаемость: 13.2 лет

Доходность:7.59%

275 000 000 RUB | за все

(за 1 м2 — 739 247 RUB)

площадь 372.0 м2

QR код Qr код

Предлагается к продаже угловое помещение с арендаторами, общей площадью 372 м2, расположенное во встроенно-пристроенной части 12-этажного жилого дома по адресу: ул. Александра Невского, д. 1 на перекрестке с ул. Чаянова и параллельно 3-й Тверской-Ямской улице.
Объект находится на первой линии домов в центре развитого жилого массива со сложившейся инфраструктурой всего в 7 минутах пешком от м. Белорусская. Интенсивный автомобильный и пешеходный трафик вдоль здания.

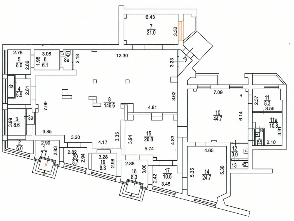
Технические характеристики: первая линия, встроенно-пристроенная часть жилого дома, общая площадь 372 м2, высота потолков 3,2 м, электрическая мощность 50 кВт, имеет четыре отдельные входные группы с фасада и со двора. Зальная планировка, витринные окна по фасаду, возможности для рекламы. Парковка перед зданием. год постройки 1987г.

Коммерческие условия:
Стоимость - 275 000 000 рублей
Арендаторы - ''ВкусВилл'', Кафе '' Skuratov''
Общий МАП 1 743 000 рублей / ГАП - 20 916 000 руб.
Окупаемость 13 лет

Технические характеристики

Тип здания: Арендный бизнес,Многофункциональный,Торговая

Общая площадь: 372  м2

Этаж: 1

Всего этажей: 12

Электрическая мощность: 50 кВт

Высота потолков: 3,2 м

Парковка: перед зданием

Коммерческие условия

Цена за все: 275 000 000 RUB

ФОРМА ВЛАДЕНИЯ: ООО на УСН

Общий МАП: 1 743 000 RUB (данный МАП является минимальным, при оптимизации арендаторов арендный поток можно значительно увеличить)

Общий ГАП: 20 916 000 RUB

Окупаемость: 13.2 лет

Доходность: 7.59%

карта

Расположение

Адрес: Москва, улица Александра Невского, 1

Округ: Центральный административный округ

Близость метро: Белорусская

Транспортная доступность: в пешей доступности ст м Белорусская

Окружение

Торговое окружение: -

Адрес:

Москва, улица Александра Невского, 1

Округ:

Центральный административный округ

Близость метро:

Белорусская

Транспортная доступность:

в пешей доступности ст м Белорусская

карта

Торговое окружение:

-

Общая площадь:

372  м2

Этаж:

1

Всего этажей:

12

Тип:

Арендный бизнес,Многофункциональный,Торговая

Электрическая мощность:

50 кВт

Высота потолков:

3,2 м

Парковка:

перед зданием

ФОРМА ВЛАДЕНИЯ:

ООО на УСН

Цена за все:

275 000 000 RUB

Общий МАП: 1 743 000

(данный МАП является минимальным, при оптимизации арендаторов арендный поток можно значительно увеличить)

Общий ГАП:

20 916 000

Окупаемость:

13.2 лет

Доходность:

7.59%

Планировка

Александр Невский

Ваш брокер по работе с клиентами

Найдите лучшее место
для жизни, бизнеса, инвестиций

Оставьте свои контакты — с вами свяжется руководитель отдела для презентации нужного вам объекта

Похожие объекты