Id 141035

Вольная, 35с8 - 1539,8 кв.м / Продажа здания / Готовый арендный бизнес

адрес Москва, Вольная 35с8

Арендный бизнес
Особняк/здание
С отдельным входом
Торговая

Окупаемость: 7.8 года

Доходность:12.90%

199 000 000 RUB | за все

(за 1 м2 — 129 238 RUB)

площадь 1 539.8 м2

QR код Qr код

Продажа здания с арендаторами по адресу: г. Москва, ул. Вольная, 35с8.
Здание расположено на закрытой территории производственно-складского комплекса.
Въезд со стороны улицы Вольная, в том числе и для большегрузного транспорта.

Технические характеристики: Общая площадь - 1 539,8 кв.м, 3 этажа без подвала. Высота потолков на этажах от 3 до 8 м. Дата постройки до 1917 г, ремонт капитальный в 2022 г. Большое количество окон, новое остекление. Все коммуникации в здании новые. Выделенная мощность 149 кВт. Свободная планировка, сделан новый ремонт, здание кирпичное. ж/б перекрытия. 7 отдельных входов.
ЗУ - 9909 кв.м, ДАЗУ до 06.12.2061 г.
ВРИ: земельные участки предназначенные для размещения производственных и административных зданий.

Коммерческие условия:
Стоимость - 199 000 000 рублей
Стоимость за кв.м - 129 238 рубль
Арендаторы – студия воздушной акробатики, компания по продаже детской одежды на маркетплейсах (Вайлдберриз, ОЗОН) и другие. Договоры аренды краткосрочные, Арендаторами занято - 100%
Совокупный МАП - 2 140 000 рублей
Совокупный ГАП - 25 680 000 рублей
Окупаемость - 7.75 лет, Доходность - 12.9%

Технические характеристики

Тип здания: Арендный бизнес,Особняк/здание,С отдельным входом,Торговая

Общая площадь: 1539.8  м2

Этаж: 1

Всего этажей: 3

Электрическая мощность: 149 кВт

Высота потолков: 3-8 м

Парковка: есть, на территории, наземная

Коммерческие условия

Цена за все: 199 000 000 RUB

ФОРМА ВЛАДЕНИЯ: ЮЛ

Общий МАП: 2 140 000 RUB (данный МАП является минимальным, при оптимизации арендаторов арендный поток можно значительно увеличить)

Общий ГАП: 25 680 000 RUB

Окупаемость: 7.8 года

Доходность: 12.90%

карта

Расположение

Адрес: Москва, Вольная 35с8

Округ: Восточный административный округ

Близость метро: Измайлово,Семёновская,Соколиная Гора

Транспортная доступность: метро Семеновская, Измайлово

Окружение

Торговое окружение: -

Адрес:

Москва, Вольная 35с8

Округ:

Восточный административный округ

Близость метро:

Измайлово,Семёновская,Соколиная Гора

Транспортная доступность:

метро Семеновская, Измайлово

карта

Торговое окружение:

-

Общая площадь:

1539.8  м2

Этаж:

1

Всего этажей:

3

Тип:

Арендный бизнес,Особняк/здание,С отдельным входом,Торговая

Электрическая мощность:

149 кВт

Высота потолков:

3-8 м

Парковка:

есть, на территории, наземная

ФОРМА ВЛАДЕНИЯ:

ЮЛ

Цена за все:

199 000 000 RUB

Общий МАП: 2 140 000

(данный МАП является минимальным, при оптимизации арендаторов арендный поток можно значительно увеличить)

Общий ГАП:

25 680 000

Окупаемость:

7.8 года

Доходность:

12.90%

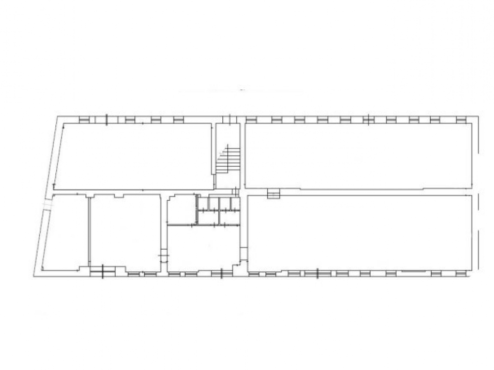
Планировка

Гервас Ксения

Ваш брокер по работе с клиентами

Найдите лучшее место
для жизни, бизнеса, инвестиций

Оставьте свои контакты — с вами свяжется руководитель отдела для презентации нужного вам объекта

Похожие объекты