Id 144382

Москва, 1-я Фрунзенская, д. 8, 745 м2/ ПРОДАЖА ПСН

адрес Москва, 1-я Фрунзенская, д. 8

Общепит

600 000 000 RUB | за все

(за 1 м2 — 805 369 RUB)

площадь 745.0 м2

QR код Qr код

Продается нежилое помещение свободного назначения по адресу: Москва, Хамовники, 1-я Фрунзенская, д. 8, площадью 745 м2. Помещение расположено на первой линии в престижном районе в окружении жилых и административных зданий, в 5 минутах от станций метро «Фрунзенская».

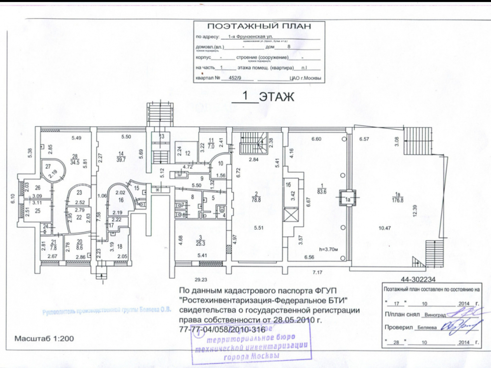
Технические характеристики: Первый этаж встроенно-пристроенного нежилого помещения в 10 -ти этажном жилом доме, площадью 745 м2, из них 1 этаж 577 м2, высота потолков 3.7 м., подвал 168 м2, высота потолков 2.3 м. Два входа, один с первой линии, второй со двора. Витринные окна. Зальная планировка. Круглогодичная зеленая веранда. Панорамная крыша. Выделенная эл. мощность 150 кВт. Планировка по запросу.

Арендатор:
Итальянский ресторан "Фреско".

Коммерческие условия:
Цена обекта 600 000 000 рублей.

Технические характеристики

Тип здания: Общепит

Общая площадь: 745  м2

Этаж: 1

Всего этажей: 1

Электрическая мощность: 300

Высота потолков: 3

Парковка: да

Коммерческие условия

Цена за все: 600 000 000 RUB

ФОРМА ВЛАДЕНИЯ: ооо

карта

Расположение

Адрес: Москва, 1-я Фрунзенская, д. 8

Округ: Центральный административный округ

Близость метро: Фрунзенская

Транспортная доступность: да

Окружение

Торговое окружение: да

Адрес:

Москва, 1-я Фрунзенская, д. 8

Округ:

Центральный административный округ

Близость метро:

Фрунзенская

Транспортная доступность:

да

карта

Торговое окружение:

да

Общая площадь:

745  м2

Этаж:

1

Всего этажей:

1

Тип:

Общепит

Электрическая мощность:

300

Высота потолков:

3

Парковка:

да

ФОРМА ВЛАДЕНИЯ:

ооо

Цена за все:

600 000 000 RUB

Планировка

Назарова Олеся

Ваш брокер по работе с клиентами

Найдите лучшее место
для жизни, бизнеса, инвестиций

Оставьте свои контакты — с вами свяжется руководитель отдела для презентации нужного вам объекта

Похожие объекты