Id 145432

Онежская, 18 - 584,1 кв.м. - Пятерочка

адрес Онежская улица, 18

Арендный бизнес
Торговая

Окупаемость: 12 лет

Доходность:8.33%

199 500 000 RUB | за все

(за 1 м2 — 341 610 RUB)

площадь 584.0 м2

QR код Qr код

Продажа готового арендного бизнеса. Площадь 584,1 м2. Расположен в 11-15 мин. ходьбы до м. Коптево. Первая линия домов. Интенсивный автомобильный и пешеходный трафик.

Технические характеристики:
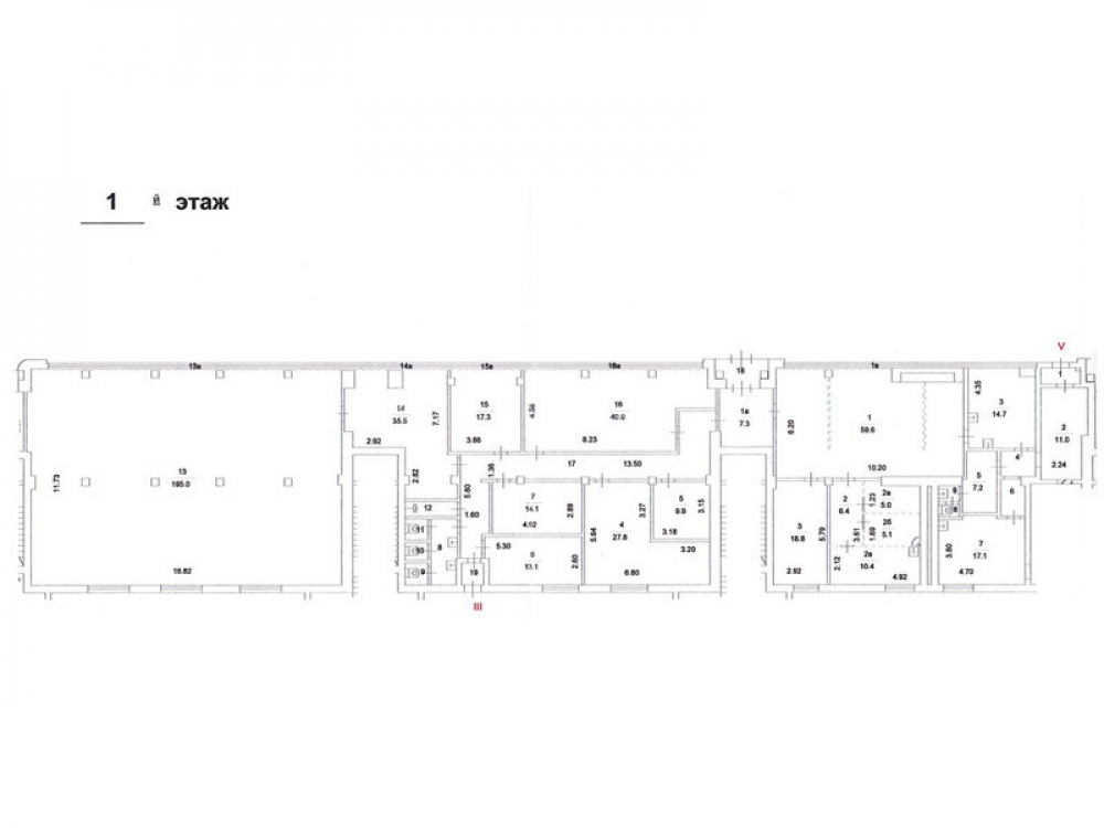
Общая площадь: 584.1 кв.м. Первый этаж. Открытая планировка. Отдельные входы с фасада. Зона разгрузки. Витринное остекление. Место для вывески. Высота потолков 3.8 м. Мощность электросети 95 кВт. Отопление центральное.

Коммерческие условия:
Стоимость объекта: 199 500 000 рублей.
Арендаторы:
- Пятерочка - ДДА до 2032.
- Аптека Столички с 2018 года, бессрочный договор, индексация 5% в год.
- Салон Красоты с 2010 года, бессрочный договор, индексация 5% в год.
Общий МАП - 1 392 000 руб.
Общий ГАП - 16 704 000 руб.

Технические характеристики

Тип здания: Арендный бизнес,Торговая

Общая площадь: 584  м2

Этаж: 1

Всего этажей: 1

Электрическая мощность: 95

Высота потолков: 3.8 м

Парковка: -

Коммерческие условия

Цена за все: 199 500 000 RUB

ФОРМА ВЛАДЕНИЯ: Группа физ лиц

Общий МАП: 1 387 100 RUB (данный МАП является минимальным, при оптимизации арендаторов арендный поток можно значительно увеличить)

Общий ГАП: 16 645 200 RUB

Окупаемость: 12 лет

Доходность: 8.33%

карта

Расположение

Адрес: Онежская улица, 18

Округ: Северный административный округ

Близость метро: Коптево,Лихоборы

Транспортная доступность: -

Окружение

Торговое окружение: -

Адрес:

Онежская улица, 18

Округ:

Северный административный округ

Близость метро:

Коптево,Лихоборы

Транспортная доступность:

-

карта

Торговое окружение:

-

Общая площадь:

584  м2

Этаж:

1

Всего этажей:

1

Тип:

Арендный бизнес,Торговая

Электрическая мощность:

95

Высота потолков:

3.8 м

Парковка:

-

ФОРМА ВЛАДЕНИЯ:

Группа физ лиц

Цена за все:

199 500 000 RUB

Общий МАП: 1 387 100

(данный МАП является минимальным, при оптимизации арендаторов арендный поток можно значительно увеличить)

Общий ГАП:

16 645 200

Окупаемость:

12 лет

Доходность:

8.33%

Планировка

Чернов Андрей

Ваш брокер по работе с клиентами

Найдите лучшее место
для жизни, бизнеса, инвестиций

Оставьте свои контакты — с вами свяжется руководитель отдела для презентации нужного вам объекта

Похожие объекты