Id 148013

1-ая ул. Бухвостова вл. 12/11 - 88.9 кв.м / Продажа торгового помещения

адрес жилой комплекс Преображенская Площадь

С отдельным входом
Торговая
Жилой комплекс (мфк)
Новостройка

90 073 670 RUB | за все

(за 1 м2 — 1 213 931 RUB)

площадь 74.2 м2

QR код Qr код

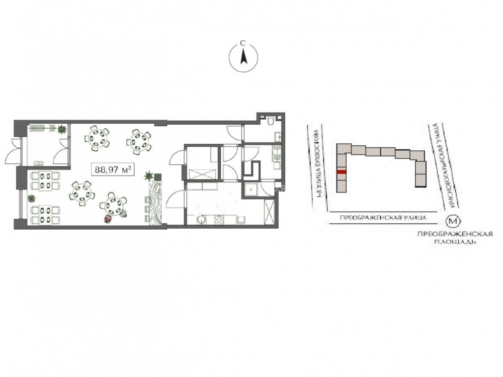
Продажа торгового помещения в новом ЖК Преображенская площадь, по адресу: г.Москва, ВАО, район Преображенский, 1-ая ул. Бухвостова вл. 12/11. 5 минут пешком от метро Преображенская площадь. ЖК Преображенская площадь - новый жилой комплекс премиум-класса, этажностью 10 - 17 этажей, на 735 квартир, 347 машиномест. С приватной территорией внутри и с открытым доступом к торговым помещениям. Вход с ул. Бухвостова.

Ввод в эксплуатацию 1 квартал 2025г.

Технические характеристики:
Площадь - 88.9 кв.м, 1-й этаж 17-этажного жилого дома, витринное остекление в пол, высота потолков - 4,18 м, электрическая мощность - 0.25 кВт на 1 кв.м. Подземный паркинг. Городской паркинг по фасаду. Нагрузка на пол - 400 кг/м2. Состояние помещения - в бетоне.

Коммерческие условия:
Стоимость - 90 073 670 руб.
Стоимость за кв.м - 1 012 405 руб.
Форма продажи - ДДУ.

Технические характеристики

Тип здания: С отдельным входом,Торговая,Жилой комплекс (мфк),Новостройка

Общая площадь: 74.2  м2

Этаж: 1

Всего этажей: 12

Электрическая мощность: 250 Вт на 1 кв.м

Высота потолков: 4.18м

Парковка: городская

Коммерческие условия

Цена за все: 90 073 670 RUB

ФОРМА ВЛАДЕНИЯ: ООО

карта

Расположение

Адрес: жилой комплекс Преображенская Площадь

Округ: Восточный административный округ

Близость метро: Преображенская площадь

Транспортная доступность: 5 минут пешком от м.Преображенская площадь

Окружение

Торговое окружение: Фитнес клуб, нотариус, аптека

Адрес:

жилой комплекс Преображенская Площадь

Округ:

Восточный административный округ

Близость метро:

Преображенская площадь

Транспортная доступность:

5 минут пешком от м.Преображенская площадь

карта

Торговое окружение:

Фитнес клуб, нотариус, аптека

Общая площадь:

74.2  м2

Этаж:

1

Всего этажей:

12

Тип:

С отдельным входом,Торговая,Жилой комплекс (мфк),Новостройка

Электрическая мощность:

250 Вт на 1 кв.м

Высота потолков:

4.18м

Парковка:

городская

ФОРМА ВЛАДЕНИЯ:

ООО

Цена за все:

90 073 670 RUB

Планировка

Воробьев Алексей

Ваш брокер по работе с клиентами

Найдите лучшее место
для жизни, бизнеса, инвестиций

Оставьте свои контакты — с вами свяжется руководитель отдела для презентации нужного вам объекта

Похожие объекты