Id 148888

Москва, СВАО, Огородный проезд, 10С2 / 165 м² / Продажа торгового помещения с арендатором Лига ставок

адрес Москва, СВАО, Огородный проезд, 10С2

Арендный бизнес
С отдельным входом
Торговая

Окупаемость: 9.3 года

Доходность:10.81%

89 670 000 RUB | за все

(за 1 м2 — 543 455 RUB)

площадь 165.0 м2

QR код Qr код

Продается готовый арендный бизнес по адресу: Москва, СВАО, Огородный проезд, 10С2, площадью 165 м². ТЦ "Зеленый" - единственный торговый центр районного формата у входа станции метро Бутырская. Интенсивный пешеходный и транспортный поток 50 000 чел/сутки. Наземная парковка на 250 м/м. Отличная транспортная доступность, крупные магистрали в непосредственной близости: Шереметьевская ул. -1 км, Дмитровское шоссе -1,5 км, ТТК -2,3 км, 1 минута пешком до метро Бутырская.

Технические характеристики:
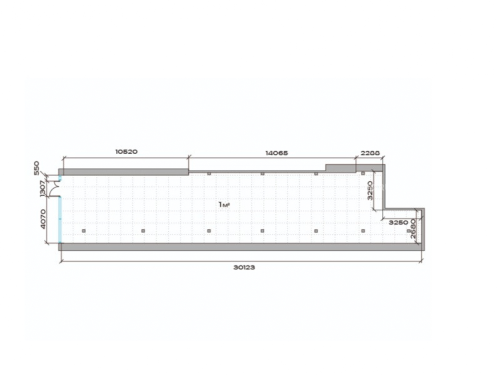
1 этаж 2-ух этажного ТЦ "Зеленый", на выходе из метро. Помещение общей площадью 165 м² (на плане 11), со своим собственным входом с улицы, с 1-й линии. Круглосуточный доступ, 24/7. Высота потолков 4,5 м, планировка открытая, помещение с ремонтом в стиле арендатора. Выделенная мощность 32 кВт. Центральные системы отопления, вентиляции и кондиционирования, мокрая точка, витринное остекление.

Арендатор:
Первая Международная букмекерская компания "Лига ставок", ДДА на 8 лет, ежегодная индексация 3%
МАП - 809 160 ₽, ГАП - 9 709 920 ₽, коммунальные платежи оплачиваются сверх ставки аренды.

Коммерческие условия:
Стоимость объекта - 89 670 000 ₽
Стоимость за м² - 543 455 ₽
Продажа по ДКПН от ООО с НДС

Технические характеристики

Тип здания: Арендный бизнес,С отдельным входом,Торговая

Общая площадь: 165  м2

Этаж: 1

Всего этажей: 9

Электрическая мощность: 15

Высота потолков: 4,5

Парковка: есть

Коммерческие условия

Цена за все: 89 670 000 RUB

ФОРМА ВЛАДЕНИЯ: частная собственность

Общий МАП: 809 160 RUB (данный МАП является минимальным, при оптимизации арендаторов арендный поток можно значительно увеличить)

Общий ГАП: 9 709 920 RUB

Окупаемость: 9.3 года

Доходность: 10.81%

карта

Расположение

Адрес: Москва, СВАО, Огородный проезд, 10С2

Округ: Северо-Восточный административный округ

Близость метро: Бутырская

Транспортная доступность: есть

Окружение

Торговое окружение: есть

Адрес:

Москва, СВАО, Огородный проезд, 10С2

Округ:

Северо-Восточный административный округ

Близость метро:

Бутырская

Транспортная доступность:

есть

карта

Торговое окружение:

есть

Общая площадь:

165  м2

Этаж:

1

Всего этажей:

9

Тип:

Арендный бизнес,С отдельным входом,Торговая

Электрическая мощность:

15

Высота потолков:

4,5

Парковка:

есть

ФОРМА ВЛАДЕНИЯ:

частная собственность

Цена за все:

89 670 000 RUB

Общий МАП: 809 160

(данный МАП является минимальным, при оптимизации арендаторов арендный поток можно значительно увеличить)

Общий ГАП:

9 709 920

Окупаемость:

9.3 года

Доходность:

10.81%

Планировка

Ирина Головина

Ваш брокер по работе с клиентами

Найдите лучшее место
для жизни, бизнеса, инвестиций

Оставьте свои контакты — с вами свяжется руководитель отдела для презентации нужного вам объекта

Похожие объекты