Id 151189

Краснодарская ул. ,д. 57А - 420 кв.м / Продажа / ОСЗ

адрес Москва, Краснодарская ул. ,д. 57А

Арендный бизнес
С отдельным входом
Торговая
Общепит

Окупаемость: 9.4 лет

Доходность:10.62%

275 000 000 RUB | за все

(за 1 м2 — 654 762 RUB)

площадь 420.0 м2

QR код Qr код

Продажа ОСЗ с арендаторами по адресу: г. Москва, Краснодарская ул., д. 57А. ЮВАО, район Люблино. В шаговой доступности станции метро: Люблино – 1 мин. пешком. Район со сложившейся инфраструктурой и большой плотностью населения. Интенсивный пешеходный трафик от метро в жилой квартал.
Торговое окружение: Бургер Кинг, Перекрёсток, Суперлента, Сбербанк, Тбанк, зоомагазин Бетховен, Рив гош.

Технические характеристики:
ОСЗ капитального типа, общая площадь эдания – 420 кв.м., 1 и 2 этаж. 3 отдельных входа. Помещения с отделкой. Смешанная планировка. Все коммуникации центральные. Высота потолков 3.5м. Возможна организация летней веранды.
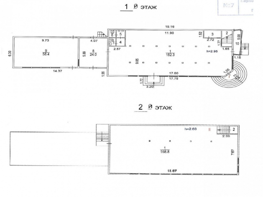
Метраж по этажам:
1 эт. - 176 кв.м, торговый зал, помещение с отдельным входом. 58 кв.м, помещение 6 кв.м. с отдельным входом.
2 эт. - 168 кв.м с отдельным входом.
В настоящее время подписан ДДА на 10 лет с Добрынинский на площадь 1 и 2 этажа, а также пекарней на помещение 58 кв.м на 1 эт.
ЗУ в аренде до 2071г.
МАП Добрынинский - 1 850 000 руб. (с июля 2026г.)
МАП Пекарня 600 000 руб.
Общий МАП - 2 450 000 руб. / Общий ГАП - 29 400 000 руб.
Окупаемость - 9.4 лет

Коммерческие условия:
Стоимость объекта – 275 000 000 руб.
Стоимость за 1 кв. м. – 654 762 руб.
Собственник юрлицо.
Форма сделки: продажа юрлица

Технические характеристики

Тип здания: Арендный бизнес,С отдельным входом,Торговая,Общепит

Общая площадь: 420  м2

Этаж: 1

Всего этажей: 2

Электрическая мощность: 100

Высота потолков:

Парковка: городская

Коммерческие условия

Цена за все: 275 000 000 RUB

ФОРМА ВЛАДЕНИЯ: ООО на УСН

Общий МАП: 2 450 000 RUB (данный МАП является минимальным, при оптимизации арендаторов арендный поток можно значительно увеличить)

Общий ГАП: 29 400 000 RUB

Окупаемость: 9.4 лет

Доходность: 10.62%

карта

Расположение

Адрес: Москва, Краснодарская ул. ,д. 57А

Округ: Юго-Восточный административный округ

Близость метро: Люблино

Транспортная доступность: 1 минута пешком от м.Люблино

Окружение

Торговое окружение: Бургер Кинг, Перекрёсток, Суперлента, Сбербанк, Тбанк, зоомагазин Бетховен, Рив гош.

Адрес:

Москва, Краснодарская ул. ,д. 57А

Округ:

Юго-Восточный административный округ

Близость метро:

Люблино

Транспортная доступность:

1 минута пешком от м.Люблино

карта

Торговое окружение:

Бургер Кинг, Перекрёсток, Суперлента, Сбербанк, Тбанк, зоомагазин Бетховен, Рив гош.

Общая площадь:

420  м2

Этаж:

1

Всего этажей:

2

Тип:

Арендный бизнес,С отдельным входом,Торговая,Общепит

Электрическая мощность:

100

Высота потолков:

Парковка:

городская

ФОРМА ВЛАДЕНИЯ:

ООО на УСН

Цена за все:

275 000 000 RUB

Общий МАП: 2 450 000

(данный МАП является минимальным, при оптимизации арендаторов арендный поток можно значительно увеличить)

Общий ГАП:

29 400 000

Окупаемость:

9.4 лет

Доходность:

10.62%

Планировка

Воробьев Алексей

Ваш брокер по работе с клиентами

Найдите лучшее место
для жизни, бизнеса, инвестиций

Оставьте свои контакты — с вами свяжется руководитель отдела для презентации нужного вам объекта

Похожие объекты