Id 151750

ВАО, р-н Метрогородок, ул. Тагильская, 2к1 / 497,8 м2 / ПРОДАЖА ПСН

адрес Тагильская улица, 2к1

С отдельным входом
Новостройка

129 679 389 RUB | за все

(за 1 м2 — 260 924 RUB)

площадь 497.0 м2

QR код Qr код

Продажа Помещения Свободного Назначения по адресу: Москва, ВАО, р-н Метрогородок, ул. Тагильская , 2к1, Площадью 497,8 м².
Масштабный проект комфорт-класса "Сиреневый парк" это развивающийся жилой район, где формируется современный уютный квартал с удобными квартирами, благоустроенными дворами, детскими садами, школами и объектами инфраструктуры. Интенсивный автомобильный и пешеходный трафик. Густoнaселeнный pайoн. В радиусе 500 метров более 5000 квартир. Окружение - Фитнес-клуб, Салон красоты, Кофейня, Продукты.


Технические характеристики:
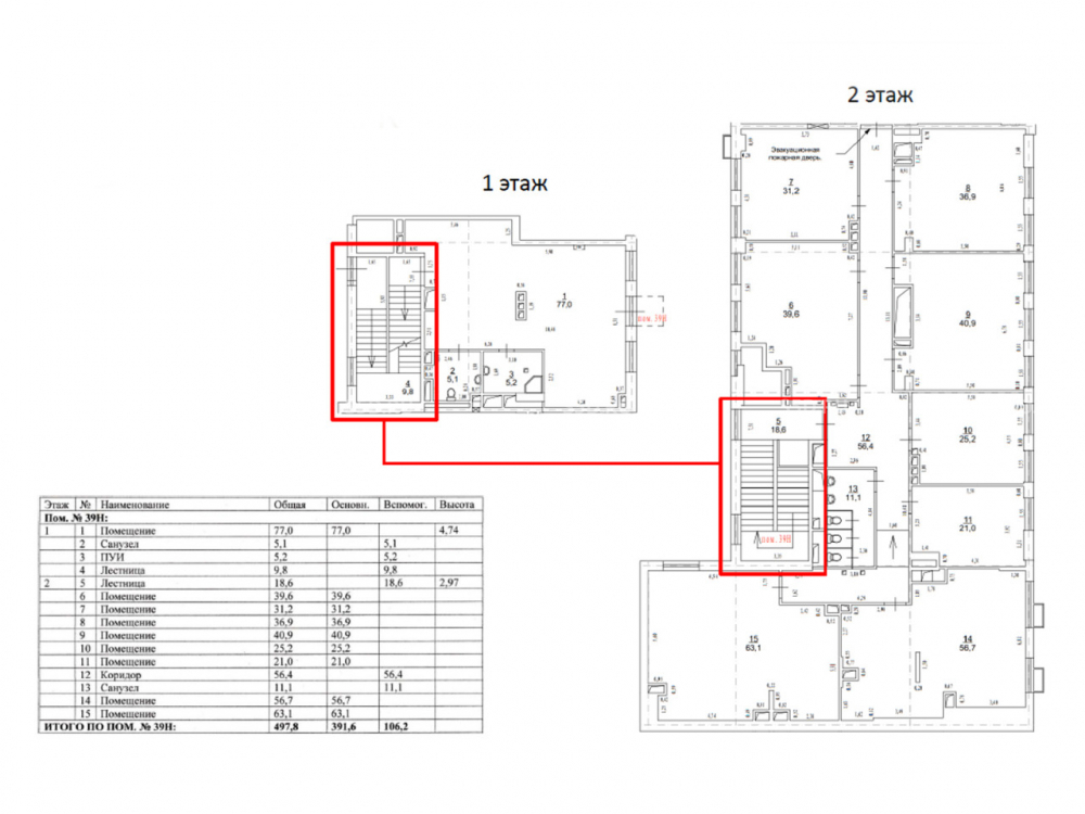
Площадь: 497,8 м² ( 1 этаж - 97,1 кв.м., 2 этаж - 400,7 кв.м. )
Состояние: без отделки; Назначение: свободного назначения;
Возможное использование: торговля; услуги; офис; медицинский центр (отсутствует паркинг под помещением);
Технические характеристики: системы ГВС и ХВС; отопление; вентиляция; пожарные системы;
Электрическая мощность: 100 кВт
Высота: 3 – 4,7м.
Входы: отдельный с фасада

Коммерческие условия:
Стоимость объекта - 129 679 389 ₽,
Стоимость за м² - 260 505 ₽.

ДКП, НДС: 20% включен в стоимость

Технические характеристики

Тип здания: С отдельным входом,Новостройка

Общая площадь: 497  м2

Этаж: 2

Всего этажей: 25

Электрическая мощность: 100 кВт;

Высота потолков: 3 – 4,7м

Парковка: Напротив помещения парковка

Коммерческие условия

Цена за все: 129 679 389 RUB

ФОРМА ВЛАДЕНИЯ: УСН

карта

Расположение

Адрес: Тагильская улица, 2к1

Округ: Восточный административный округ

Близость метро: Бульвар Рокоссовского

Транспортная доступность: Спланирован удобный выезд на Московский скоростной диаметр.

Окружение

Торговое окружение: Фитнес-клуб, Салон красоты, Кофейня.

Адрес:

Тагильская улица, 2к1

Округ:

Восточный административный округ

Близость метро:

Бульвар Рокоссовского

Транспортная доступность:

Спланирован удобный выезд на Московский скоростной диаметр.

карта

Торговое окружение:

Фитнес-клуб, Салон красоты, Кофейня.

Общая площадь:

497  м2

Этаж:

2

Всего этажей:

25

Тип:

С отдельным входом,Новостройка

Электрическая мощность:

100 кВт;

Высота потолков:

3 – 4,7м

Парковка:

Напротив помещения парковка

ФОРМА ВЛАДЕНИЯ:

УСН

Цена за все:

129 679 389 RUB

Планировка

Евгений Артемьев

Ваш брокер по работе с клиентами

Найдите лучшее место
для жизни, бизнеса, инвестиций

Оставьте свои контакты — с вами свяжется руководитель отдела для презентации нужного вам объекта

Похожие объекты