Id 155142

МО, г. Ивантеевка, ул. Санаторная, д. 1 - 2455.3 кв.м. - Помещение дошкольного образовательного учреждения/Продажа

адрес Ивантеевка, Санаторная улица, 1

Арендный бизнес
Особняк/здание
Торговая
Жилой комплекс (мфк)

Окупаемость: 16.8 лет

Доходность:5.97%

300 000 000 RUB | за все

(за 1 м2 — 122 185 RUB)

площадь 2 455.3 м2

QR код Qr код

Продажа здания ДОУ в ЖК "Зеленая Роща" по адресу: МО, г. Ивантеевка, ул. Санаторная, д. 1.
ЖК включает в себя 14 таунхаусов и два монолитно-кирпичных дома, возведенных по индивидуальному проекту.

Удаленность от МКАД 16 км по Ярославскому шоссе.
В шаговой доступности находится остановка автобуса, откуда можно добраться до железнодорожных станций «Ивантеевка-2» или «Пушкино» Путь на электричке от них до Ярославского вокзала займет 40-50 минут.
Удобные выезды на ул.Кирова и Санаторную (15 мин до Москвы).

Помещение полностью оборудовано для размещения детского учреждения. Долгое время работал муниципальный детский сад.
Помещения отвечают всем требованиям СаПиНа. На территории возможна организация парковки. Так же здание частично меблировано, оснащено видеонаблюдением, оборудовано приторно-вытяжной вентиляцией с рекуператорами. Коммуникации центральные, в том числе и ГВС.
Назначение здания: нежилое.

Технические характеристики:
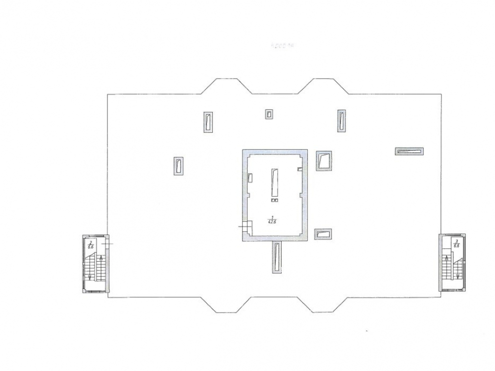
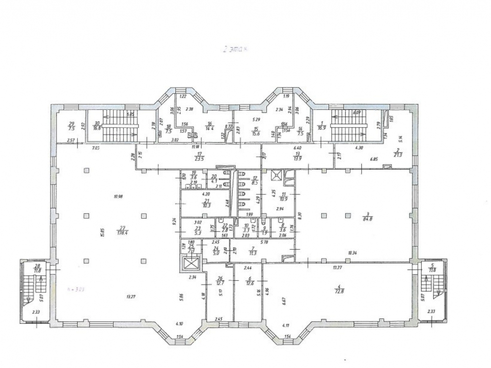
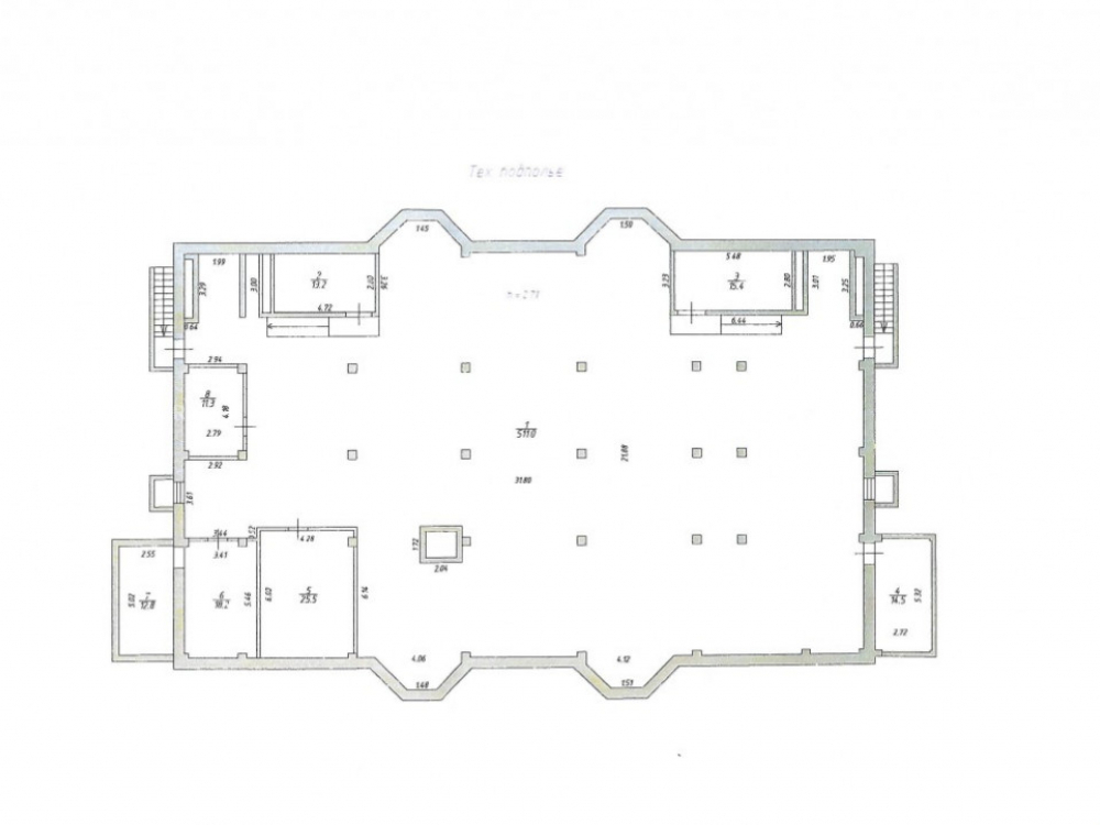
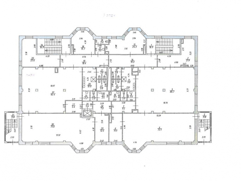
Общая площадь здания 2455,3 кв. м. Год постройки: 2015.
Количество этажей: 4, в том числе подземных: 1. Материал стен: монолит, ж/б.
Высота потолков: подпол 2,9 м, основные этажи - 3,2 м. Смешанная планировка, включает учебные кабинеты, подсобные и служебные помещения, буфет, санузлы, душевые и спальни. Выполнен ремонт, соответствующий назначению помещения.

Земельный участок 3921 кв.м. в собственности.

Коммерческие условия:
Стоимость объекта - 300 000 000 руб.
Стоимость кв.м.: 122 184 руб.
Арендатор:
SM-Pension, пансионат для пожилых людей
Аренда 1 год - 1 500 000 руб/мес
Аренда 2 год - 1 800 000 руб/мес

Технические характеристики

Тип здания: Арендный бизнес,Особняк/здание,Торговая,Жилой комплекс (мфк)

Общая площадь: 2455.3  м2

Этаж: 1

Всего этажей: 4

Электрическая мощность: по запросу

Высота потолков: 3,2 м

Парковка: есть

Коммерческие условия

Цена за все: 300 000 000 RUB

ФОРМА ВЛАДЕНИЯ: ООО с НДС

Общий МАП: 1 500 000 RUB (данный МАП является минимальным, при оптимизации арендаторов арендный поток можно значительно увеличить)

Общий ГАП: 18 000 000 RUB

Окупаемость: 16.8 лет

Доходность: 5.97%

карта

Расположение

Адрес: Ивантеевка, Санаторная улица, 1

Округ: Северо-Восточный административный округ

Близость метро: Медведково

Транспортная доступность: В шаговой доступности остановка автобуса

Окружение

Торговое окружение: -

Адрес:

Ивантеевка, Санаторная улица, 1

Округ:

Северо-Восточный административный округ

Близость метро:

Медведково

Транспортная доступность:

В шаговой доступности остановка автобуса

карта

Торговое окружение:

-

Общая площадь:

2455.3  м2

Этаж:

1

Всего этажей:

4

Тип:

Арендный бизнес,Особняк/здание,Торговая,Жилой комплекс (мфк)

Электрическая мощность:

по запросу

Высота потолков:

3,2 м

Парковка:

есть

ФОРМА ВЛАДЕНИЯ:

ООО с НДС

Цена за все:

300 000 000 RUB

Общий МАП: 1 500 000

(данный МАП является минимальным, при оптимизации арендаторов арендный поток можно значительно увеличить)

Общий ГАП:

18 000 000

Окупаемость:

16.8 лет

Доходность:

5.97%

Планировка

Шагитов Марат

Ваш брокер по работе с клиентами

Найдите лучшее место
для жизни, бизнеса, инвестиций

Оставьте свои контакты — с вами свяжется руководитель отдела для презентации нужного вам объекта

Похожие объекты