Id 157619

МО, Котельники, Новорязанское шоссе, д. 6, к. 4./ 386.16м2 / Продажа торгового помещения с арендатором

адрес Котельники, Новорязанское шоссе, 6с4

Арендный бизнес
Торговая

Окупаемость: 9.5 лет

Доходность:10.53%

175 000 000 RUB | за все

(за 1 м2 — 453 133 RUB)

площадь 386.2 м2

QR код Qr код

Предлагается в продажу помещение свободного назначения, расположенное по адресу : МО, Новорязанское шоссе, д. 6, к. 4, ЖК «Дюна»
До метро Котельники 5 минут на автомобиле. Удобная транспортная доступность, 4 км от МКАД. Распроданность квартир: 35%. Концепция «двор без машин». Подземная, надземная, многоуровневая парковка (около 3 000 мест).
Прогноз Застройщика: ввод – 3-4 квартал 2027 г.

Технические характеристики:
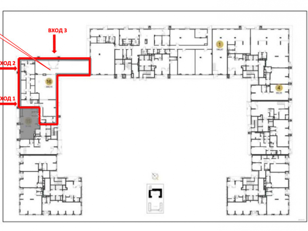
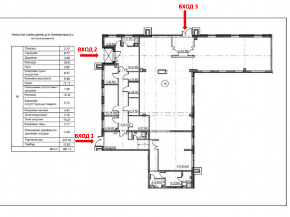
Общая площадь - 386.16м2, на 1 этаже в стилобатной части жилого дома. 3 отдельных входа. Высота потолока - 5м. Электрическая мощность - 0,2кВт на м2 (80кВт) с возмозностью увеличения. зона разгрузки погрузки

Коммерческие условия:
Стоимость объекта - 175 000 000 рублей.
Стоимость за м2 - 453.000 рублей;
Получен офер от супермаркета по ставке 4000руб/м2
Продажа по уступке ДДУ

Технические характеристики

Тип здания: Арендный бизнес,Торговая

Общая площадь: 386.2  м2

Этаж: 1

Всего этажей: 1

Электрическая мощность: 80кВт

Высота потолков:

Парковка: нет

Коммерческие условия

Цена за все: 175 000 000 RUB

ФОРМА ВЛАДЕНИЯ: УСН

Общий МАП: 1 544 800 RUB (данный МАП является минимальным, при оптимизации арендаторов арендный поток можно значительно увеличить)

Общий ГАП: 18 537 600 RUB

Окупаемость: 9.5 лет

Доходность: 10.53%

карта

Расположение

Адрес: Котельники, Новорязанское шоссе, 6с4

Округ: Юго-Восточный административный округ

Близость метро: Котельники

Транспортная доступность: 5 минут на авто от метро Котельники

Окружение

Торговое окружение: -

Адрес:

Котельники, Новорязанское шоссе, 6с4

Округ:

Юго-Восточный административный округ

Близость метро:

Котельники

Транспортная доступность:

5 минут на авто от метро Котельники

карта

Торговое окружение:

-

Общая площадь:

386.2  м2

Этаж:

1

Всего этажей:

1

Тип:

Арендный бизнес,Торговая

Электрическая мощность:

80кВт

Высота потолков:

Парковка:

нет

ФОРМА ВЛАДЕНИЯ:

УСН

Цена за все:

175 000 000 RUB

Общий МАП: 1 544 800

(данный МАП является минимальным, при оптимизации арендаторов арендный поток можно значительно увеличить)

Общий ГАП:

18 537 600

Окупаемость:

9.5 лет

Доходность:

10.53%

Планировка

Александр Невский

Ваш брокер по работе с клиентами

Найдите лучшее место
для жизни, бизнеса, инвестиций

Оставьте свои контакты — с вами свяжется руководитель отдела для презентации нужного вам объекта

Похожие объекты