Id 157777

Звенигородское шоссе, 7 - 192,3 кв. м. - Продажа / Торговое помещение / Мед. клиника

адрес Москва, Звенигородское шоссе, 7

Арендный бизнес
Многофункциональный
С отдельным входом
Торговая

Окупаемость: 7.8 лет

Доходность:12.77%

56 000 000 RUB | за все

(за 1 м2 — 291 212 RUB)

площадь 192.3 м2

QR код Qr код

Продается нежилое помещение на 1-й линии Звенигородского шоссе.
Адрес: г. Москва, ЦАО, Пресненский район, Звенигородское шоссе, 7. В шаговой доступности (6 минут пешком) находится станция метро «Улица 1905 года». Высокий пешеходный и автомобильный трафик. Развитая инфраструктура района включает жилые комплексы бизнес-класса, деловые центры, супермаркеты, банки, кофейни, рестораны, фитнес-клубы и медицинские центры, что обеспечивает постоянный поток целевой аудитории.

Технические характеристики:
Общая площадь: 192,3 кв. м., 1 этаж. Отдельный вход. Витринное остекление. Высота потолков: 3 м. Электрическая мощность: по запросу. Отделка: Офисная, в хорошем состоянии. Центральное отопление. Парковка.

Коммерческие условия:
Стоимость объекта: 56 000 000 рублей.
Стоимость за 1 кв. м.: 291 211 рублей.
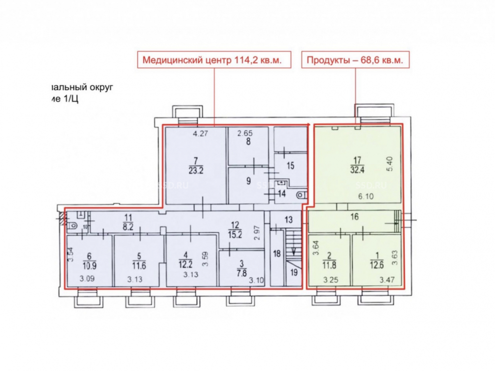
Текущие арендаторы: Медицинская клиника (с действующей лицензией) и продуктовый магазин.
Арендуют более 10 лет.
Общий МАП: 600 000 рублей.
Общий ГАП: 7 200 000 рублей.
Все коммунальные расходы оплачиваются арендаторами.
Окупаемость: 7.8 месяцев.

Технические характеристики

Тип здания: Арендный бизнес,Многофункциональный,С отдельным входом,Торговая

Общая площадь: 192.3  м2

Этаж: 1

Всего этажей: 5

Электрическая мощность: по запросу

Высота потолков: 3 м

Парковка: наземная

Коммерческие условия

Цена за все: 56 000 000 RUB

ФОРМА ВЛАДЕНИЯ: собственность

Общий МАП: 600 000 RUB (данный МАП является минимальным, при оптимизации арендаторов арендный поток можно значительно увеличить)

Общий ГАП: 7 200 000 RUB

Окупаемость: 7.8 лет

Доходность: 12.77%

карта

Расположение

Адрес: Москва, Звенигородское шоссе, 7

Округ: Центральный административный округ

Близость метро: Улица 1905 года

Транспортная доступность: в пешей доступности

Окружение

Торговое окружение: развитое торговое окружение

Адрес:

Москва, Звенигородское шоссе, 7

Округ:

Центральный административный округ

Близость метро:

Улица 1905 года

Транспортная доступность:

в пешей доступности

карта

Торговое окружение:

развитое торговое окружение

Общая площадь:

192.3  м2

Этаж:

1

Всего этажей:

5

Тип:

Арендный бизнес,Многофункциональный,С отдельным входом,Торговая

Электрическая мощность:

по запросу

Высота потолков:

3 м

Парковка:

наземная

ФОРМА ВЛАДЕНИЯ:

собственность

Цена за все:

56 000 000 RUB

Общий МАП: 600 000

(данный МАП является минимальным, при оптимизации арендаторов арендный поток можно значительно увеличить)

Общий ГАП:

7 200 000

Окупаемость:

7.8 лет

Доходность:

12.77%

Планировка

Степанов Анатолий

Ваш брокер по работе с клиентами

Найдите лучшее место
для жизни, бизнеса, инвестиций

Оставьте свои контакты — с вами свяжется руководитель отдела для презентации нужного вам объекта

Похожие объекты