Id 160298

Москва, САО, Ходынский бульвар, 6/2 (STONE Ходынка 1, ОСЗ Ресторан) - 1500.5м2 / Продажа помещения свободного назначения с НДС

адрес Москва, Ходынский бульвар, 6/2

Торговая

2 700 000 000 RUB | за все

(за 1 м2 — 1 799 400 RUB)

площадь 1 500.5 м2

QR код Qr код

Предлагается в продажу помещение свободного назначения в САО по адресу: Москва, Ходынский бульвар, 6/2 (STONE Ходынка 1, ОСЗ Ресторан)
Метро «ЦСКА» и ТЦ «Авиапарк» в 1 минуте пешком.
Офисный квартал состоит из 3 башен высотой от 13 до 23 этажей.
Все основные потоки жителей района, сотрудников бизнес центров, посетителей парков и спортивных арен проходят через
STONE Ходынка-1 и составляют более 72 000 чел./сутки.

Июль 2024 года – получение разрешения на строительство
III кв. 2027 года – строительная готовность

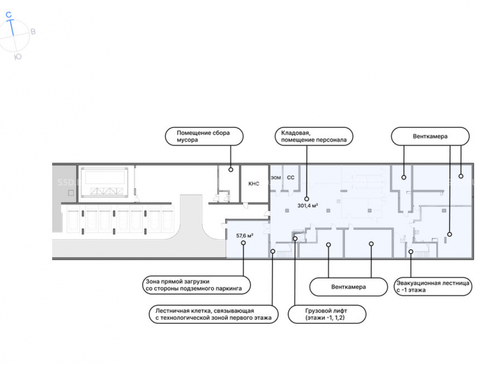
Технические характеристики: помещение площадью 1500.5 кв.м., находится на 1 и 2 этажах 3-х этажного ОСЗ. Открытая планировка (есть возможность объединения), потолки 4.15м., электроэнергия 300 кВт (есть техническая возможность для увеличения).

Коммерческие условия:
• стоимость объекта: 2 700 000 000 рублей
• стоимость объекта за м2: 1 800 000 рублей
• продажа по ДДУ есть рассрочка с первоначальным взносом 10% и более
• собственник юр. лицо продажа с НДС

Технические характеристики

Тип здания: Торговая

Общая площадь: 1500.5  м2

Этаж: 1

Всего этажей: 3

Электрическая мощность: 0,2 кВт на м2

Высота потолков: 4.15м

Парковка: большая наземная охраняемая парковка у помещения

Коммерческие условия

Цена за все: 2 700 000 000 RUB

ФОРМА ВЛАДЕНИЯ: ДДУ

карта

Расположение

Адрес: Москва, Ходынский бульвар, 6/2

Округ: Северный административный округ

Близость метро: ЦСКА

Транспортная доступность: Метро «ЦСКА» и ТЦ «Авиапарк» в 1 минуте пешком.

Окружение

Торговое окружение: --

Адрес:

Москва, Ходынский бульвар, 6/2

Округ:

Северный административный округ

Близость метро:

ЦСКА

Транспортная доступность:

Метро «ЦСКА» и ТЦ «Авиапарк» в 1 минуте пешком.

карта

Торговое окружение:

--

Общая площадь:

1500.5  м2

Этаж:

1

Всего этажей:

3

Тип:

Торговая

Электрическая мощность:

0,2 кВт на м2

Высота потолков:

4.15м

Парковка:

большая наземная охраняемая парковка у помещения

ФОРМА ВЛАДЕНИЯ:

ДДУ

Цена за все:

2 700 000 000 RUB

Планировка

Никифоров Андрей

Ваш брокер по работе с клиентами

Найдите лучшее место
для жизни, бизнеса, инвестиций

Оставьте свои контакты — с вами свяжется руководитель отдела для презентации нужного вам объекта

Похожие объекты