Id 18317

Москва, ЦАО, ул. Верхняя Сыромятническая ул., 9с2 -685кв.м./Продажа ОСЗ

адрес Москва, ЦАО, ул. Верхняя Сыромятническая ул., 9с2

Многофункциональный
Особняк/здание
С отдельным входом
Торговая
Общепит

340 000 000 RUB | за все

(за 1 м2 — 496 350 RUB)

площадь 685.0 м2

QR код Qr код

Продажа особняка общей площадью 684,3 м2 ул, Верхняя Сыромятническая, д. 9с2 (5 минуты пешком от метро Курская). 1 линия домов. Трехэтажное здание с цоколем. Договор аренды земельного участка до 2061 года.
Вокруг плотное сосредоточение бизнес-центров, офисных, административных зданий и комплексов с апартаментами, интенсивный пешеходный трафик, рядом остановки общественного транспорта.

Технические характеристики:
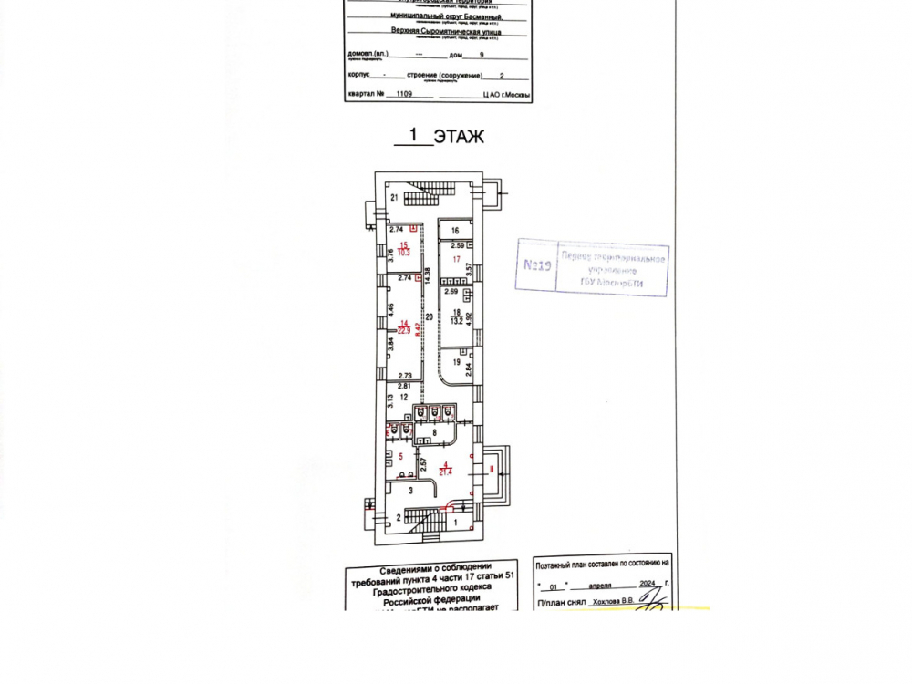
1 Этаж - 177,1 кв м (не считая веранды) где располагается центральный вход, холл, кухня, туалет лестница и летняя веранда. Также на 1 этаже имеется отдельный вход для разгрузки товаров.
2 Этаж - 196,3 кв м Банкетный зал
3 Этаж - 182,1 кв м - 2 VIP кабинета, туалет для посетителей, котельная, склад, служебное помещение, офис (кабинет директора), туалет для персонала, прачечная, раздевалка и вентиляционная.
Цоколь - 128,8 кв м - склад, офис, холодильные и морозильные камеры хранения, овощной цех и мясной цех.
Электрическая мощность 300 кВт. Есть разрешение на летнюю веранду во дворе здания на 90 м2. Место для размещения рекламы.

Коммерческие условия:
Цена помещения - 340 000 000руб. ндс
Цена за 1 кв.м - 496 858 руб.
Схема сделки: продажа юр.лица

Технические характеристики

Тип здания: Многофункциональный,Особняк/здание,С отдельным входом,Торговая,Общепит

Общая площадь: 685  м2

Этаж: 3

Всего этажей: 3

Электрическая мощность: -

Высота потолков: -

Парковка: -

Коммерческие условия

Цена за все: 340 000 000 RUB

ФОРМА ВЛАДЕНИЯ: -

карта

Расположение

Адрес: Москва, ЦАО, ул. Верхняя Сыромятническая ул., 9с2

Округ: Центральный административный округ

Близость метро: Курская

Транспортная доступность: -

Окружение

Торговое окружение: -

Адрес:

Москва, ЦАО, ул. Верхняя Сыромятническая ул., 9с2

Округ:

Центральный административный округ

Близость метро:

Курская

Транспортная доступность:

-

карта

Торговое окружение:

-

Общая площадь:

685  м2

Этаж:

3

Всего этажей:

3

Тип:

Многофункциональный,Особняк/здание,С отдельным входом,Торговая,Общепит

Электрическая мощность:

-

Высота потолков:

-

Парковка:

-

ФОРМА ВЛАДЕНИЯ:

-

Цена за все:

340 000 000 RUB

Планировка

Александр Невский

Ваш брокер по работе с клиентами

Найдите лучшее место
для жизни, бизнеса, инвестиций

Оставьте свои контакты — с вами свяжется руководитель отдела для презентации нужного вам объекта

Похожие объекты