Id 4924

Москва, Страстной бульвар, 4с4 - 171.6 м2/ Продажа АБ с ESTERUM - коктейльный бар

адрес Москва, ЦАО, Страстной бульвар, 4с4

Арендный бизнес
С отдельным входом
Общепит

Окупаемость: 11 лет

Доходность:9.09%

150 000 000 RUB | за все

(за 1 м2 — 874 126 RUB)

площадь 171.6 м2

QR код Qr код

Продаётся нежилое помещение с арендатором по адресу: Москва, Страстной бульвар, 4с4, площадью 171.6 м2.
Объект расположен в непосредственной близости от сквера на Пушкинской площади, 70 метров от метро "Пушкинская", "Тверская" и "Чеховская".
Вторая линия домов, вход в помещение сразу после арки во двор.
Хороший рекламный потенциал и визуализация объекта, сверхвысокий автомобильный и пешеходный трафики.

Технические характеристики:
цокольный этаж в 7-этажном жилом доме 1899 года постройки, общей площадью 171.6м2
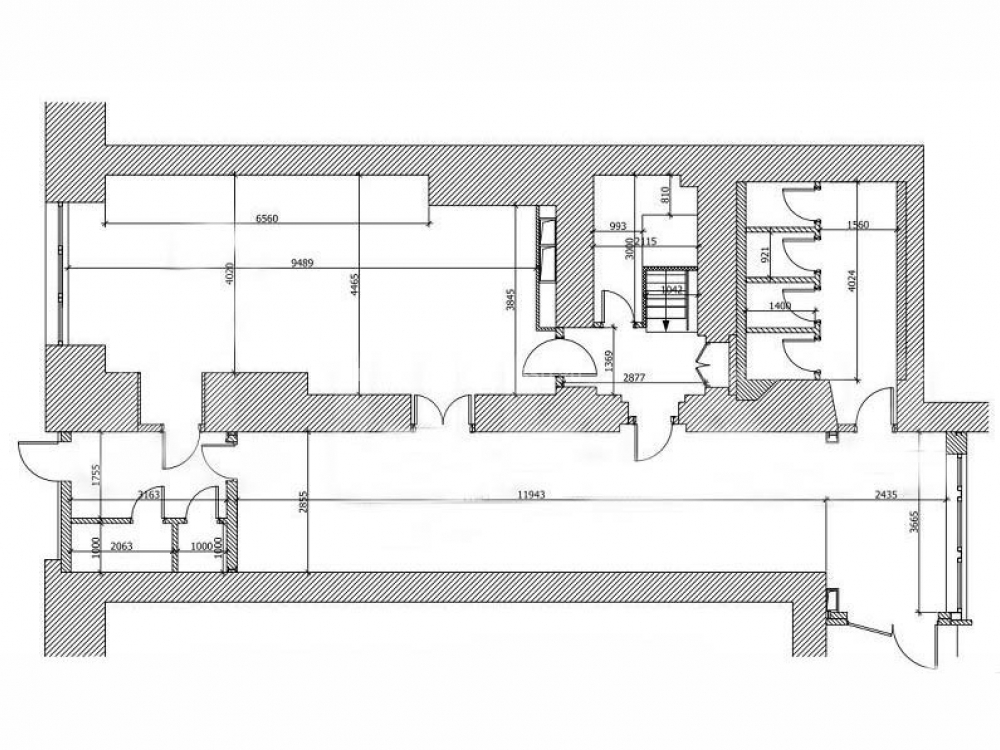
Помещение находится на 1 и -1 этаже жилого здания. Планировка включает в себя входную группу, холл, кухню, три больших и два маленьких зала, три санузла.
Отдельная входная группа и запасной выход, высота потолков 3,2м., выделенная эл.мощность 120 кВт, система приточно вытяжной вентиляции, технологическая вытяжка, система кондиционирования,
видеонаблюдение, пожарная охрана.

Коммерческие условия:
Стоимость объекта: 150 000 000 руб.
Стоимость объекта за м2: 874 126 руб.
Арендатор: ESTERUM - коктейльный бар. В июле 2026г. заканчивается срок договора аренды также будет индексация до 880 000, с июля месяца индексация будет 10%.
Действующий арендатор желает продлить арендный срок, на других условиях , в сторону повышения МАП, в этой локации, потенциальная МАП на аналогичное помещение составляет от 1000000р и выше.
МАП: 800 000 руб. + КУ
ГАП: 9 600 000 РУБ
ДКПН (ИП на УСН)

Технические характеристики

Тип здания: Арендный бизнес,С отдельным входом,Общепит

Общая площадь: 171.6  м2

Этаж: -1

Всего этажей: 7

Электрическая мощность: 120 кВт

Высота потолков: 3.2 м

Парковка: -

Коммерческие условия

Цена за все: 150 000 000 RUB

ФОРМА ВЛАДЕНИЯ: -

Общий МАП: 800 000 RUB (данный МАП является минимальным, при оптимизации арендаторов арендный поток можно значительно увеличить)

Общий ГАП: 9 600 000 RUB

Окупаемость: 11 лет

Доходность: 9.09%

карта

Расположение

Адрес: Москва, ЦАО, Страстной бульвар, 4с4

Округ: Центральный административный округ

Близость метро: Пушкинская,Тверская,Чеховская

Транспортная доступность: Объект расположен в непосредственной близости от сквера на Пушкинской площади, 70 метров от метро

Окружение

Торговое окружение: развитое

Адрес:

Москва, ЦАО, Страстной бульвар, 4с4

Округ:

Центральный административный округ

Близость метро:

Пушкинская,Тверская,Чеховская

Транспортная доступность:

Объект расположен в непосредственной близости от сквера на Пушкинской площади, 70 метров от метро

карта

Торговое окружение:

развитое

Общая площадь:

171.6  м2

Этаж:

-1

Всего этажей:

7

Тип:

Арендный бизнес,С отдельным входом,Общепит

Электрическая мощность:

120 кВт

Высота потолков:

3.2 м

Парковка:

-

ФОРМА ВЛАДЕНИЯ:

-

Цена за все:

150 000 000 RUB

Общий МАП: 800 000

(данный МАП является минимальным, при оптимизации арендаторов арендный поток можно значительно увеличить)

Общий ГАП:

9 600 000

Окупаемость:

11 лет

Доходность:

9.09%

Планировка

Александр Невский

Ваш брокер по работе с клиентами

Найдите лучшее место
для жизни, бизнеса, инвестиций

Оставьте свои контакты — с вами свяжется руководитель отдела для презентации нужного вам объекта

Похожие объекты