Id 144162

Софийская набережная 30с3 - 600 кв.м / Продажа особняка

адрес Москва, Софийская набержная, д. 30с3

Особняк/здание
ЗУ
Отель/Хостел

800 000 000 RUB | за все

(за 1 м2 — 1 333 333 RUB)

площадь 600.0 м2

QR код Qr код

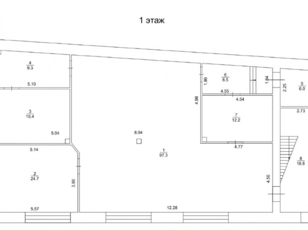
Предлагается в продажу отдельно стоящее здание - особняк, расположенное по адресу: ЦАО, Софийская набережная, дом 30, стр. 3. 2 этажный особняк с мансардой, 1917 года постройки, расположен в историческом центре Москвы, в 10 минутах ходьбы от ст. метро "Новокузнецкая", в непосредственной близости от центра: Кремль, парк Зарядье. Здание находится на второй линии Софийской набережной, напротив Кремля. Разделено на два этажа и часть мансарды.

Технические характеристики: Общая площадь здания 600м² (каждый этаж по 200м²). Охраняемая парковка на 4 м/м. Соседство с кафе, бизнес-центрами. Коммуникации все центральные. Электрическая мощность - 150 кВт. Высота потолков - 2,7 - 3.4 м. Кабинетная планировка на 1 и 3 этаже, 2 этаж опенспейс. Качественный ремонт с применением европейских материалов. Парадный вход с улицы.
Идеально подойдет под офис, мед центр, отель, банк и проч. представительство и др. ЗУ 240 м2

Коммерческие условия:
Стоимость - 800 000 000 рублей
Продажа по ДКП от физ.лица

Технические характеристики

Тип здания: Особняк/здание,ЗУ,Отель/Хостел

Общая площадь: 600  м2

Этаж: 1

Всего этажей: 3

Электрическая мощность: 150 кВт

Высота потолков: 3

Парковка: Охраняемая парковка на 4 м/м

Коммерческие условия

Цена за все: 800 000 000 RUB

ФОРМА ВЛАДЕНИЯ: собственность физ лица

карта

Расположение

Адрес: Москва, Софийская набержная, д. 30с3

Округ: Центральный административный округ

Близость метро: Новокузнецкая

Транспортная доступность: 10 минутах ходьбы от ст. метро

Окружение

Торговое окружение: -

Адрес:

Москва, Софийская набержная, д. 30с3

Округ:

Центральный административный округ

Близость метро:

Новокузнецкая

Транспортная доступность:

10 минутах ходьбы от ст. метро

карта

Торговое окружение:

-

Общая площадь:

600  м2

Этаж:

1

Всего этажей:

3

Тип:

Особняк/здание,ЗУ,Отель/Хостел

Электрическая мощность:

150 кВт

Высота потолков:

3

Парковка:

Охраняемая парковка на 4 м/м

ФОРМА ВЛАДЕНИЯ:

собственность физ лица

Цена за все:

800 000 000 RUB

Планировка

Александр Невский

Ваш брокер по работе с клиентами

Найдите лучшее место
для жизни, бизнеса, инвестиций

Оставьте свои контакты — с вами свяжется руководитель отдела для презентации нужного вам объекта

Похожие объекты