Id 145534

Москва, Леснорядский пер., 18с7 - 3032 кв.м. - Продажа здания / ОСЗ

адрес Леснорядский переулок, 18с7

Многофункциональный
Особняк/здание
С отдельным входом
Торговая
Проект
Офис
ТЦ
Редевелопмент
Медицина
Отель/Хостел
Склад

350 000 000 RUB | за все

(за 1 м2 — 115 451 RUB)

площадь 3 031.6 м2

QR код Qr код

Предлагается к продаже отдельно стоящее здание (ОСЗ) общей площадью 3031,6 кв.м. по адресу: Москва, Леснорядский переулок, д.18, стр. 7. Нежилое здание имеет 4 этажа. До метро Сокольники и метро Красносельская 15 мин.пешком. Удобное расположение.

Технические характеристики:
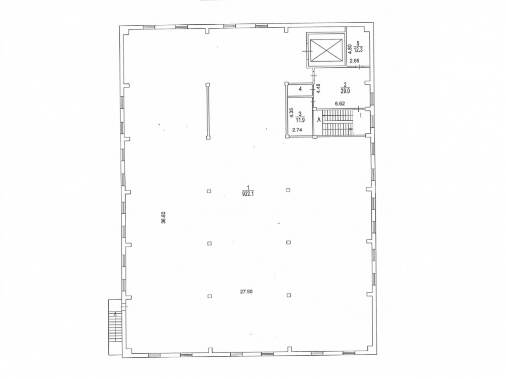
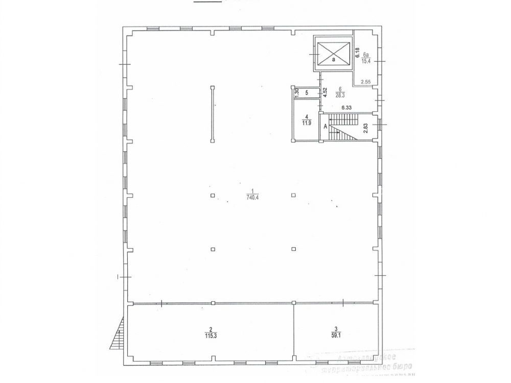
Площадь - 3031,6 кв.м. Площади: 1 этаж - 1001,1 кв.м.; 2 этаж - 996,9 кв.м.; 3 этаж - 923,5 кв.м. и надстройка - 110,1 кв.м.
Высота потолка: 1 и 2 этажи - 6,25 м.; 3 этаж - 4,6 м., надстройка - 3,2 м. Мощность э/э - 350 кВт. Есть возможность увеличения до 1 мВт. Парковка на 15-20 м/м. Есть 3 въездных ворот для грузового транспорта. Грузовой лифт на 3,5 тонны, с возможностью увеличения. Открытая планировка, несущие только колонны. Все городские коммуникации.
Участок 1068 кв.м. в аренде у города

Коммерческие условия:
Общая стоимость: 350 000 000 руб. с НДС
Стоимость 1 кв.м. : 115 450 руб. с НДС
Собственник юр.лицо на ОСНО.

Технические характеристики

Тип здания: Многофункциональный,Особняк/здание,С отдельным входом,Торговая,Проект,Офис,ТЦ,Редевелопмент,Медицина,Отель/Хостел,Склад

Общая площадь: 3031.6  м2

Этаж: 1

Всего этажей: 3

Электрическая мощность: 350 кВт, есть возможность увеличения до 1 МВт

Высота потолков: 6,25 м.

Парковка: бесплатная городская

Коммерческие условия

Цена за все: 350 000 000 RUB

ФОРМА ВЛАДЕНИЯ: ООО

карта

Расположение

Адрес: Леснорядский переулок, 18с7

Округ: Центральный административный округ

Близость метро: Красносельская,Сокольники

Транспортная доступность: хорошая

Окружение

Торговое окружение: аптека, магазин, кафе

Адрес:

Леснорядский переулок, 18с7

Округ:

Центральный административный округ

Близость метро:

Красносельская,Сокольники

Транспортная доступность:

хорошая

карта

Торговое окружение:

аптека, магазин, кафе

Общая площадь:

3031.6  м2

Этаж:

1

Всего этажей:

3

Тип:

Многофункциональный,Особняк/здание,С отдельным входом,Торговая,Проект,Офис,ТЦ,Редевелопмент,Медицина,Отель/Хостел,Склад

Электрическая мощность:

350 кВт, есть возможность увеличения до 1 МВт

Высота потолков:

6,25 м.

Парковка:

бесплатная городская

ФОРМА ВЛАДЕНИЯ:

ООО

Цена за все:

350 000 000 RUB

Планировка

Петр Соловьев

Ваш брокер по работе с клиентами

Найдите лучшее место
для жизни, бизнеса, инвестиций

Оставьте свои контакты — с вами свяжется руководитель отдела для презентации нужного вам объекта

Похожие объекты