Id 146179

Москва, САО, р-н Сокол, ул. Панфилова, 12 / 359 м2 / Продажа торгового помещения

адрес Москва, САО, ул. Панфилова, 12

Многофункциональный
С отдельным входом
Торговая
Общепит
Жилой комплекс (мфк)

79 000 000 RUB | за все

(за 1 м2 — 220 056 RUB)

площадь 359.0 м2

QR код Qr код

Продается нежилое помещение свободного назначения в жилом доме по адресу: Москва, САО, р-н Сокол, ул. Панфилова, 12, площадью 359 м².
Объект расположен в густонаселенном районе. Шаговая доступность от метро "Панфиловское, "Стрешнево", "Сокол" . Высокий пешеходный и автомобильный трафик. Удобная транспортная доступность.

Технические параметры:
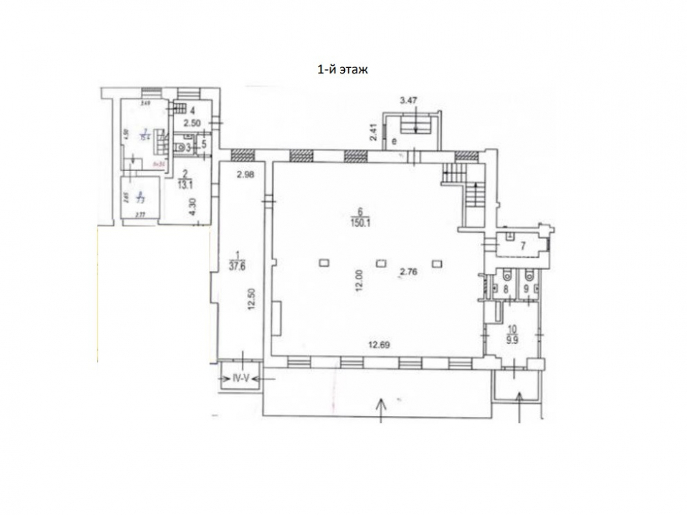
1 этаж 8 - ми этажного жилого дома, общей площадью 359 м2, (1 этаж 228,7 м2 / -1 этаж 130, 1 м2) вентиляция приточно-вытяжная, выделенная мощность 100 кВт, технологическая вытяжка, центральное кондиционирование, наземная парковка, дизайнерский ремонт, высота потолков 4м, отдельный вход с первой линии, витринные окна.

Коммерческие условия:
Стоимость объекта: 79 000 000 рублей
Стоимость объекта за м² : 220 056 рублей

Можно приобрести как Готовый арендный бизнес:
Потенциальный МАП 750 000 руб./ ГАП 9 000 000 руб.
Потенциальный срок окупаемости: 8,8 лет
Потенциальный арендатор: ресторан Буффало и Чебуречная.

Продажа по ДКПН от ООО

Технические характеристики

Тип здания: Многофункциональный,С отдельным входом,Торговая,Общепит,Жилой комплекс (мфк)

Общая площадь: 359  м2

Этаж: 1

Всего этажей: 8

Электрическая мощность: 100

Высота потолков: 3,5

Парковка: на улице и во дворе

Коммерческие условия

Цена за все: 79 000 000 RUB

ФОРМА ВЛАДЕНИЯ: собственность

карта

Расположение

Адрес: Москва, САО, ул. Панфилова, 12

Округ: Северный административный округ

Близость метро: Панфиловская

Транспортная доступность: доступно

Окружение

Торговое окружение: развитая, сложившаяся инфраструктура

Адрес:

Москва, САО, ул. Панфилова, 12

Округ:

Северный административный округ

Близость метро:

Панфиловская

Транспортная доступность:

доступно

карта

Торговое окружение:

развитая, сложившаяся инфраструктура

Общая площадь:

359  м2

Этаж:

1

Всего этажей:

8

Тип:

Многофункциональный,С отдельным входом,Торговая,Общепит,Жилой комплекс (мфк)

Электрическая мощность:

100

Высота потолков:

3,5

Парковка:

на улице и во дворе

ФОРМА ВЛАДЕНИЯ:

собственность

Цена за все:

79 000 000 RUB

Планировка

Шаклеина Юлия

Ваш брокер по работе с клиентами

Найдите лучшее место
для жизни, бизнеса, инвестиций

Оставьте свои контакты — с вами свяжется руководитель отдела для презентации нужного вам объекта

Похожие объекты