Id 149478

Москва, Новомарьинская ул., 20 - 157 кв.м. - Продажа ГАБ

адрес Москва, Новомарьинская ул., 20

Арендный бизнес
Многофункциональный
Особняк/здание
С отдельным входом
Торговая
Общепит
Медицина

Окупаемость: 7.9 лет

Доходность:12.63%

33 000 000 RUB | за все

(за 1 м2 — 210 191 RUB)

площадь 157.0 м2

QR код Qr код

Предлагается в продажу помещение свободного назначения площадью 157 кв.м. по адресу: Москва, ул. Новомарьинская, д.20. Одноэтажное торгово-административное здание. Плотный жилой массив. Интенсивный трафик, рядом магазин Пятерочка. До метро Братиславская 10 мин. пешком.

Технические характеристики:
Площадь 157 кв.м.. Отдельный вход. Место для погрузки-разгрузки товаров. Высота потолка - 3,1 м. Мощность э/э - 15 кВт, есть возможность увеличения. Все коммуникации городские.

Коммерческие условия:
Цена объекта: 33 000 000 руб.
Цена 1 кв.м.: 210 191 руб.
Арендатор: Музыкальная школа. ДДА на 5 лет.
МАП - 350 000 / ГАП - 4 200 000 руб.
Окупаемость: 7,8 лет.
Собственник: физ.лицо

Технические характеристики

Тип здания: Арендный бизнес,Многофункциональный,Особняк/здание,С отдельным входом,Торговая,Общепит,Медицина

Общая площадь: 157  м2

Этаж: 1

Всего этажей: 1

Электрическая мощность: 15 кВт

Высота потолков: 3,1 м.

Парковка: бесплатная

Коммерческие условия

Цена за все: 33 000 000 RUB

ФОРМА ВЛАДЕНИЯ: физ.лицо

Окупаемость: 7.9 лет

Доходность: 12.63%

карта

Расположение

Адрес: Москва, Новомарьинская ул., 20

Округ: Юго-Восточный административный округ

Близость метро: Братиславская

Транспортная доступность: хорошая

Окружение

Торговое окружение: магазин Пятерочка

Адрес:

Москва, Новомарьинская ул., 20

Округ:

Юго-Восточный административный округ

Близость метро:

Братиславская

Транспортная доступность:

хорошая

карта

Торговое окружение:

магазин Пятерочка

Общая площадь:

157  м2

Этаж:

1

Всего этажей:

1

Тип:

Арендный бизнес,Многофункциональный,Особняк/здание,С отдельным входом,Торговая,Общепит,Медицина

Электрическая мощность:

15 кВт

Высота потолков:

3,1 м.

Парковка:

бесплатная

ФОРМА ВЛАДЕНИЯ:

физ.лицо

Цена за все:

33 000 000 RUB

Окупаемость:

7.9 лет

Доходность:

12.63%

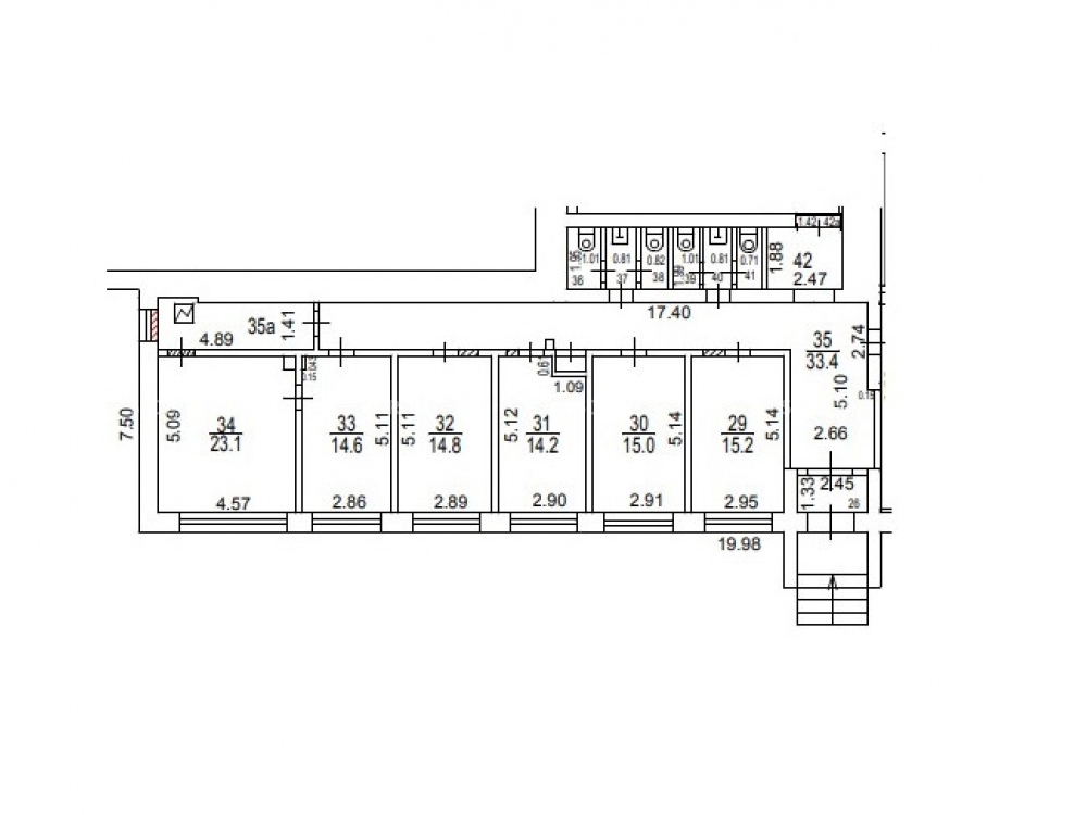
Планировка

Петр Соловьев

Ваш брокер по работе с клиентами

Найдите лучшее место
для жизни, бизнеса, инвестиций

Оставьте свои контакты — с вами свяжется руководитель отдела для презентации нужного вам объекта

Похожие объекты