Id 156308

г Москва, ул Снежная, д 26 / Продажа / ТЦ / 23401 кв.м.

адрес Москва, Снежная улица, 26

Арендный бизнес
Многофункциональный
Торговая
ТЦ

Окупаемость: 9.8 лет

Доходность:10.17%

4 080 000 000 RUB | за все

(за 1 м2 — 174 352 RUB)

площадь 23 401.0 м2

QR код Qr код

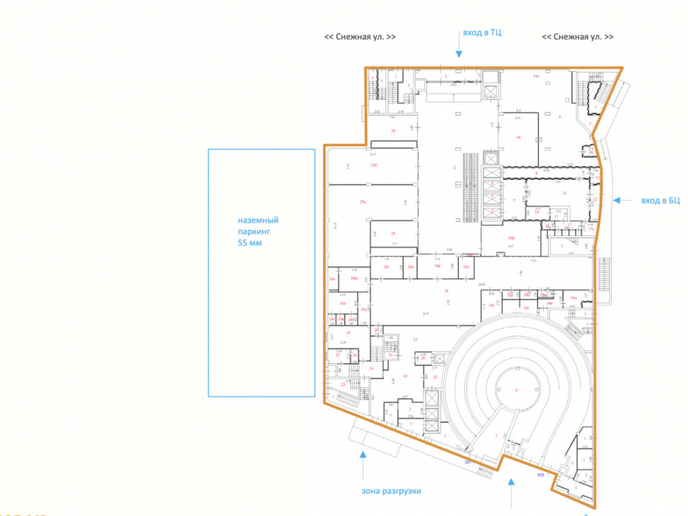
Продажа торгово-офисного центра на первой линии Снежной улицы у метро Свиблово.

Торгово-офисный центр общей площадью 23401 м2. Шесть входных групп. Зона разгрузки/погрузки. Вытяжки для общепита. Три подземных этажа (паркинг) на 250 гостевых машиномест. Возможность организации летней веранды. Электрическая мощность 1610 кВт. Зона разгрузки/погрузки. Вытяжки для общепита. Заполняемость 99%.

Арендаторы: Перекрёсток, Детский мир, DNS, Теремок, ВТБ.
Общий МАП: 34 660 000 рублей вкл. НДС
Общий ГАП: 415 917 000 рублей вкл. НДС
Расчетная окупаемость: 10 лет.

Технические характеристики

Тип здания: Арендный бизнес,Многофункциональный,Торговая,ТЦ

Общая площадь: 23401  м2

Этаж: 1

Всего этажей: 14

Электрическая мощность: 1610 кВт

Высота потолков: 3.5 м.

Парковка: 250 м/м.

Коммерческие условия

Цена за все: 4 080 000 000 RUB

ФОРМА ВЛАДЕНИЯ: ООО на усн.

Общий МАП: 34 660 000 RUB (данный МАП является минимальным, при оптимизации арендаторов арендный поток можно значительно увеличить)

Общий ГАП: 415 920 000 RUB

Окупаемость: 9.8 лет

Доходность: 10.17%

карта

Расположение

Адрес: Москва, Снежная улица, 26

Округ: Северо-Восточный административный округ

Близость метро: Свиблово

Транспортная доступность: м. Свиблово

Окружение

Торговое окружение: Большое

Адрес:

Москва, Снежная улица, 26

Округ:

Северо-Восточный административный округ

Близость метро:

Свиблово

Транспортная доступность:

м. Свиблово

карта

Торговое окружение:

Большое

Общая площадь:

23401  м2

Этаж:

1

Всего этажей:

14

Тип:

Арендный бизнес,Многофункциональный,Торговая,ТЦ

Электрическая мощность:

1610 кВт

Высота потолков:

3.5 м.

Парковка:

250 м/м.

ФОРМА ВЛАДЕНИЯ:

ООО на усн.

Цена за все:

4 080 000 000 RUB

Общий МАП: 34 660 000

(данный МАП является минимальным, при оптимизации арендаторов арендный поток можно значительно увеличить)

Общий ГАП:

415 920 000

Окупаемость:

9.8 лет

Доходность:

10.17%

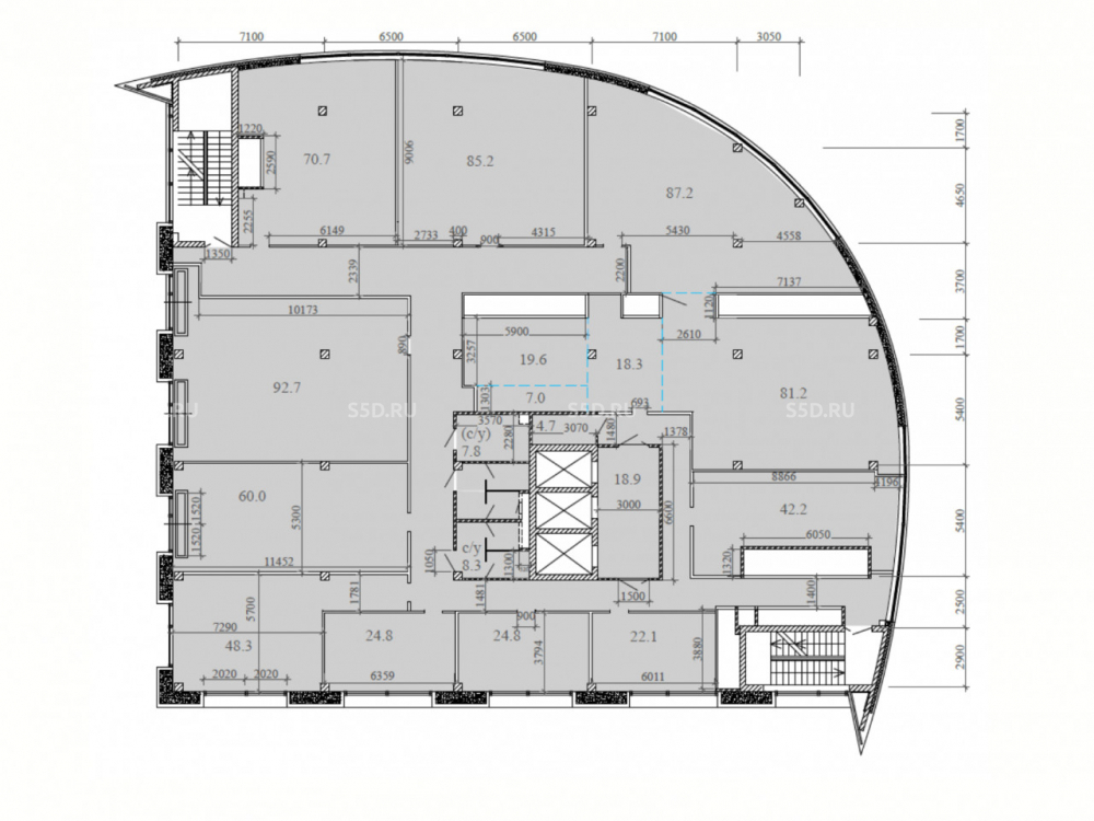
Планировка

Павел

Ваш брокер по работе с клиентами

Найдите лучшее место
для жизни, бизнеса, инвестиций

Оставьте свои контакты — с вами свяжется руководитель отдела для презентации нужного вам объекта

Похожие объекты