Id 156947

МО, Красногорск, Заводская ул., 27 / Продажа / ТЦ / 2422 кв.м.

адрес Красногорск, Заводская улица, 27

Арендный бизнес
Многофункциональный
С отдельным входом
Торговая
ТЦ

Окупаемость: 7.3 лет

Доходность:13.79%

390 000 000 RUB | за все

(за 1 м2 — 161 024 RUB)

площадь 2 422.0 м2

QR код Qr код

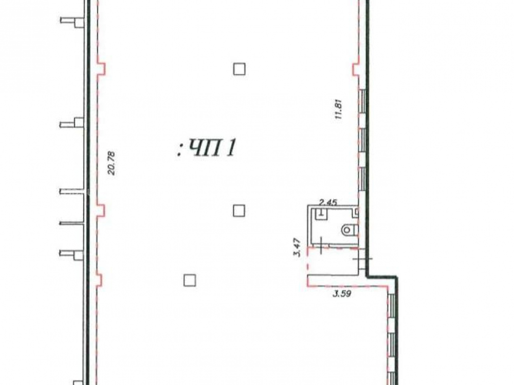
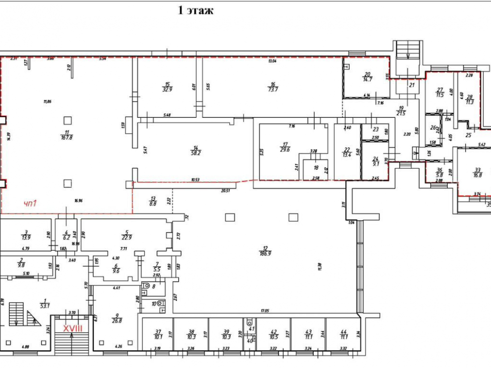
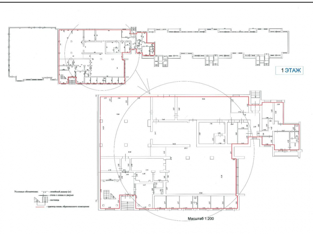
Предлагается в продажу отдельно-стоящее здание общей площадью 2422 кв.м., по адресу: МО, Красногорск, Заводская ул., 27.

Ближайшая станция МЦД - Павшино, 20 минут пешком. Крупный жилой массив, первая линия Заводской улицы. Активный автомобильный и пешеходный трафик. Единственный ТЦ с торговыми павильонами в районе такого масштаба. Остановка общественного транспорта прямо на входе. 1,2 км до выезда на Новорижское шоссе.

Технические характеристики:
Электрическая мощность - 180 кВт, высота потолков - 3 м. Земля в собственности, ВРИ: Торговое. Здание капитального строительства. Парковочные места.

Коммерческие условия:
Стоимость: 390 000 000 рублей.

Арендаторы: ВкусВилл, Верный, Фикспрайс, Останкино, Улыбка Радуги, Аптека, Беру Выходной и др.
МАП: 4 500 000 рублей.
ГАП: 54 000 000 рублей.
Окупаемость: 7.3 года.

Технические характеристики

Тип здания: Арендный бизнес,Многофункциональный,С отдельным входом,Торговая,ТЦ

Общая площадь: 2422  м2

Этаж: 1

Всего этажей: 2

Электрическая мощность: 180 кВт.

Высота потолков: 3 м.

Парковка: Есть своя.

Коммерческие условия

Цена за все: 390 000 000 RUB

ФОРМА ВЛАДЕНИЯ: ООО на УСН.

Общий МАП: 4 500 000 RUB (данный МАП является минимальным, при оптимизации арендаторов арендный поток можно значительно увеличить)

Общий ГАП: 54 000 000 RUB

Окупаемость: 7.3 лет

Доходность: 13.79%

карта

Расположение

Адрес: Красногорск, Заводская улица, 27

Округ: Северо-Западный административный округ

Близость метро: Красногорская,Павшино

Транспортная доступность: Ближайшая станция МЦД - Павшино, 20 минут пешком.

Окружение

Торговое окружение: Магнит, Пятерочка.

Адрес:

Красногорск, Заводская улица, 27

Округ:

Северо-Западный административный округ

Близость метро:

Красногорская,Павшино

Транспортная доступность:

Ближайшая станция МЦД - Павшино, 20 минут пешком.

карта

Торговое окружение:

Магнит, Пятерочка.

Общая площадь:

2422  м2

Этаж:

1

Всего этажей:

2

Тип:

Арендный бизнес,Многофункциональный,С отдельным входом,Торговая,ТЦ

Электрическая мощность:

180 кВт.

Высота потолков:

3 м.

Парковка:

Есть своя.

ФОРМА ВЛАДЕНИЯ:

ООО на УСН.

Цена за все:

390 000 000 RUB

Общий МАП: 4 500 000

(данный МАП является минимальным, при оптимизации арендаторов арендный поток можно значительно увеличить)

Общий ГАП:

54 000 000

Окупаемость:

7.3 лет

Доходность:

13.79%

Планировка

Павел

Ваш брокер по работе с клиентами

Найдите лучшее место
для жизни, бизнеса, инвестиций

Оставьте свои контакты — с вами свяжется руководитель отдела для презентации нужного вам объекта

Похожие объекты