Id 159163

МО, Г.О. ХИМКИ, ДЕРЕВНЯ ЮРЛОВО, СТРОЕНИЕ 64М - 395,2 / Продажа готового арендного бизнеса / Ozon, Веселая затея, Овощи-фрукты

адрес деревня Юрлово, 64М

Арендный бизнес
Особняк/здание
С отдельным входом
Общепит

Окупаемость: 9.3 лет

Доходность:10.81%

55 000 000 RUB | за все

(за 1 м2 — 139 241 RUB)

площадь 395.0 м2

QR код Qr код

Продается отдельно стоящее здание с арендатороми Ozon, Веселая затея, Овощи-фрукты.
Адрес: МО, Г.О. ХИМКИ, ДЕРЕВНЯ ЮРЛОВО, СТРОЕНИЕ 64М.
Объект располагается на оживленном Пятницком шоссе, большая плотность застройки, рядом строятся ЖК Пятницкие луга и ЖК Аристово-Митино. До МКАДа 13км, высокий транспортный поток 600 автомобилей/час. Высокая покупательская способность.

Технические характеристики:
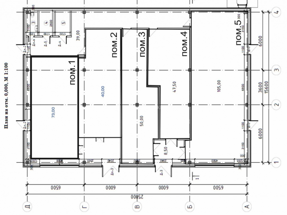
Помещение общей площадью – 395,2 кв. м., 1 этаж. 2 отдельных входа. Витринные окна. Высота потолков – по запросу. Коммуникации и канализация центральные. 150 кВт с возможностью увеличения.

Коммерческие условия:
Стоимость объекта: 55 000 000 рублей.
Стоимость за 1 кв. м.: 139 240 рублей.
МАП: 500 000 рублей
ГАП 6 000 000 рублей
Земля в аренде, использование: придорожный сервис
Озон подписан на 5 лет, остальные 3 года. Расторжение по всем за 60 дней с каждой стороны.

Технические характеристики

Тип здания: Арендный бизнес,Особняк/здание,С отдельным входом,Общепит

Общая площадь: 395  м2

Этаж: 1

Всего этажей: 1

Электрическая мощность: 150

Высота потолков: по запросу

Парковка: Имеется

Коммерческие условия

Цена за все: 55 000 000 RUB

ФОРМА ВЛАДЕНИЯ: собственность

Общий МАП: 500 000 RUB (данный МАП является минимальным, при оптимизации арендаторов арендный поток можно значительно увеличить)

Общий ГАП: 6 000 000 RUB

Окупаемость: 9.3 лет

Доходность: 10.81%

карта

Расположение

Адрес: деревня Юрлово, 64М

Округ: Северо-Западный административный округ

Близость метро: Пятницкое шоссе

Транспортная доступность: развитое

Окружение

Торговое окружение: -

Адрес:

деревня Юрлово, 64М

Округ:

Северо-Западный административный округ

Близость метро:

Пятницкое шоссе

Транспортная доступность:

развитое

карта

Торговое окружение:

-

Общая площадь:

395  м2

Этаж:

1

Всего этажей:

1

Тип:

Арендный бизнес,Особняк/здание,С отдельным входом,Общепит

Электрическая мощность:

150

Высота потолков:

по запросу

Парковка:

Имеется

ФОРМА ВЛАДЕНИЯ:

собственность

Цена за все:

55 000 000 RUB

Общий МАП: 500 000

(данный МАП является минимальным, при оптимизации арендаторов арендный поток можно значительно увеличить)

Общий ГАП:

6 000 000

Окупаемость:

9.3 лет

Доходность:

10.81%

Планировка

Егор Дмитриев

Ваш брокер по работе с клиентами

Найдите лучшее место
для жизни, бизнеса, инвестиций

Оставьте свои контакты — с вами свяжется руководитель отдела для презентации нужного вам объекта

Похожие объекты