Id 143580

Москва, Арбат д. 17 /307 м2/ Продажа АБ

адрес Москва, ЦАО, Арбат, д. 17

Арендный бизнес
С отдельным входом
Торговая

Окупаемость: 21.6 год

Доходность:4.63%

284 800 000 RUB | за все

(за 1 м2 — 927 687 RUB)

площадь 307.0 м2

QR код Qr код

Продажа нежилого помещения по адресу: ЦАО, ул. Арбат д. 17, площадью 307 м2. Первая линия домов, сверхинтенсивный пешеходный трафик, хороший рекламный потенциал, отличная визуализация объекта. Метро "Арбатская" 5 минут пешим шагом.

Технические характеристики:
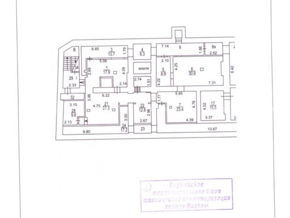
Шести этажный жилой дом 1915 года постройки, площадью 307 м2, из них 1 этаж 107 м2, подвал 207 м2. Отдельный вход с первой линии, витринные окна, зальная планировка, высота потолков 3 метра, городские коммуникации, эл мощность: 60 кВт.

Арендатор: музей темноты “Сенсориум”, ДДА на 5 лет до 2027 года (коммерческие условия предоставляются по запросу).

Коммерческие условия:
Стоимость объекта: 284 800 000 рублей.
Стоимость объекта за м2: 927 687 рублей.

Технические характеристики

Тип здания: Арендный бизнес,С отдельным входом,Торговая

Общая площадь: 307  м2

Этаж: 1

Всего этажей: 6

Электрическая мощность: 60

Высота потолков: 3

Парковка: Есть

Коммерческие условия

Цена за все: 284 800 000 RUB

ФОРМА ВЛАДЕНИЯ: Частная собственность

Общий МАП: 1 100 000 RUB (данный МАП является минимальным, при оптимизации арендаторов арендный поток можно значительно увеличить)

Общий ГАП: 13 200 000 RUB

Окупаемость: 21.6 год

Доходность: 4.63%

карта

Расположение

Адрес: Москва, ЦАО, Арбат, д. 17

Округ: Центральный административный округ

Близость метро: Арбатская (Филевская)

Транспортная доступность: Есть

Окружение

Торговое окружение: Есть

Адрес:

Москва, ЦАО, Арбат, д. 17

Округ:

Центральный административный округ

Близость метро:

Арбатская (Филевская)

Транспортная доступность:

Есть

карта

Торговое окружение:

Есть

Общая площадь:

307  м2

Этаж:

1

Всего этажей:

6

Тип:

Арендный бизнес,С отдельным входом,Торговая

Электрическая мощность:

60

Высота потолков:

3

Парковка:

Есть

ФОРМА ВЛАДЕНИЯ:

Частная собственность

Цена за все:

284 800 000 RUB

Общий МАП: 1 100 000

(данный МАП является минимальным, при оптимизации арендаторов арендный поток можно значительно увеличить)

Общий ГАП:

13 200 000

Окупаемость:

21.6 год

Доходность:

4.63%

Планировка

Мурат

Ваш брокер по работе с клиентами

Найдите лучшее место
для жизни, бизнеса, инвестиций

Оставьте свои контакты — с вами свяжется руководитель отдела для презентации нужного вам объекта

Похожие объекты