Id 148022

Москва, ул. 10-летия Октября, 5 / Продажа / Проект / 935 кв.м

адрес Москва, 10-летия Октября, 5

Особняк/здание
С отдельным входом
Торговая
Проект
Редевелопмент

620 000 000 RUB | за все

(за 1 м2 — 663 102 RUB)

площадь 935.0 м2

QR код Qr код

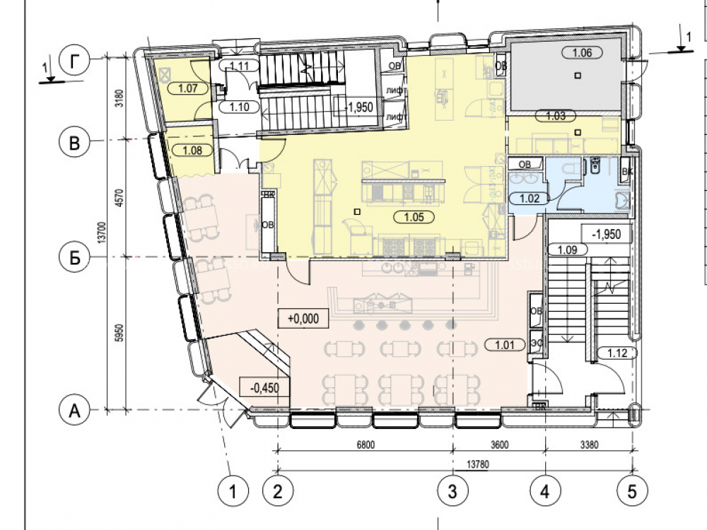
Предлагается к покупке отдельно стоящее здание по адресу: Москва, Хамовники, ЦАО, ул. 10-летия Октября, 5. Сейчас здание в один этаж 223 кв. м. Проект предполагает увеличение площади здания за счет постройки цокольного, подвального этажа и эксплуатируемой кровли, площадь расширится до 935 кв.м.

Ближайшая станция метро - Спортивная, 5 минут пешком.
Пeрвaя линия. Пересeчениe ул. 10-лeтия Oктября и Мaлой Пиpoговcкой ул. Рaйoн с высoкoй деловoй aктивностью. Густoнaселенный жилой маccив. Интенcивный aвтoмoбильный и пешexодный трафик. Сложившееся торговое окружение.

Технические характеристики:
1 этаж, подвал, цоколь и эксплуатируемая кровля. Объект с утвержденным проектом полной реконструкции на участке площадью 0,0294 га. Участок имеет прямоугольную конфигурацию. Срок аренды 49 лет. Выданы технические условия на электричество - 150 кВт, водоснабжение и газ. Здание под размещение предприятия общественного питания. На первом и цокольном этажах размещается обеденный зал и помещения кухни, в подвальном технологические и служебные помещения, винотека. Связь между этажами предусмотрена по внутреннем лестницам, с выходом непосредственно наружу. Выход на прилегающую террасу осуществляется с торца здания.

Коммерческие условия:
Стоимость проекта: 620 000 000 рублей.
Стоимость за кв.м: 663 102 рублей.
Продается Юр лицо со всей проектной документацией, разрешениями и ТП на новое здание. Готовый проект будет стоить дороже.
НДС на УСН

Технические характеристики

Тип здания: Особняк/здание,С отдельным входом,Торговая,Проект,Редевелопмент

Общая площадь: 935  м2

Этаж: 1

Всего этажей: 1

Электрическая мощность: -

Высота потолков: -

Парковка: -

Коммерческие условия

Цена за все: 620 000 000 RUB

ФОРМА ВЛАДЕНИЯ: -

карта

Расположение

Адрес: Москва, 10-летия Октября, 5

Округ: Центральный административный округ

Близость метро: Спортивная

Транспортная доступность: -

Окружение

Торговое окружение: -

Адрес:

Москва, 10-летия Октября, 5

Округ:

Центральный административный округ

Близость метро:

Спортивная

Транспортная доступность:

-

карта

Торговое окружение:

-

Общая площадь:

935  м2

Этаж:

1

Всего этажей:

1

Тип:

Особняк/здание,С отдельным входом,Торговая,Проект,Редевелопмент

Электрическая мощность:

-

Высота потолков:

-

Парковка:

-

ФОРМА ВЛАДЕНИЯ:

-

Цена за все:

620 000 000 RUB

Назарова Олеся

Ваш брокер по работе с клиентами

Найдите лучшее место
для жизни, бизнеса, инвестиций

Оставьте свои контакты — с вами свяжется руководитель отдела для презентации нужного вам объекта

Похожие объекты