Id 153366

Генерала Дорохова, вл1к3 - 82 м² / Продажа ПСН

адрес Москва, Генерала Дорохова, 1к3

С отдельным входом
Торговая
Новостройка

57 500 000 RUB | за все

(за 1 м2 — 701 220 RUB)

площадь 82.0 м2

QR код Qr код

Продажа торгового помещения свободного назначения в новом ЖК Will Towers. Адрес: ЗАО, проспект Генерала Дорохова, дом 1, корпус 3. Семейный жилой комплекс бизнес-класса Will Towers в Раменках. Новые высотные башни в пойме реки Раменки — одном из самых зеленых районов столицы. ЖК Will Towers расположен на пересечении ул. Мосфильмовская и Пр. Генерала Дорохова.
Will Towers имеет свой съезд на проспект Генерала Дорохова и улицу Мосфильмовская и удобно расположен относительно автомагистралей: 4 км до ТТК, 6 км до МКАДа, 9 км до Садового кольца. 20 минут до метро Минская. Жилой фонд в ЖК Will Towers составляет: 1908 квартир.

Технические характеристики:
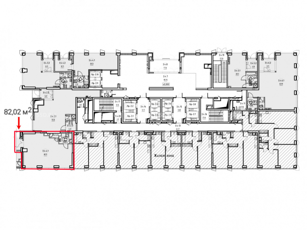
Первый этаж стилобатной части 56-этажного жилого дома. Общая площадь - 82,02 м². Состояние отделки: shell&core. Высота потолков - 4 м. Электрическая мощность 16,5 кВт. Витринное остекление. Открытая планировка, Отдельный вход.

Коммерческие условия:
Стоимость: 57 500 000 рублей
Цена за 1 м²: 701 049 рублей
Коммунальные услуги - по факту потребления.

Технические характеристики

Тип здания: С отдельным входом,Торговая,Новостройка

Общая площадь: 82  м2

Этаж: 1

Всего этажей: 56

Электрическая мощность: 16 кВт

Высота потолков: 6 метров

Парковка: подземная

Коммерческие условия

Цена за все: 57 500 000 RUB

ФОРМА ВЛАДЕНИЯ: физлицо

карта

Расположение

Адрес: Москва, Генерала Дорохова, 1к3

Округ: Западный административный округ

Близость метро: Аминьевская,Минская

Транспортная доступность: 12 минут на автобусе от м. Минская

Окружение

Торговое окружение: ВкусВилл, ВИНЛАБ, ПВЗ Ozon

Адрес:

Москва, Генерала Дорохова, 1к3

Округ:

Западный административный округ

Близость метро:

Аминьевская,Минская

Транспортная доступность:

12 минут на автобусе от м. Минская

карта

Торговое окружение:

ВкусВилл, ВИНЛАБ, ПВЗ Ozon

Общая площадь:

82  м2

Этаж:

1

Всего этажей:

56

Тип:

С отдельным входом,Торговая,Новостройка

Электрическая мощность:

16 кВт

Высота потолков:

6 метров

Парковка:

подземная

ФОРМА ВЛАДЕНИЯ:

физлицо

Цена за все:

57 500 000 RUB

Планировка

Дмитриев Александр

Ваш брокер по работе с клиентами

Найдите лучшее место
для жизни, бизнеса, инвестиций

Оставьте свои контакты — с вами свяжется руководитель отдела для презентации нужного вам объекта

Похожие объекты