Id 156919

Москва, НАО, ЖК Прокшино / 486.9м² / Продажа ПСН 31.1

адрес жилой комплекс Прокшино

С отдельным входом
Жилой комплекс (мфк)
Новостройка

177 465 312 RUB | за все

(за 1 м2 — 364 480 RUB)

площадь 486.9 м2

QR код Qr код

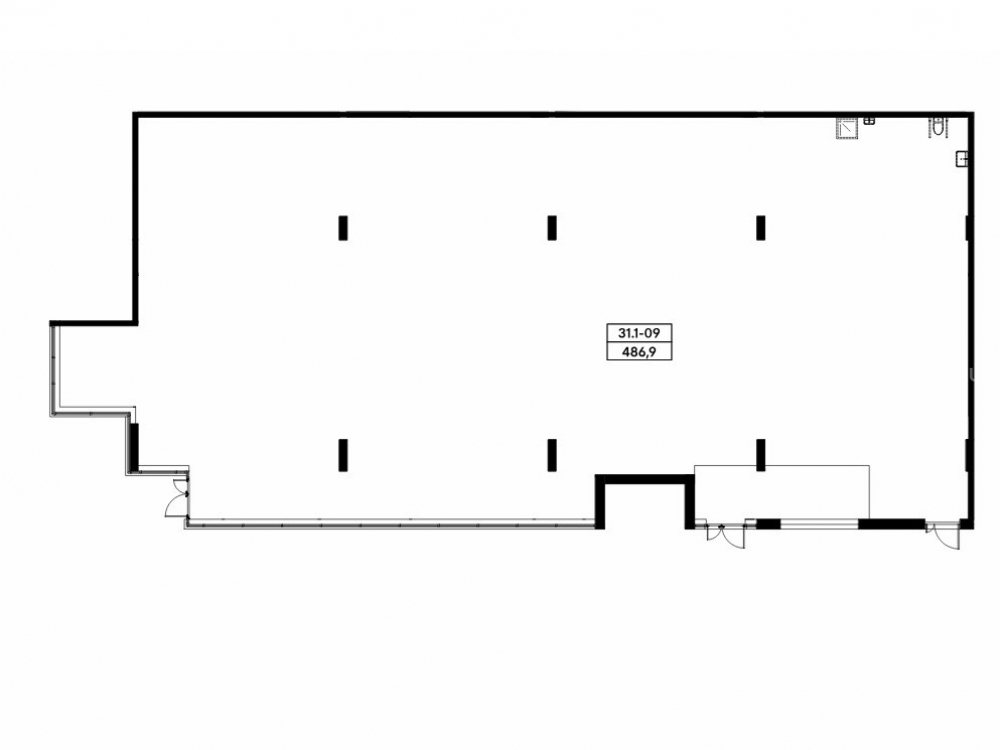
Продается торгового помещения в ЖК Прокшино, по адресу: Москва, НАО, ЖК Прокшино, площадью 486.9 м².
Ввод в эксплуатацию 4 квартал 2027 года.

Технические характеристики:
1 этаж 12-ти этажного жилого дома
3 отдельные входные группы
Площадью 486.9 м²
Высота потолков 5.04 м.
Электрическая мощность 147 кВт.
Отдельный вход
Витринное остекление
Место для вывески на фасаде
Вентиляция 600х300, 600х300, 400х200, Ø125
Решение под общепит
Нагрузка на пол 800 кг/м².

Коммерческие условия:
Стоимость объекта - 177 465 312 ₽
Стоимость объекта за м² - 364 480 ₽

Технические характеристики

Тип здания: С отдельным входом,Жилой комплекс (мфк),Новостройка

Общая площадь: 486.9  м2

Этаж: 1

Всего этажей: 12

Электрическая мощность: 147

Высота потолков: 5,06

Парковка: да

Коммерческие условия

Цена за все: 177 465 312 RUB

ФОРМА ВЛАДЕНИЯ: ДДУ

карта

Расположение

Адрес: жилой комплекс Прокшино

Близость метро: Прокшино

Транспортная доступность: развитая

Окружение

Торговое окружение: -

Адрес:

жилой комплекс Прокшино

Округ:

Близость метро:

Прокшино

Транспортная доступность:

развитая

карта

Торговое окружение:

-

Общая площадь:

486.9  м2

Этаж:

1

Всего этажей:

12

Тип:

С отдельным входом,Жилой комплекс (мфк),Новостройка

Электрическая мощность:

147

Высота потолков:

5,06

Парковка:

да

ФОРМА ВЛАДЕНИЯ:

ДДУ

Цена за все:

177 465 312 RUB

Планировка

Александр Невский

Ваш брокер по работе с клиентами

Найдите лучшее место
для жизни, бизнеса, инвестиций

Оставьте свои контакты — с вами свяжется руководитель отдела для презентации нужного вам объекта

Похожие объекты