Id 157079

Москва, САО, БЦ TowerС /623,7м2/ Продажа ГОТОВЫЙ АРЕНДНЫЙ БИЗНЕС представительский офис девелоперской компании

адрес Москва, Бумажный проезд, 19с4

Бизнес центр
Многофункциональный
С отдельным входом
Офис
Новостройка

561 330 000 RUB | за все

(за 1 м2 — 901 011 RUB)

площадь 623.0 м2

QR код Qr код

В продаже помещение в БЦ А класса, на 2м этаже Москва, премиального офисного квартала STONE Towers, расположенного в престижном Белорусском деловом районе. Локация предлагает резидентам комфортную среду для работы и жизни благодаря своей развитой инфраструктуре. Транспортная доступность, обеспечиваемая близостью к метро и ТТК, делает расположение STONE Савеловская особенно удобным. Все эти факторы создают благоприятную среду как для работы, так и для жизни. По расчетам трафика целевой аудитории: ежедневно будут посещать около 10 тыс. резидентов и гостей. Дополнительный трафик сформируют два жилых комплекса поблизости на 5 600 жителей.
Готовый арендный бизнес. Представительский офис Девелоперской компании. Крупный девелопер коммерческой и жилой недвижимости класса бизнес и премиум в Москве. С 2022 года уверенно удерживает лидерские позиции на офисном рынке столичного региона (рейтинг РБК). За 18 лет своей успешной деятельности
компания вывела на рынок 28 уникальных проектов, каждый из которых стал воплощением высочайших стандартов качества, инноваций и внимания к деталям.
Каждый квадратный метр создан с заботой о комфорте и функциональности, чтобы стать местом, где рождаются идеи, заключаются сделки и создаются истории успеха.
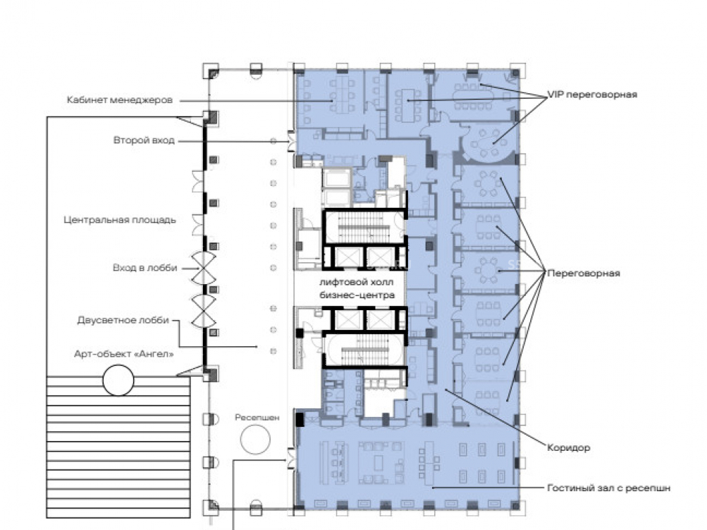
располагается на втором этаже башни С с прямым доступом из лобби. Правильная конфигурация, панорамное остекление и высокие потолки стали базой для проектирования представительского офиса: welcome-зона, гостиная с возможностью проведения мероприятий, 9 уникальных переговорных комнат, в том числе с функцией трансформации, зона сотрудников. Дизайн-проект выполнен лондонским бюро Kemelin Partners.
При отделке были использованы дорогостоящие материалы: натуральный камень, керамика, металл и натуральное дерево.

Технические характеристики:
Здание/корпус: Башня С
Этажи: 2
Sобщ: 623,7 м2
высота потолков 4.55
2 входа с лобби
Готовность: 2025
Свободный доступ 24/7
Витринное остекление
12 мин. метро "Белорусская"
4 мин. метро "Савеловская"

Коммерческие условия:
Стоимость: 561 330 000 рублей
Стоимость кв.м: 900 000 рублей
Условия договора:
Арендная ставка 1-го года: 70 000 руб./м², вкл. НДС
Эксплуатационные расходы: оплачиваются
арендатором отдельно
Индексация: 3% со 2-го года
Срок договора: 15 лет

блоки объекта

R1-102

268.9 м2

517 632 500 руб за все

Технические характеристики

Тип здания: Бизнес центр,Многофункциональный,С отдельным входом,Офис,Новостройка

Общая площадь: 268.9  м2

Этаж: 2

Всего этажей: 20

Электрическая мощность: 400вм2

Высота потолков: 4,55 м

Парковка: наземная/подземная

Коммерческие условия

Цена за все: 561 330 000 RUB

ФОРМА ВЛАДЕНИЯ: собственность

карта

Расположение

Адрес: Москва, Бумажный проезд, 19с4

Округ: Северный административный округ

Близость метро: Белорусская,Савеловская

Транспортная доступность: Пешая от метро

Окружение

Торговое окружение: БЦ

Адрес:

Москва, Бумажный проезд, 19с4

Округ:

Северный административный округ

Близость метро:

Белорусская,Савеловская

Транспортная доступность:

Пешая от метро

карта

Торговое окружение:

БЦ

Общая площадь:

268.9  м2

Этаж:

2

Всего этажей:

20

Тип:

Бизнес центр,Многофункциональный,С отдельным входом,Офис,Новостройка

Электрическая мощность:

400вм2

Высота потолков:

4,55 м

Парковка:

наземная/подземная

ФОРМА ВЛАДЕНИЯ:

собственность

Цена за все:

561 330 000 RUB

Планировка

Мусин Марат

Ваш брокер по работе с клиентами

Найдите лучшее место
для жизни, бизнеса, инвестиций

Оставьте свои контакты — с вами свяжется руководитель отдела для презентации нужного вам объекта

Похожие объекты