Id 157606

г. Москва, жилой комплекс Квартал Герцена, к.1/ 404.6 м²./ Продажа ПСН

адрес Москва, жилой комплекс Квартал Герцена

Многофункциональный
С отдельным входом
Торговая
Жилой комплекс (мфк)

159 500 000 RUB | за все

(за 1 м2 — 394 802 RUB)

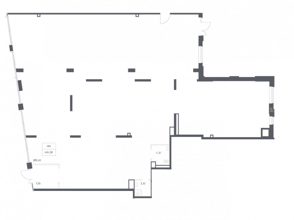
площадь 404.0 м2

QR код Qr код

Предлагается к продаже помещение свободного назначения по адресу г. Москва, жилой комплекс Квартал Герцена, к.1, .404.6 м² Данный жилой комплекс — это современные кирпично-монолитные дома переменной этажности высотой от 6 до 55 этажей с видовыми террасами и балконами. Жилой комплекс находится в Районе Восточное Бирюлево с развитой социальной инфраструктурой: рядом есть магазины, рестораны, аптеки, супермаркет «Лента», торговые центры «Брендсити», «Конструктор», «Vegas». Рядом с комплексом находятся Бирюлевский лесопарк, Герценский парк и пруд с благоустроенной пляжной зоной. Расстояние от жилого комплекса до МКАД менее 1 километра. В 10 минутах пути на автомобиле распложена ж/д станция «Бирюлево пассажирская». До международного аэропорта «Домодедово» — 30 минут езды, до ближайшего метро «Царицыно» — 15 минут. В 2025-2026 году в пешей доступности от комплекса планируется открытие новой станции метро «Лебедянская».

Торговое окружение:
Гипер Лента, Дикси.


Технические характеристики:
Площадь 404.6 м²., отдельный вход, первый этаж, электрическая мощность 72.83 кВт., высота потолков 4,5 м. Возможна установка вывески. Парковка на улице.

Коммерческие условия:
Стоимость за все - 159 500 000 руб.
Стоимость за 1 кв.м. - 394 236 руб.
Срок сдачи 4 кв. 2027.

Технические характеристики

Тип здания: Многофункциональный,С отдельным входом,Торговая,Жилой комплекс (мфк)

Общая площадь: 404  м2

Этаж: 1

Всего этажей: 16

Электрическая мощность: -

Высота потолков: -

Парковка: -

Коммерческие условия

Цена за все: 159 500 000 RUB

ФОРМА ВЛАДЕНИЯ: -

карта

Расположение

Адрес: Москва, жилой комплекс Квартал Герцена

Округ: Южный административный округ

Близость метро: Царицыно

Транспортная доступность: -

Окружение

Торговое окружение: -

Адрес:

Москва, жилой комплекс Квартал Герцена

Округ:

Южный административный округ

Близость метро:

Царицыно

Транспортная доступность:

-

карта

Торговое окружение:

-

Общая площадь:

404  м2

Этаж:

1

Всего этажей:

16

Тип:

Многофункциональный,С отдельным входом,Торговая,Жилой комплекс (мфк)

Электрическая мощность:

-

Высота потолков:

-

Парковка:

-

ФОРМА ВЛАДЕНИЯ:

-

Цена за все:

159 500 000 RUB

Планировка

Шаклеина Юлия

Ваш брокер по работе с клиентами

Найдите лучшее место
для жизни, бизнеса, инвестиций

Оставьте свои контакты — с вами свяжется руководитель отдела для презентации нужного вам объекта

Похожие объекты