Id 158080

ул. Василисы Кожиной, 29 - 1523 кв. м. - Аренда / ПСН /ТЦ / Автосалон / Автосервис / Склад / Производство

адрес Москва, улица Василисы Кожиной, 29

Многофункциональный
Особняк/здание
С отдельным входом
Торговая
Лофт
Офис
Общепит
ТЦ
Медицина
Автобизнес
Склад

1 500 000 000 RUB | за все

(за 1 м2 — 984 898 RUB)

площадь 1 523.0 м2

QR код Qr код

Продается трехуровневое здание ангарного типа по адресу: г. Москва, ЗАО, район Филевский парк, ул. Василисы Кожиной, 29. Объект расположен в развитом и престижном районе с богатой социальной, транспортной и рекреационной инфраструктурой. В пешей доступности находятся станции «Филёвский парк» (11 минут) и «Минская» (16 минут). Остановки общественного транспорта находятся в 2-3 минутах ходьбы от здания. Локация характеризуется интенсивным автомобильным потоком по ул. Василисы Кожиной, являющейся одной из ключевых транспортных артерий района, а также постоянным пешеходным трафиком от жилых кварталов и станций метро.

Технические характеристики:
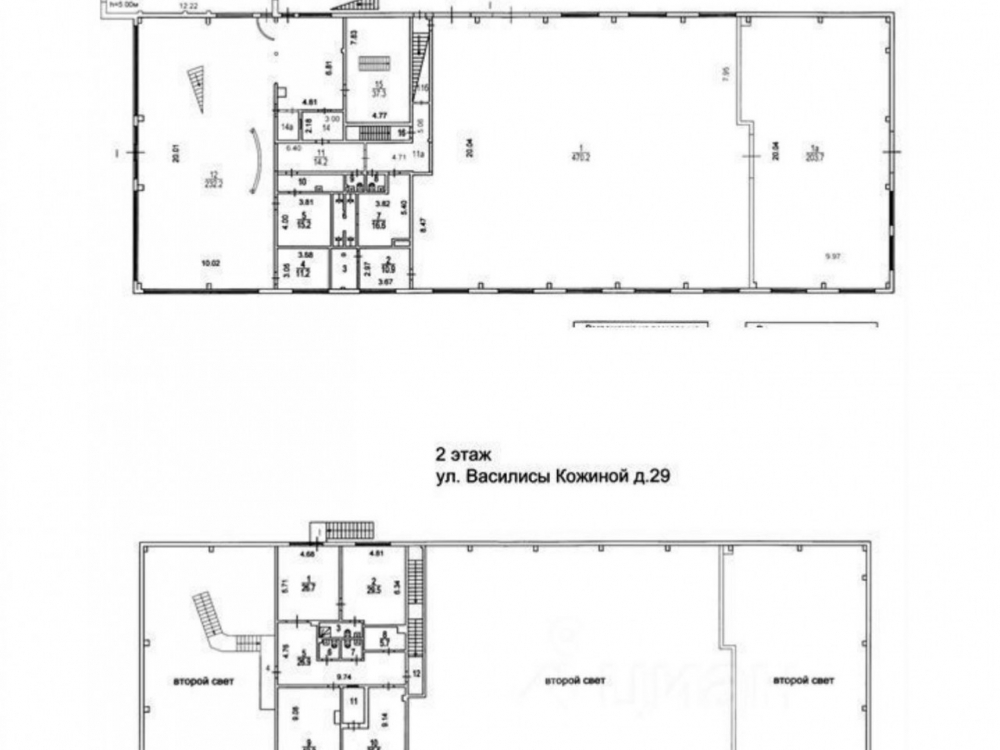
Общая площадь: 1 523 кв. м. Трехуровневое здание ангарного типа с индивидуальной планировкой. Панорамное остекление.
- Цокольный этаж: Прямой въезд с улицы. Размещены сервисная зона, мойка, шиномонтажа или оборудованный склад.
- Первый этаж: Сквозной въезд-выезд с улицы. Свободное пространство для шоу-рума, зоны приема клиентов, основного производства или торговли.
- Второй этаж: Готовая офисная зона на 4 кабинета, рассчитанная на 15 рабочих мест. Высота потолков на коньке: 7 м.
Коммуникации: Подведено 150 кВт электрической мощности, есть возможность увеличения. Все необходимые мокрые точки и инженерные системы. Индивидуальное газовое отопление. ГВС вода от котла. ХВС и канализация городские. Мощная приточно-вытяжная система.
Территория: Асфальтированный, огороженный участок 0,5 га (50 соток) в аренде у города 2074 г. Идеально для парковки клиентов и сотрудников, организации логистики или хранения техники. Территория находится под охраной, имеется КПП со шлагбаумом и два контролируемых въезда-выезда.

Возможное назначения:
Автосервис, СТО, шоу-рум, автосалон, фитнес-центр, спортивный зал, производство, склад, торговая площадка, учебный центр, выставочное пространство и многое другое.

Коммерческие условия:
Цена объекта: 1 500 000 000 руб. НДС.
Цена за 1 кв.м.: 984 898 руб. с НДС.

Технические характеристики

Тип здания: Многофункциональный,Особняк/здание,С отдельным входом,Торговая,Лофт,Офис,Общепит,ТЦ,Медицина,Автобизнес,Склад

Общая площадь: 1523  м2

Этаж: 1

Всего этажей: 3

Электрическая мощность: 150 кВт

Высота потолков: 7 м

Парковка: Собственный асфальтированный, огороженный и разлинованный участок 0,5 га (50 соток)

Коммерческие условия

Цена за все: 1 500 000 000 RUB

ФОРМА ВЛАДЕНИЯ: по запросу

карта

Расположение

Адрес: Москва, улица Василисы Кожиной, 29

Округ: Западный административный округ

Близость метро: Минская,Филевский парк

Транспортная доступность: в пешей доступности

Окружение

Торговое окружение: развитое торговое окружение

Адрес:

Москва, улица Василисы Кожиной, 29

Округ:

Западный административный округ

Близость метро:

Минская,Филевский парк

Транспортная доступность:

в пешей доступности

карта

Торговое окружение:

развитое торговое окружение

Общая площадь:

1523  м2

Этаж:

1

Всего этажей:

3

Тип:

Многофункциональный,Особняк/здание,С отдельным входом,Торговая,Лофт,Офис,Общепит,ТЦ,Медицина,Автобизнес,Склад

Электрическая мощность:

150 кВт

Высота потолков:

7 м

Парковка:

Собственный асфальтированный, огороженный и разлинованный участок 0,5 га (50 соток)

ФОРМА ВЛАДЕНИЯ:

по запросу

Цена за все:

1 500 000 000 RUB

Планировка

Петр Соловьев

Ваш брокер по работе с клиентами

Найдите лучшее место
для жизни, бизнеса, инвестиций

Оставьте свои контакты — с вами свяжется руководитель отдела для презентации нужного вам объекта

Похожие объекты