Id 158511

г Москва, ул. Летниковская, д 8с1 / Продажа / ОСЗ / 1872 кв.м.

адрес Москва, Летниковская улица, 8с1

Особняк/здание
С отдельным входом
Торговая

1 000 000 000 RUB | за все

(за 1 м2 — 534 188 RUB)

площадь 1 872.0 м2

QR код Qr код

Продаётся отдельно стоящее здание, расположенное по адресу: г Москва, ул. Летниковская, д 8с1. Особняк располагается в престижном районе г. Москвы – Замоскворечье, Павелецкий район в Центральном административном округе, всего в 2,5 км от Кремля.
Первая линия дома. Представительский формат. Красивый исторический фасад.

Транспортная доступность:
-2,5 км до Кремля или ТТК
-500 метров до Садового кольца
-5 минут пешком до ст.м Павелецкая
-500 метров от «Павелецкого» железнодорожного вокзала
-Прямое сообщение «Аэроэкспресс» до аэропорта Домодедово
-Непосредственная близость до ключевых магистралей города: Дербеневская наб., Ленинский пр-т, пр-т Андропова, ул. Люсиновская.

Технические характеристики:
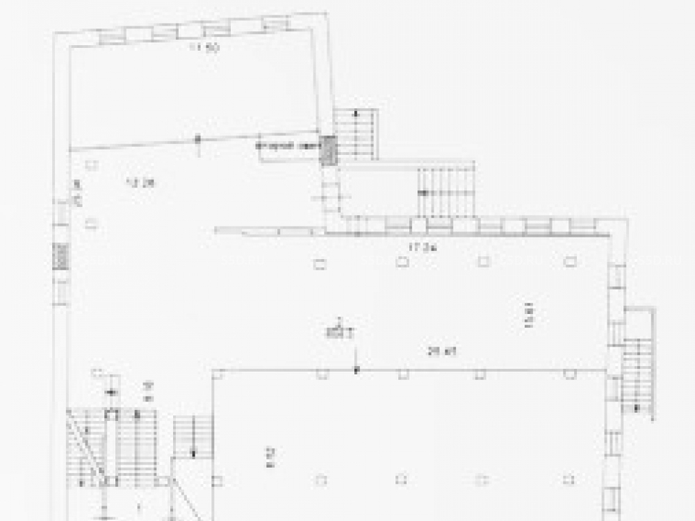
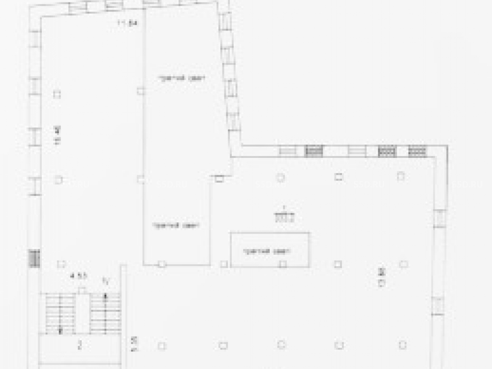
Общая площадь - 1872, 3 этажа и полноценный мансардный этаж, без подвала. Электрическая мощность 264 кВт. Два отдельных входа. Лифтовые шахты. Высокие потолки от 3,0-3,37 м, большие окна. Собственный паркинг на 10 машиномест. 2 входные группы. Земельный участок 795 м2 в аренде. Назначение земли 4.1.

Коммерческие условия:
Стоимость - 1 000 000 000 рублей, включая НДС
Стоимость за м2 - 534 188 рублей, включая НДС

Технические характеристики

Тип здания: Особняк/здание,С отдельным входом,Торговая

Общая площадь: 1872  м2

Этаж: 1

Всего этажей: 3

Электрическая мощность: 264

Высота потолков: -

Парковка: Собственная на 10 п/м

Коммерческие условия

Цена за все: 1 000 000 000 RUB

ФОРМА ВЛАДЕНИЯ: Собственность

карта

Расположение

Адрес: Москва, Летниковская улица, 8с1

Округ: Центральный административный округ

Близость метро: Добрынинская,Крестьянская Застава,Павелецкая,Пролетарская,Серпуховская,Таганская

Транспортная доступность: 5 мин Павелецкая

Окружение

Торговое окружение: -

Адрес:

Москва, Летниковская улица, 8с1

Округ:

Центральный административный округ

Близость метро:

Добрынинская,Крестьянская Застава,Павелецкая,Пролетарская,Серпуховская,Таганская

Транспортная доступность:

5 мин Павелецкая

карта

Торговое окружение:

-

Общая площадь:

1872  м2

Этаж:

1

Всего этажей:

3

Тип:

Особняк/здание,С отдельным входом,Торговая

Электрическая мощность:

264

Высота потолков:

-

Парковка:

Собственная на 10 п/м

ФОРМА ВЛАДЕНИЯ:

Собственность

Цена за все:

1 000 000 000 RUB

Планировка

Егор Дмитриев

Ваш брокер по работе с клиентами

Найдите лучшее место
для жизни, бизнеса, инвестиций

Оставьте свои контакты — с вами свяжется руководитель отдела для презентации нужного вам объекта

Похожие объекты