Id 160034

Бульвар Эйнштейна 3- 49.5кв.м / Продажа готового арендного бизнеса с Аптекой

адрес посёлок городского типа Новоивановское, бульвар Эйнштейна, 3

Арендный бизнес

Окупаемость: 12.8 лет

Доходность:7.79%

23 000 000 RUB | за все

(за 1 м2 — 464 646 RUB)

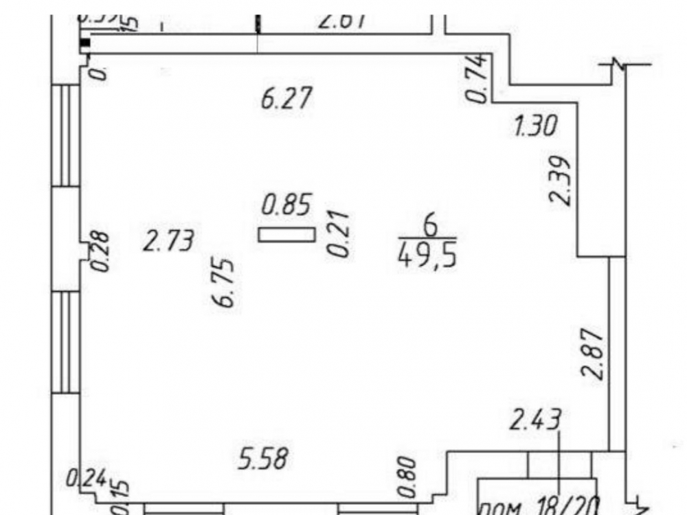
площадь 49.5 м2

QR код Qr код

Продается нежилое помещение свободного назначения в ЖК "Инновация" по адресу: Одинцовский городской округ, ул. бульвар Эйнштейна 3, площадью 49.5 кв.м. Помещение расположено в центре жилого массива ,население составляет более 20 тыс. жителей. ЖК полностью заселён.

Торговое окружение: Пятерочка, Ароматный мир,4Hands,Яндекс маркет и др.

Технические характеристики:
Первый этаж 20 - ти этажного жилого дома, общей площадью 49.5 м2. Угловое помещение. Высота потолков 3.3 м. Окна по фасаду.
Электрическая мощность 12 кВт . Парковка перед объектом, размещение вывески на фасаде. Высокий рекламный потенциал.

Коммерческие условия:
Арендатор: Аптека Здравсити.
МАП 150 000 руб.+5% НДС,ГАП 1 800 000руб.+5%НДС.
Окупаемость 12.7 лет.
Стоимость помещения - 23 000 000 рублей
Стоимость за 1 кв.м. - 464 646 рублей.

Технические характеристики

Тип здания: Арендный бизнес

Общая площадь: 49.5  м2

Этаж: 1

Всего этажей: 20

Электрическая мощность: 12 кВт

Высота потолков: 3.3 м

Парковка: У помещения

Коммерческие условия

Цена за все: 23 000 000 RUB

ФОРМА ВЛАДЕНИЯ: Собственность

Общий МАП: 150 000 RUB (данный МАП является минимальным, при оптимизации арендаторов арендный поток можно значительно увеличить)

Общий ГАП: 1 800 000 RUB

Окупаемость: 12.8 лет

Доходность: 7.79%

карта

Расположение

Адрес: посёлок городского типа Новоивановское, бульвар Эйнштейна, 3

Округ: Западный административный округ

Близость метро: Говорово,Озёрная,Сколково

Транспортная доступность: Сколково

Окружение

Торговое окружение: Пятерочка, Ароматный мир,4Hands,Яндекс маркет и др.

Адрес:

посёлок городского типа Новоивановское, бульвар Эйнштейна, 3

Округ:

Западный административный округ

Близость метро:

Говорово,Озёрная,Сколково

Транспортная доступность:

Сколково

карта

Торговое окружение:

Пятерочка, Ароматный мир,4Hands,Яндекс маркет и др.

Общая площадь:

49.5  м2

Этаж:

1

Всего этажей:

20

Тип:

Арендный бизнес

Электрическая мощность:

12 кВт

Высота потолков:

3.3 м

Парковка:

У помещения

ФОРМА ВЛАДЕНИЯ:

Собственность

Цена за все:

23 000 000 RUB

Общий МАП: 150 000

(данный МАП является минимальным, при оптимизации арендаторов арендный поток можно значительно увеличить)

Общий ГАП:

1 800 000

Окупаемость:

12.8 лет

Доходность:

7.79%

Планировка

Гринь Алексей

Ваш брокер по работе с клиентами

Найдите лучшее место
для жизни, бизнеса, инвестиций

Оставьте свои контакты — с вами свяжется руководитель отдела для презентации нужного вам объекта

Похожие объекты