Id 147338

Москва, САО, Хорошевское шоссе, 38 А / Продажа Премиального БЦ/ Здание с отделкой, меблировкой и оснащением.

адрес Москва, улица Авиаконструктора Микояна, 1

Бизнес центр
Многофункциональный
С отдельным входом
Торговая
ТЦ

5 279 160 000 RUB | за все

(за 1 м2 — 536 500 RUB)

площадь 9 840.0 м2

QR код Qr код

Предлагается к продаже Премиальный Бизнес Центр, находящийся по адресу: Москва, Хорошевское шоссе, 38А, общей площадью 9840 м2.
Obsidian - Первый на рынке девелоперский проект бизнес-центра под управлением профессионального оператора сервисных офисов.
Ввод в эксплуатацию – октябрь 2025 г. Есть возможность купить здание как с отделкой, так и без отделки.

Продажа с отделкой, меблировкой и оснащением : от 536 000₽/м2
Продажа без отделки: 486 000₽/м2

Отличная локация.

Выгодное расположение БЦ "Хорошевское шоссе, 38А", обуславливается непосредственной близостью к метро: м. "ЦСКА" - 10 минут пешком; м. "Полежаевская", "Беговая" - 8 минут автобусом. Офисный центр находится в непосредственной близости от таких крупных транспортных магистралей, как Звенигородское шоссе, Третье Транспортное Кольцо, Ленинградский проспект.

Технические характеристики:

Общая площадь - 9840 м2 (5 наземных этажей) и -1 этаж.
Общее количество рабочих мест: 1 450 .
Функциональное зонирование и эксклюзивная отделка.

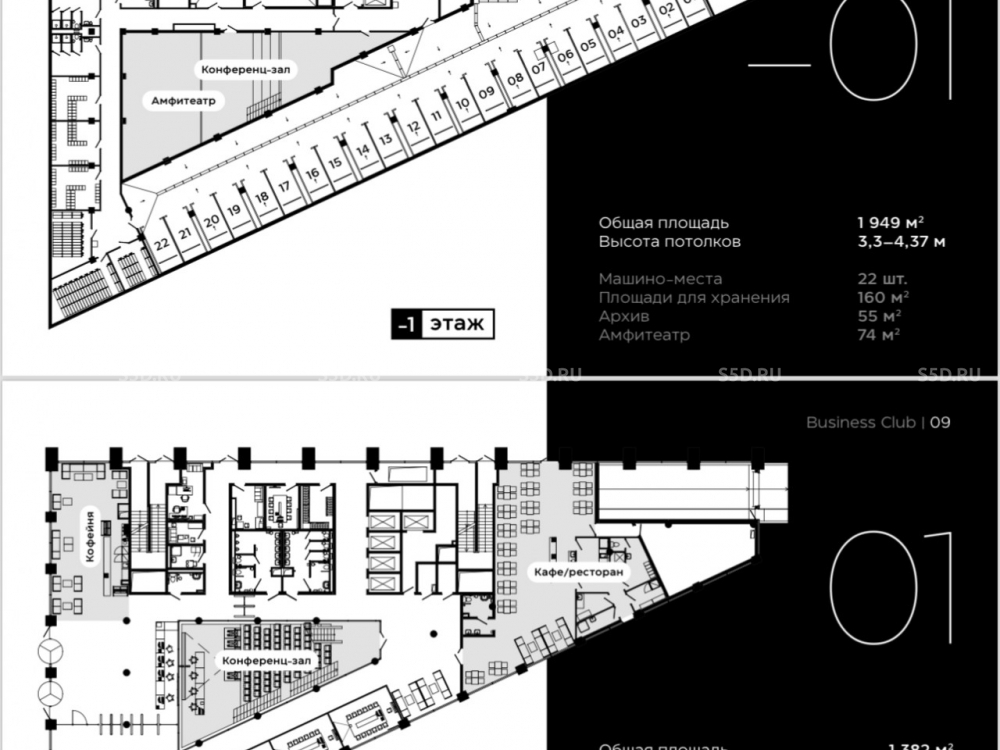
-1 этаж: Общая площадь - 1 949 м2, Высота потолков - 3.3-4.37м. Паркинг подземный - 22 м/мест. Площади для хранения, архив, амфитеатр.
1 этаж: Общая площадь - 1 382 м2, Высота потолков - 7,6 м. Лобби - 469м2, Переговорные / 10 комнат, Кофейня, Кафе/ресторан, Конференц-зал - 163м2.
2-4 этаж: Общая площадь - 1 688 м2, Высота потолков - 3,5 м. Рабочие места - 383 шт, Переговорные / 5 комнат.
5 этаж: Общая площадь - 1 478 м2, Высота потолков - 3,5 м. Рабочие места - 301 шт, Переговорные / 4 комнат, Терраса - 216 м2.


Согласно международной классификации бизнес-центр относится к классу А. Витринное остекление. Есть лифты. Наземный паркинг.
Пространство для переговоров и встреч, конференц-зал.

Коммерческие условия:
Стоимость продажи здания с отделкой и меблировкой: от 5 279 160 000 рублей за все.
Стоимость за м2: от т 536 500 ₽/м2 .

В рамках сервисного обслуживания предоставляются различные услуги, набор которых можно комбинировать:
- Эксплуатация инженерных систем и поддерживающий ремонт в офисе
- Административная поддержка: служба ресепшен, приём гостей и корреспонденции
- Профессиональная комплексная и поддерживающая уборка, расходные материалы
- Управление МФУ и офисным оборудованием
- F&B (food and beverage) обеспечение: чай, кофе, вода, посуда
- Безлимитный бесшовный Wi-Fi и высокоскоростной интернет (не менее 2-х каналов)
- Решения по цифровизации: Helpdesk, 07 диспетчеризация, система бронирования

Технические характеристики

Тип здания: Бизнес центр,Многофункциональный,С отдельным входом,Торговая,ТЦ

Общая площадь: 9840  м2

Этаж: 1

Всего этажей: 5

Электрическая мощность: -

Высота потолков: -

Парковка: -

Коммерческие условия

Цена за все: 5 279 160 000 RUB

ФОРМА ВЛАДЕНИЯ: -

карта

Расположение

Адрес: Москва, улица Авиаконструктора Микояна, 1

Округ: Северный административный округ

Близость метро: Беговая,Полежаевская,ЦСКА

Транспортная доступность: -

Окружение

Торговое окружение: -

Адрес:

Москва, улица Авиаконструктора Микояна, 1

Округ:

Северный административный округ

Близость метро:

Беговая,Полежаевская,ЦСКА

Транспортная доступность:

-

карта

Торговое окружение:

-

Общая площадь:

9840  м2

Этаж:

1

Всего этажей:

5

Тип:

Бизнес центр,Многофункциональный,С отдельным входом,Торговая,ТЦ

Электрическая мощность:

-

Высота потолков:

-

Парковка:

-

ФОРМА ВЛАДЕНИЯ:

-

Цена за все:

5 279 160 000 RUB

Планировка

Гервас Ксения

Ваш брокер по работе с клиентами

Найдите лучшее место
для жизни, бизнеса, инвестиций

Оставьте свои контакты — с вами свяжется руководитель отдела для презентации нужного вам объекта

Похожие объекты