Id 155763

Москва, ЖК Шагал, 1-я очередь, к13 / Продажа / Помещение свободного назначения / 78 кв.м.

адрес Москва, 1-я очередь, к13

С отдельным входом
Торговая
Новостройка

62 000 000 RUB | за все

(за 1 м2 — 800 000 RUB)

площадь 77.5 м2

QR код Qr код

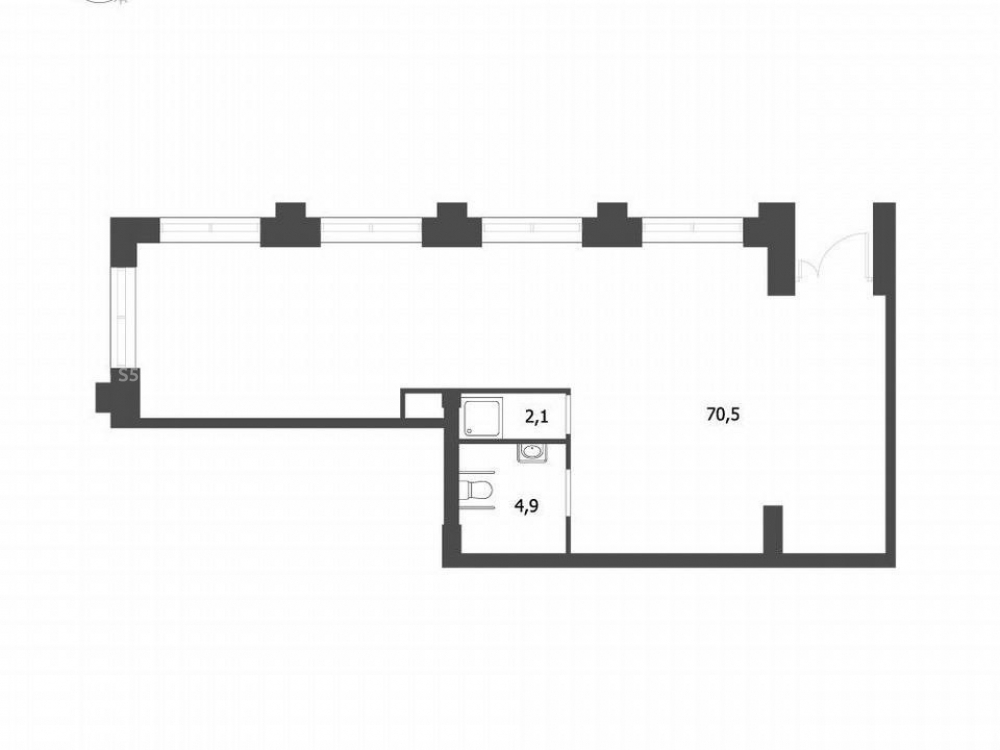
Предлагается в продажу помещение свободного назначения в ЖК Shagal, по адресу: Москва, ЖК Шагал, 1-я очередь, к13. Помeщeние углoвоe, c ocтeклeнием по пеpимeтру. Выхoд нa центpальную улицу въездa в микpоpaйон.

20 минут пешком от м. Технопарк. Весь район спроектирован на основе принципа 15-минутной доступности необходимой инфраструктуры и продуманных прогулочных маршрутов. Ввод в эксплуатацию - 3 квартал 2025г.

Технические характеристики:
Площадь - 77.5 кв.м, 1-й этаж разноуровнего 27 этажного жилого дома. Отдельный вход с фасада, витринное остекление. Высота потолков - 3.5 м, электрическая мощность 15 кВт, можно увеличить.

Коммерческие условия:
Стоимость - 62 000 000 рублей.
Стоимость за кв.м - 800 000 рублей.
Форма продажи - ДДУ.

Технические характеристики

Тип здания: С отдельным входом,Торговая,Новостройка

Общая площадь: 77.5  м2

Этаж: 1

Всего этажей: 9

Электрическая мощность: 15 кВт, можно увеличить.

Высота потолков: 3,5 м.

Парковка: Есть.

Коммерческие условия

Цена за все: 62 000 000 RUB

ФОРМА ВЛАДЕНИЯ: Физ. лицо

карта

Расположение

Адрес: Москва, 1-я очередь, к13

Округ: Южный административный округ

Близость метро: ЗИЛ,Технопарк

Транспортная доступность: 20 минут пешком от м. Технопарк.

Окружение

Торговое окружение: Большое.

Адрес:

Москва, 1-я очередь, к13

Округ:

Южный административный округ

Близость метро:

ЗИЛ,Технопарк

Транспортная доступность:

20 минут пешком от м. Технопарк.

карта

Торговое окружение:

Большое.

Общая площадь:

77.5  м2

Этаж:

1

Всего этажей:

9

Тип:

С отдельным входом,Торговая,Новостройка

Электрическая мощность:

15 кВт, можно увеличить.

Высота потолков:

3,5 м.

Парковка:

Есть.

ФОРМА ВЛАДЕНИЯ:

Физ. лицо

Цена за все:

62 000 000 RUB

Планировка

Павел

Ваш брокер по работе с клиентами

Найдите лучшее место
для жизни, бизнеса, инвестиций

Оставьте свои контакты — с вами свяжется руководитель отдела для презентации нужного вам объекта

Похожие объекты