Id 158782

ул. Щепкина, 31 - 454 кв. м. - Продажа / Торговое помещение / Пятёрочка

адрес Москва, улица Щепкина, 31

Арендный бизнес
С отдельным входом
Торговая

Окупаемость: 15.2 лет

Доходность:6.59%

272 000 000 RUB | за все

(за 1 м2 — 599 119 RUB)

площадь 454.0 м2

QR код Qr код

Продажа торгового помещения Street Retail с арендатором «Пятерочка».
Адрес: г. Москва, ЦАО, Мещанский район, ул. Щепкина, 31 (первая линия). Близость Садового кольца. Пешая доступность от метро: «Проспект Мира» — 6 минут, «Сухаревская» — 11 минут. Остановки общественного транспорта в шаговой доступности. Район с высокой плотностью населения, развитой деловой и социальной инфраструктурой, высоким пешеходным и автомобильным трафиком. В окружении: офисные центры, жилые комплексы, медицинские учреждения, МХТ им. Чехова.

Технические характеристики:
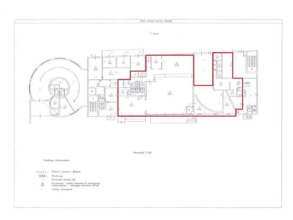
Общая площадь: 454 кв. м. 1-й этаж. Отдельный вход. Витринные окна. Высота потолков: по запросу. Коммуникации: Выделенная электрическая мощность 82 кВт, центральное отопление. Возможность подъезда и разгрузки грузового транспорта, уличная парковка.

Коммерческие условия:
Стоимость объекта: 272 000 000 рублей.
Стоимость за 1 кв. м.: 599 119 рублей.
Арендатор: супермаркет «Пятёрочка» (работает более 3 лет).
Долгосрочный договор аренды до 2034 года.
МАП: 1 500 000 рублей ( в среднем) = 7.2% от РТО, но не менее 1 080 000 рублей.
ГАП: 18 000 000 рублей.
Продавец: Юридическое лицо, с НДС.

Технические характеристики

Тип здания: Арендный бизнес,С отдельным входом,Торговая

Общая площадь: 454  м2

Этаж: 1

Всего этажей: 4

Электрическая мощность: 82 кВт

Высота потолков: высокие

Парковка: наземная

Коммерческие условия

Цена за все: 272 000 000 RUB

ФОРМА ВЛАДЕНИЯ: собственность

Окупаемость: 15.2 лет

Доходность: 6.59%

карта

Расположение

Адрес: Москва, улица Щепкина, 31

Округ: Центральный административный округ

Близость метро: Проспект Мира,Сухаревская

Транспортная доступность: в пешей доступности

Окружение

Торговое окружение: развитое торговое окружение

Адрес:

Москва, улица Щепкина, 31

Округ:

Центральный административный округ

Близость метро:

Проспект Мира,Сухаревская

Транспортная доступность:

в пешей доступности

карта

Торговое окружение:

развитое торговое окружение

Общая площадь:

454  м2

Этаж:

1

Всего этажей:

4

Тип:

Арендный бизнес,С отдельным входом,Торговая

Электрическая мощность:

82 кВт

Высота потолков:

высокие

Парковка:

наземная

ФОРМА ВЛАДЕНИЯ:

собственность

Цена за все:

272 000 000 RUB

Окупаемость:

15.2 лет

Доходность:

6.59%

Планировка

Степанов Анатолий

Ваш брокер по работе с клиентами

Найдите лучшее место
для жизни, бизнеса, инвестиций

Оставьте свои контакты — с вами свяжется руководитель отдела для презентации нужного вам объекта

Похожие объекты