Id 160878

Москва, ЮАО, Андропова пр-т, 11 стр 1 / 1021 кв.м. / Аренда помещения свободного назначения

адрес Москва, проспект Андропова, 11с1

Торговая
Новостройка

2 750 000 RUB | в месяц

(за 1 м2 — 2 693 RUB)

площадь 1 021.0 м2

QR код Qr код

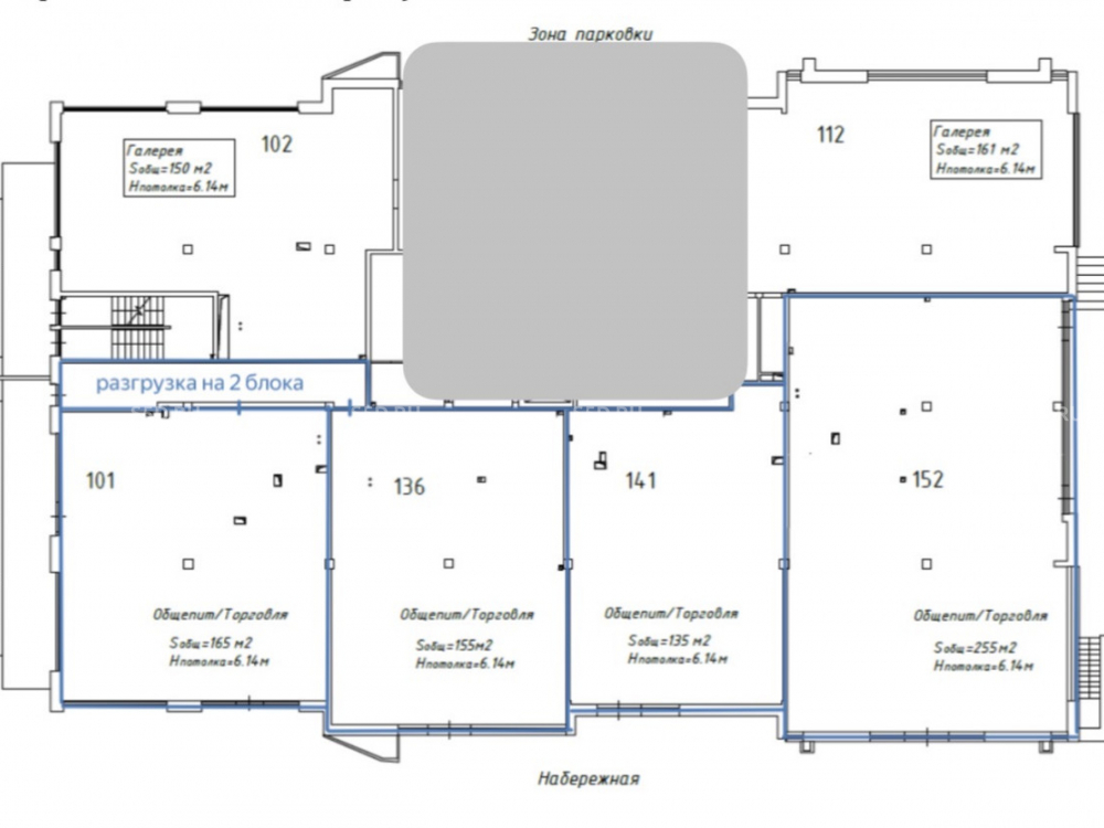
Предлагается в аренду помещение с превосходными видовыми характеристиками в районе высокотехнологичной зоны бизнес и жилой застройки по адресу Москва, пр. Андропова 11 стр 1, расположенное на 1-й линии Москвы-реки, на курортной территории «Острова мечты». В пешей доступности густозаселенный полуостров Зил, бизнес центры, гостиницы и ТЦ. Удобная пешая и автомобильная доступность.

Технические характеристики:
помещение на 1-м этаже бизнес центра площадью 1 021 м2, высота потолков 6 м, электричество 300 кВт, технологии под общепит, без отделки

Коммерческие характеристики:
Стоимость аренды в месяц - 2 750 000 рублей
Стоимость аренды за метр в месяц - 2 693 рублей

Технические характеристики

Тип здания: Торговая,Новостройка

Общая площадь: 1021  м2

Этаж: 1

Всего этажей: 3

Электрическая мощность: 250

Высота потолков: 6

Парковка: наземная и подземная

Коммерческие условия

Цена в месяц: 2 750 000 RUB

ФОРМА ВЛАДЕНИЯ: в собственности

карта

Расположение

Адрес: Москва, проспект Андропова, 11с1

Округ: Южный административный округ

Близость метро: Автозаводская (Замоскворецкая)

Транспортная доступность: в 5 мин пешком от Острова Мечты

Окружение

Торговое окружение: ТЦ, БЦ

Адрес:

Москва, проспект Андропова, 11с1

Округ:

Южный административный округ

Близость метро:

Автозаводская (Замоскворецкая)

Транспортная доступность:

в 5 мин пешком от Острова Мечты

карта

Торговое окружение:

ТЦ, БЦ

Общая площадь:

1021  м2

Этаж:

1

Всего этажей:

3

Тип:

Торговая,Новостройка

Электрическая мощность:

250

Высота потолков:

6

Парковка:

наземная и подземная

ФОРМА ВЛАДЕНИЯ:

в собственности

Цена в месяц:

2 750 000 RUB

Планировка

Субботина Анна

Ваш брокер по работе с клиентами

Найдите лучшее место
для жизни, бизнеса, инвестиций

Оставьте свои контакты — с вами свяжется руководитель отдела для презентации нужного вам объекта

Похожие объекты