Id 145734

ЖК Римский, Римский проезд 13 – 144.4 м² | Продажа Арендного бизнеса: ВИНЛАБ и Tabakless

адрес МО, Ленинский г.о., пос. Развилка, Римский проезд, 13

Арендный бизнес
С отдельным входом
Торговая
Жилой комплекс (мфк)
Новостройка

Окупаемость: 10.1 года

Доходность:9.92%

39 600 000 RUB | за все

(за 1 м2 — 274 238 RUB)

площадь 144.4 м2

QR код Qr код

Продажа готового арендного бизнеса новом ЖК комфорт-класса "Римский" с арендаторами ВИНЛАБ и Tabakless. Первая линия. Помещение при входе на центральную площадь ЖК. Ближайшая станция метро Домодедовская – 15 мин транспортом, до МКАД 10 мин. транспортом. Хорошая визуализация объекта. Дом сдан и заселяется. ЖК "Римский" занимает территорию 25 Га состоит из 5-ти монолитных корпусов на более чем 16 000 жителей.

Технические характеристики:
Первый этаж 16-тиэтажного жилого дома. Отдельный входа с фасада. Витринное остекление. Вывеска на фасаде. Открытая зальная планировка, высота потолков 4 метра, выделенная эл. мощность – 30 кВт (возможно увеличение). Мокрая точка. Парковка. Дом сдан. Застройщик – ФСК.

Коммерческие условия:
Общая площадь: 144.4 м²
Стоимость: 39 600 000 рублей,
Стоимость за 1 кв метр: 274 238 рублей.
УСН. ДКПН. Собственник – физ. лицо.

Экономические показатели:
МАП 330 000 рублей, ГАП 3 960 000 рублей
Окупаемость 10 лет, доходность 10 %.
Арендаторы:
Винлаб: S = 137,4 м², безусловная индексация 3 %, МАП 280 000, ДДА на 10 лет.
Tabakless: S = 7 м², безусловная индексация 5 %, МАП 50 000, ДДА на 10 лет.

Технические характеристики

Тип здания: Арендный бизнес,С отдельным входом,Торговая,Жилой комплекс (мфк),Новостройка

Общая площадь: 144.4  м2

Этаж: 1

Всего этажей: 17

Электрическая мощность: 40

Высота потолков: 3

Парковка: есть

Коммерческие условия

Цена за все: 39 600 000 RUB

ФОРМА ВЛАДЕНИЯ: собственность

Общий МАП: 330 000 RUB (данный МАП является минимальным, при оптимизации арендаторов арендный поток можно значительно увеличить)

Общий ГАП: 3 960 000 RUB

Окупаемость: 10.1 года

Доходность: 9.92%

карта

Расположение

Адрес: МО, Ленинский г.о., пос. Развилка, Римский проезд, 13

Близость метро: Авиамоторная

Транспортная доступность: м. Авиамоторная

Окружение

Торговое окружение: Магазины

Адрес:

МО, Ленинский г.о., пос. Развилка, Римский проезд, 13

Округ:

Близость метро:

Авиамоторная

Транспортная доступность:

м. Авиамоторная

карта

Торговое окружение:

Магазины

Общая площадь:

144.4  м2

Этаж:

1

Всего этажей:

17

Тип:

Арендный бизнес,С отдельным входом,Торговая,Жилой комплекс (мфк),Новостройка

Электрическая мощность:

40

Высота потолков:

3

Парковка:

есть

ФОРМА ВЛАДЕНИЯ:

собственность

Цена за все:

39 600 000 RUB

Общий МАП: 330 000

(данный МАП является минимальным, при оптимизации арендаторов арендный поток можно значительно увеличить)

Общий ГАП:

3 960 000

Окупаемость:

10.1 года

Доходность:

9.92%

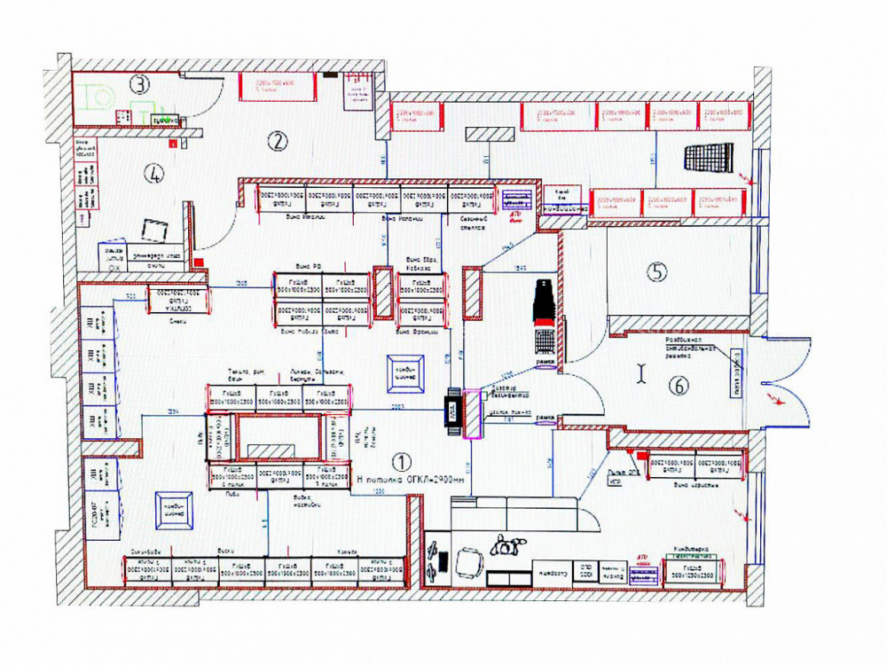
Планировка

Артур

Ваш брокер по работе с клиентами

Найдите лучшее место
для жизни, бизнеса, инвестиций

Оставьте свои контакты — с вами свяжется руководитель отдела для презентации нужного вам объекта

Похожие объекты