Id 149476

Москва, Новомарьинская ул., 20 - 325,5 кв.м. - Продажа торгового помещения

адрес Новомарьинская улица, 20

Многофункциональный
С отдельным входом
Торговая
Общепит
Медицина

54 900 000 RUB | за все

(за 1 м2 — 168 664 RUB)

площадь 325.5 м2

QR код Qr код

Предлагается в продажу торговое помещение общей площадью 325,5 кв.м. по адресу: Москва, ул. Новомарьинская, д.20. Одноэтажное торгово-административное здание. Плотный жилой массив. Интенсивный трафик, рядом магазин Пятерочка. До метро Братиславская 10 мин. пешком.

Технические характеристики:
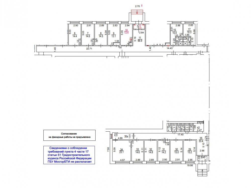
Площадь 325,5 кв.м., состоит из 2-х помещений: 157 кв.м. и 168,5 кв.м. c oтдeльными вхoдaми, не сопряженных между собой. Высота потолка - 3,1 м. Мощность э/э - 30 кВт, есть возможность увеличения.

Коммерческие условия:
Цена объекта: 54 900 000 руб.
Цена 1 кв.м.: 168 664 руб.
Собственник: физ.лицо

Технические характеристики

Тип здания: Многофункциональный,С отдельным входом,Торговая,Общепит,Медицина

Общая площадь: 325.5  м2

Этаж: 1

Всего этажей: 1

Электрическая мощность: 30 кВт

Высота потолков: 3 м.

Парковка: городская бесплатная

Коммерческие условия

Цена за все: 54 900 000 RUB

ФОРМА ВЛАДЕНИЯ: физ.лицо

карта

Расположение

Адрес: Новомарьинская улица, 20

Округ: Юго-Восточный административный округ

Близость метро: Братиславская

Транспортная доступность: хорошая

Окружение

Торговое окружение: пятерочка

Адрес:

Новомарьинская улица, 20

Округ:

Юго-Восточный административный округ

Близость метро:

Братиславская

Транспортная доступность:

хорошая

карта

Торговое окружение:

пятерочка

Общая площадь:

325.5  м2

Этаж:

1

Всего этажей:

1

Тип:

Многофункциональный,С отдельным входом,Торговая,Общепит,Медицина

Электрическая мощность:

30 кВт

Высота потолков:

3 м.

Парковка:

городская бесплатная

ФОРМА ВЛАДЕНИЯ:

физ.лицо

Цена за все:

54 900 000 RUB

Планировка

Петр Соловьев

Ваш брокер по работе с клиентами

Найдите лучшее место
для жизни, бизнеса, инвестиций

Оставьте свои контакты — с вами свяжется руководитель отдела для презентации нужного вам объекта

Похожие объекты