Id 149956

Новослободская 19с1 - 380,5 кв. м. / Продажа торгового помещения с арендатором

адрес Москва, Новослободская 19с1

Арендный бизнес
Торговая
Общепит

Окупаемость: 10.6 года

Доходность:9.45%

145 000 000 RUB | за все

(за 1 м2 — 381 078 RUB)

площадь 380.5 м2

QR код Qr код

Предлагается в продажу помещение свободного назначения с арендатором расположенное по адресу ул. Новослободская, д 19 стр. 1.
Здание находится в Тверском районе Центрального административного округа города Москвы. Рядом пролегают улицы Лесная, Новослободская, Селезневская, что обеспечивает удобный транспортный доступ. В пешей доступности станции метро "Менделеевская" и "Новослободская". В окружении плотная жилая застройка, административные здания, БЦ и Вузы. Первая фасадная линия Новослободской улицы.
Сверхинтенсивные пешеходные потоки ~ 4 000 чел/час.

Технические характеристики:
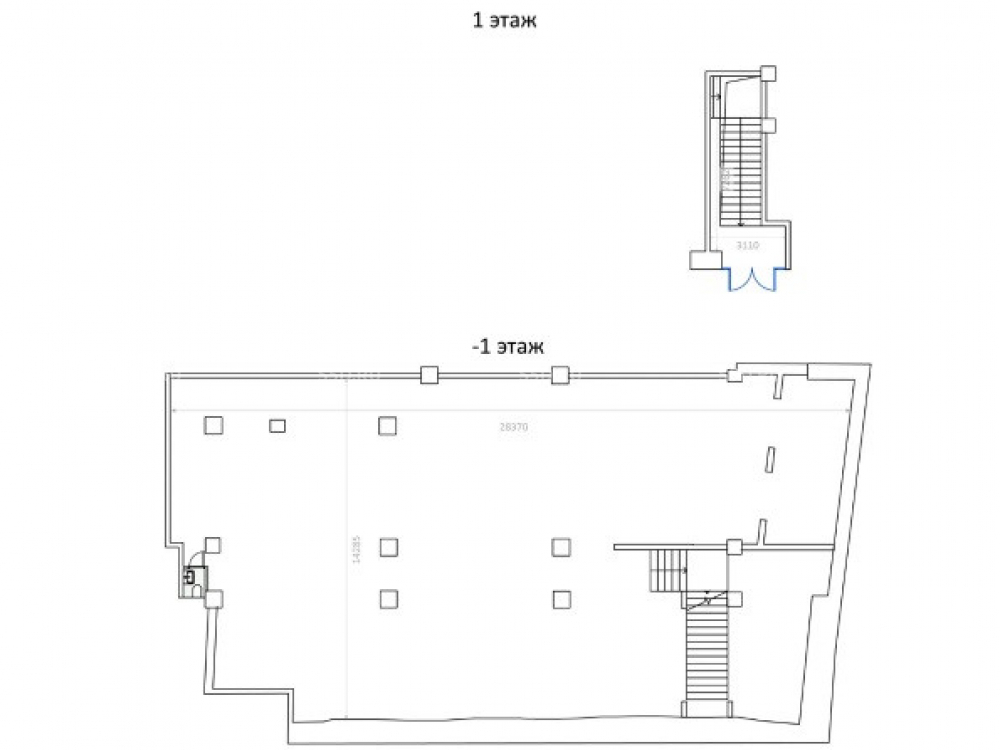
Отдельный вход с 1 этажа
Общая площадь помещения 380,5 кв.м. (цокольный этаж). Высота потолков - 3,5 метра. Отдельный вход с фасада. Электрическая мощность 100 кВт. Витринное остекление. Все центральные коммуникации.

Коммерческие условия:
~ арендатор кальянная DUKH; ДА от 2024г сроком на 10 лет
~ МАП 1 150 000 рублей / ГАП 13 800 000 рублей
~ Стоимость продажи 145 000 000 рублей
~ Стоимость за м.кв. - 381 077.53 рублей
~ Продажа по ДКП от ООО на НДС

Технические характеристики

Тип здания: Арендный бизнес,Торговая,Общепит

Общая площадь: 380.5  м2

Этаж: -1

Всего этажей: 3

Электрическая мощность: 15

Высота потолков: 4

Парковка: на улице

Коммерческие условия

Цена за все: 145 000 000 RUB

ФОРМА ВЛАДЕНИЯ: ООО на НДС

Общий МАП: 1 150 000 RUB (данный МАП является минимальным, при оптимизации арендаторов арендный поток можно значительно увеличить)

Общий ГАП: 13 800 000 RUB

Окупаемость: 10.6 года

Доходность: 9.45%

карта

Расположение

Адрес: Москва, Новослободская 19с1

Округ: Центральный административный округ

Близость метро: Менделеевская,Новослободская

Транспортная доступность: метро

Окружение

Торговое окружение: развитое

Адрес:

Москва, Новослободская 19с1

Округ:

Центральный административный округ

Близость метро:

Менделеевская,Новослободская

Транспортная доступность:

метро

карта

Торговое окружение:

развитое

Общая площадь:

380.5  м2

Этаж:

-1

Всего этажей:

3

Тип:

Арендный бизнес,Торговая,Общепит

Электрическая мощность:

15

Высота потолков:

4

Парковка:

на улице

ФОРМА ВЛАДЕНИЯ:

ООО на НДС

Цена за все:

145 000 000 RUB

Общий МАП: 1 150 000

(данный МАП является минимальным, при оптимизации арендаторов арендный поток можно значительно увеличить)

Общий ГАП:

13 800 000

Окупаемость:

10.6 года

Доходность:

9.45%

Планировка

Гуда Алексей

Ваш брокер по работе с клиентами

Найдите лучшее место
для жизни, бизнеса, инвестиций

Оставьте свои контакты — с вами свяжется руководитель отдела для презентации нужного вам объекта

Похожие объекты