Id 155988

г Москва, Шмитовский проезд, вл 40 / Продажа / Торговая галлерея / 2495 кв.м.

адрес Москва, жилой комплекс Шелепиха

Многофункциональный
С отдельным входом
Торговая
Общепит

1 660 000 000 RUB | за все

(за 1 м2 — 665 331 RUB)

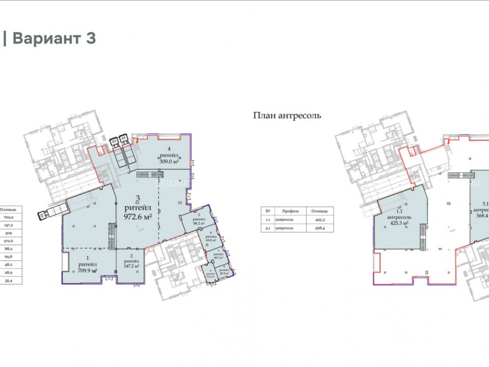
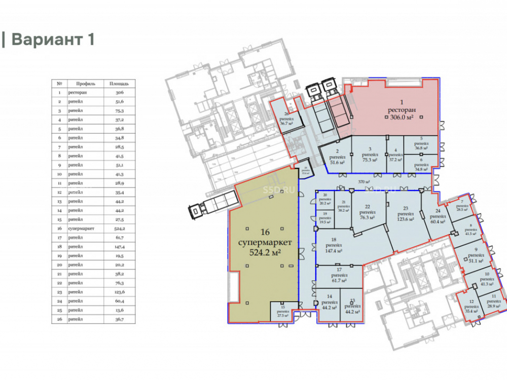
площадь 2 495.0 м2

QR код Qr код

Предлагается в продажу торговая галерея в ЦАО на выходе из метро "Шелепиха" по адресу: г Москва, Шмитовский проезд, вл 40, площадью 2495 кв.м.

Галерея располагается в ЖК бизнес-класса "Шелепиха" на первом этаже. Сверхинтенсивный пешеходный и транспортный поток. В радиусе 500 м более 8000 квартир. ⁠В 300 м находится новый БЦ «ICITY», общ. пл. - 230 000 м2. ⁠В прямой видимости: ст. метро «Шелепиха» (более 20 тыс чел/сутки, вход/выход). Ввод в эксплуатацию: 2 кв 2026 г.

Технические характеристики:
Высота потолков - 7.25 м. Эл. мощность - 660 кВт, можно увеличить. Есть технологическая вытяжка, 3 зоны погрузки/разгрузки.

Коммерческие условия:
Стоимость: 1 660 000 000 рублей.
Стоимость за кв.м: 665 330 рублей.
Продажа по ДДУ.

Технические характеристики

Тип здания: Многофункциональный,С отдельным входом,Торговая,Общепит

Общая площадь: 2495  м2

Этаж: 1

Всего этажей: 30

Электрическая мощность: 660 кВт, можно увеличить.

Высота потолков: 7.25 м.

Парковка: Есть.

Коммерческие условия

Цена за все: 1 660 000 000 RUB

ФОРМА ВЛАДЕНИЯ: Физ. лицо.

карта

Расположение

Адрес: Москва, жилой комплекс Шелепиха

Округ: Западный административный округ

Близость метро: Деловой центр,Тестовская,Шелепиха

Транспортная доступность: на выходе из метро

Окружение

Торговое окружение: Большое.

Адрес:

Москва, жилой комплекс Шелепиха

Округ:

Западный административный округ

Близость метро:

Деловой центр,Тестовская,Шелепиха

Транспортная доступность:

на выходе из метро

карта

Торговое окружение:

Большое.

Общая площадь:

2495  м2

Этаж:

1

Всего этажей:

30

Тип:

Многофункциональный,С отдельным входом,Торговая,Общепит

Электрическая мощность:

660 кВт, можно увеличить.

Высота потолков:

7.25 м.

Парковка:

Есть.

ФОРМА ВЛАДЕНИЯ:

Физ. лицо.

Цена за все:

1 660 000 000 RUB

Павел

Ваш брокер по работе с клиентами

Найдите лучшее место
для жизни, бизнеса, инвестиций

Оставьте свои контакты — с вами свяжется руководитель отдела для презентации нужного вам объекта

Похожие объекты