Id 18054

ул. Неглинная 14с1А - 156.8 кв.м. / Продажа Готового Арендного Бизнеса

адрес Москва, ул. Неглинная, д. 14/1А

Арендный бизнес
С отдельным входом
Торговая
Общепит

Окупаемость: 17.6 лет

Доходность:5.69%

313 600 000 RUB | за все

(за 1 м2 — 2 000 000 RUB)

площадь 156.8 м2

QR код Qr код

Продаётся Готовый Арендный Бизнес в самом сердце Москвы - на ул. Неглинная. Помещение расположено на первой линии. Прогулочная пешеходная зона столицы. Туристический маршрут от Цветного бульвара к Кузнецкому Мосту, ЦУМу, Большому Театру. Супер интенсивный пешеходный трафик рядом с помещением в течение всего дня. Ближайшие станции метро Кузнецкий мост и Трубная, находятся в 7 минутах пешком. Адрес: г. Москва, ЦАО, ул. Неглинная, 14/1А.

Технические характеристики:
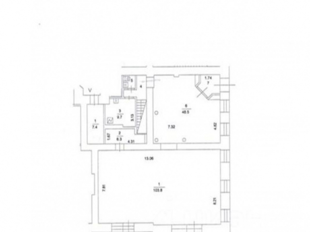
Первый этаж 3-х этажного нежилого дома, площадью 156.8 м2. Дом не является памятником архитектуры. Два входа, один с Неглинной улицы, второй с Сандуновского переулка. Зальная планировка. Высота потолков 4.5 м. Электрическая мощность 100 кВт. Помещение оборудовано вытяжкой для общепита. Городская парковка вдоль здания.

Арендатор: Ресторан, МАП 1 488 375 рублей, ГАП 17 860 500, ДДА от 01.01.2024 на 5 лет, безусловная индексация 5%.

Стоимость объекта: 313 600 000 рублей;
Стоимость объекта за м2: 2 000 000 рублей;
Форма собственности физ. лицо (УСН).

Технические характеристики

Тип здания: Арендный бизнес,С отдельным входом,Торговая,Общепит

Общая площадь: 156.8  м2

Этаж: 1

Всего этажей: 3

Электрическая мощность: 100 кВт

Высота потолков: 4.5 м

Парковка: вдоль здания

Коммерческие условия

Цена за все: 313 600 000 RUB

ФОРМА ВЛАДЕНИЯ: Частная

Общий МАП: 1 488 375 RUB (данный МАП является минимальным, при оптимизации арендаторов арендный поток можно значительно увеличить)

Общий ГАП: 17 860 500 RUB

Окупаемость: 17.6 лет

Доходность: 5.69%

карта

Расположение

Адрес: Москва, ул. Неглинная, д. 14/1А

Округ: Центральный административный округ

Близость метро: Кузнецкий мост,Лубянка,Трубная

Транспортная доступность: Ближайшие станции метро Кузнецкий мост и Трубная, находятся в 7 минутах пешком.

Окружение

Торговое окружение: -

Адрес:

Москва, ул. Неглинная, д. 14/1А

Округ:

Центральный административный округ

Близость метро:

Кузнецкий мост,Лубянка,Трубная

Транспортная доступность:

Ближайшие станции метро Кузнецкий мост и Трубная, находятся в 7 минутах пешком.

карта

Торговое окружение:

-

Общая площадь:

156.8  м2

Этаж:

1

Всего этажей:

3

Тип:

Арендный бизнес,С отдельным входом,Торговая,Общепит

Электрическая мощность:

100 кВт

Высота потолков:

4.5 м

Парковка:

вдоль здания

ФОРМА ВЛАДЕНИЯ:

Частная

Цена за все:

313 600 000 RUB

Общий МАП: 1 488 375

(данный МАП является минимальным, при оптимизации арендаторов арендный поток можно значительно увеличить)

Общий ГАП:

17 860 500

Окупаемость:

17.6 лет

Доходность:

5.69%

Планировка

Ирина Головина

Ваш брокер по работе с клиентами

Найдите лучшее место
для жизни, бизнеса, инвестиций

Оставьте свои контакты — с вами свяжется руководитель отдела для презентации нужного вам объекта

Похожие объекты