Id 19276

Генерала Белова, 23А - 592.6 кв.м / Продажа арендного бизнеса / Ресторан

адрес Генерала Белова, 23А

Арендный бизнес
Особняк/здание
С отдельным входом

Окупаемость: 8.4 года

Доходность:11.88%

150 000 000 RUB | за все

(за 1 м2 — 253 122 RUB)

площадь 592.6 м2

QR код Qr код

Продажа отдельно стоящего здания на первой линии с сетевым арендатором, по адресу: г. Москва, ЮАО, Генерала Белова, 23А. Густонаселенный жилой район, до метро Домодедовская 10 минут пешком. Рядом остановки общественного транспорта, пешеходные переходы. Удобная транспортная доступность: Каширское шоссе, МКАД.

Сложившееся торговое окружение: Магнит, торговые центры, салоны красоты и др.

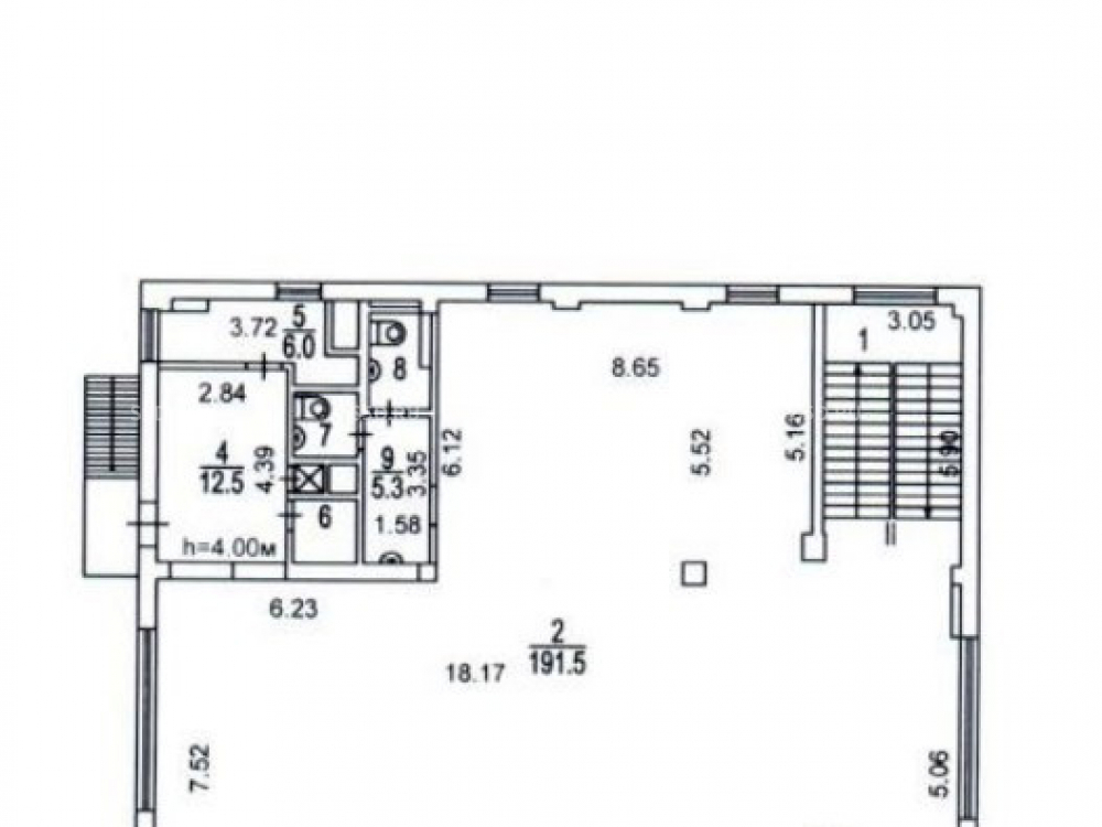
Технические характеристики: Общая площадь - 592,6 кв.м ( 1-й этаж – 315,3 кв.м., 2-й этаж 246,7 кв.м., технический этаж – 30,6 кв.м. + эксплуатируемая кровля). Витринное остекление, зальная планировка. Несколько отдельных входов, зона погрузки/разгрузки. Высота потолков - 4 м, электрическая мощность - 110 кВт. Установлена технологическая вытяжка, центральные коммуникации. Стихийная парковка по фасаду. Отличная визуализация объекта, высокий рекламный потенциал.

Арендатор - Ресторан - Караоке "Manana", МАП: 1 500 000 рублей.
Индексация 5%
Долгосрочный договор аренды.

Коммерческие условия:
Стоимость объекта: 150 000 000 рублей.
Стоимость объекта за м2: 253 121 рубль.

Технические характеристики

Тип здания: Арендный бизнес,Особняк/здание,С отдельным входом

Общая площадь: 592.6  м2

Этаж: 1

Всего этажей: 3

Электрическая мощность: 110

Высота потолков: 4

Парковка: есть

Коммерческие условия

Цена за все: 150 000 000 RUB

ФОРМА ВЛАДЕНИЯ: Частная собственность

Общий МАП: 1 500 000 RUB (данный МАП является минимальным, при оптимизации арендаторов арендный поток можно значительно увеличить)

Общий ГАП: 18 000 000 RUB

Окупаемость: 8.4 года

Доходность: 11.88%

карта

Расположение

Адрес: Генерала Белова, 23А

Округ: Южный административный округ

Близость метро: Домодедовская

Транспортная доступность: Есть

Окружение

Торговое окружение: Есть

Адрес:

Генерала Белова, 23А

Округ:

Южный административный округ

Близость метро:

Домодедовская

Транспортная доступность:

Есть

карта

Торговое окружение:

Есть

Общая площадь:

592.6  м2

Этаж:

1

Всего этажей:

3

Тип:

Арендный бизнес,Особняк/здание,С отдельным входом

Электрическая мощность:

110

Высота потолков:

4

Парковка:

есть

ФОРМА ВЛАДЕНИЯ:

Частная собственность

Цена за все:

150 000 000 RUB

Общий МАП: 1 500 000

(данный МАП является минимальным, при оптимизации арендаторов арендный поток можно значительно увеличить)

Общий ГАП:

18 000 000

Окупаемость:

8.4 года

Доходность:

11.88%

Планировка

Прилепа Андрей

Ваш брокер по работе с клиентами

Найдите лучшее место
для жизни, бизнеса, инвестиций

Оставьте свои контакты — с вами свяжется руководитель отдела для презентации нужного вам объекта

Похожие объекты