Id 156323

МО, Томилино пгт, ул. Гаршина, 11с3 / Продажа / ТЦ / 5504 кв.м.

адрес посёлок городского типа Томилино, улица Гаршина, 11с3

Арендный бизнес
Многофункциональный
С отдельным входом
Торговая
ТЦ

Окупаемость: 7.8 года

Доходность:12.77%

550 000 000 RUB | за все

(за 1 м2 — 99 931 RUB)

площадь 5 503.8 м2

QR код Qr код

Предлагается в продажу Торгово-развлекательный комплекс "РТС Томилино " класса B, по адресу: МО, Томилино пгт, ул. Гаршина, 11с3.

Складской комплекс «РТС» Томилино - современное 4-х этажное здание, расположенное в непосредственной близости от Егорьевского шоссе. Высокий автомобильный и пешеходный трафик. Хорошо развита доступность общественного транспорта. ПГТ Томилино - крупнейший населённый пункт, расположенный в самом сердце Люберецкого района.
Окружение включаюет в себя многоэтажную жилую застройку с двумя микрорайонами Экопарк и Птицефабрика и ряд деревень и поселков: Егорово, Мирный, Чкалово, Часово, Токарёво, Хлыстово, Жилино-1 и 2, Кирилловка. Рядом находятся жилые комплексы: Красково, Новокрасково, Новотомилино, Гоголя-2, Олимпийский, Цветной бульвар.

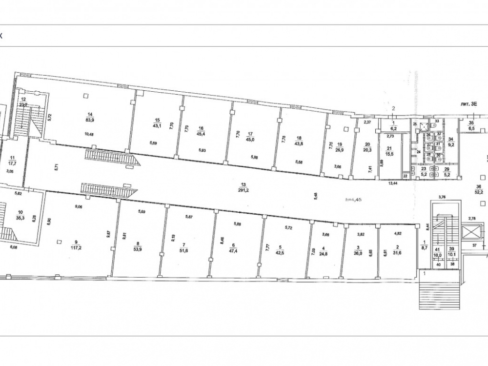
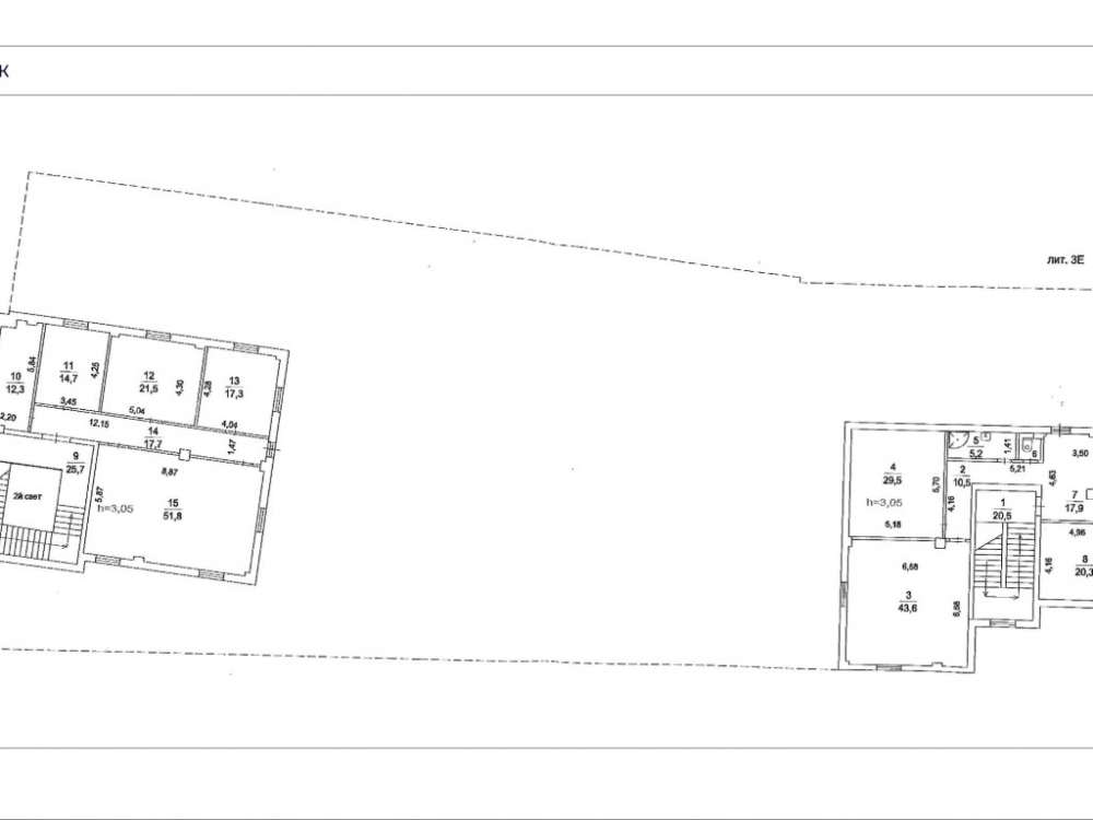
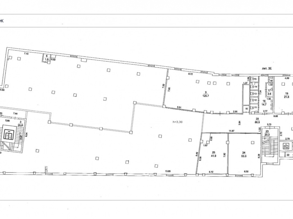
Имеется большая наземная парковка на прилегающей территории. Объект состоит из 4-х надземных и 1 подземного этажей, общей площадью 5 503,8 м2. Электрическая мощность - 250 кВт, грузовой и пассажирские лифты, высота потолков: подвал - 3,43 м, 1-й этаж - 4,45 м, 2-й этаж - 3,30 м, 3-й этаж - 3,30 м, 4-й этаж - 3,05 м.

Коммерческие условия:
Стоимость: 550 000 000 рублей, включая НДС.
Стоимость за кв.м: 99 931 рублей.
МАП: 5 860 000 рублей.
Окупаемость: 8 лет.

Технические характеристики

Тип здания: Арендный бизнес,Многофункциональный,С отдельным входом,Торговая,ТЦ

Общая площадь: 5503.8  м2

Этаж: 1

Всего этажей: 4

Электрическая мощность: 250 кВт.

Высота потолков: подвал - 3,43 м, 1-й этаж - 4,45 м, 2-й этаж - 3,30 м, 3-й этаж - 3,30 м, 4-й этаж - 3,05 м.

Парковка: Есть своя.

Коммерческие условия

Цена за все: 550 000 000 RUB

ФОРМА ВЛАДЕНИЯ: ООО на НДС.

Общий МАП: 5 860 000 RUB (данный МАП является минимальным, при оптимизации арендаторов арендный поток можно значительно увеличить)

Общий ГАП: 70 320 000 RUB

Окупаемость: 7.8 года

Доходность: 12.77%

карта

Расположение

Адрес: посёлок городского типа Томилино, улица Гаршина, 11с3

Округ: Юго-Восточный административный округ

Близость метро: Люберцы,Томилино

Транспортная доступность: Хорошо развита доступность общественного транспорта.

Окружение

Торговое окружение: Большое

Адрес:

посёлок городского типа Томилино, улица Гаршина, 11с3

Округ:

Юго-Восточный административный округ

Близость метро:

Люберцы,Томилино

Транспортная доступность:

Хорошо развита доступность общественного транспорта.

карта

Торговое окружение:

Большое

Общая площадь:

5503.8  м2

Этаж:

1

Всего этажей:

4

Тип:

Арендный бизнес,Многофункциональный,С отдельным входом,Торговая,ТЦ

Электрическая мощность:

250 кВт.

Высота потолков:

подвал - 3,43 м, 1-й этаж - 4,45 м, 2-й этаж - 3,30 м, 3-й этаж - 3,30 м, 4-й этаж - 3,05 м.

Парковка:

Есть своя.

ФОРМА ВЛАДЕНИЯ:

ООО на НДС.

Цена за все:

550 000 000 RUB

Общий МАП: 5 860 000

(данный МАП является минимальным, при оптимизации арендаторов арендный поток можно значительно увеличить)

Общий ГАП:

70 320 000

Окупаемость:

7.8 года

Доходность:

12.77%

Планировка

Павел

Ваш брокер по работе с клиентами

Найдите лучшее место
для жизни, бизнеса, инвестиций

Оставьте свои контакты — с вами свяжется руководитель отдела для презентации нужного вам объекта

Похожие объекты