Id 156338

Пресненская набережная, д. 6 с.2/190,3м2/ Продажа офиса с арендатором

адрес Москва, Пресненская набережная, 6с2

Арендный бизнес
Офис

Окупаемость: 12.8 лет

Доходность:7.79%

245 471 776 RUB | за все

(за 1 м2 — 1 289 920 RUB)

площадь 190.3 м2

QR код Qr код

В продажу предлагается Видовой офис на 52 этаже МФК "Империя", с готовым арендным бизнесом, расположенный по адресу: (ЦАО) Пресненская набережная, д. 6 с.2. . В помещении выполнен высококачественный ремонт в современном стиле. Высокий пешеходный и автомобильный трафик, деловая активность района.
Арендатор - компания, занимающаяся фармацевтикой

Технические характеристики:
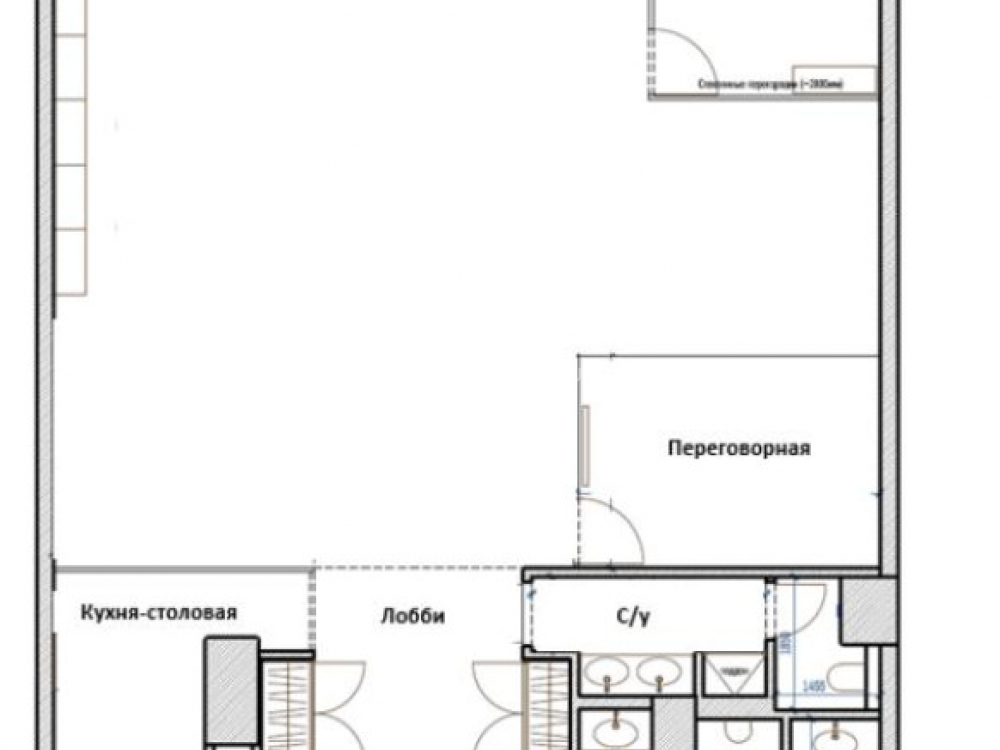
Общая площадь - 190,3м2, включает в себя : общее пространство, зона ресепшн, 2 просторных санузла, кухню, кабинет руководителя, переговорную комнату и небольшую серверную. Дополнительно предлагается подсобное помещение на этаже , площадью 18,2м2.

Коммерческие условия:
Стоимость помещения - 245 471 776 в т.ч. НДС
Стоимость за кв.м - 1 289 920 рублей.
МАП: 1 600 000 рублей, в том числе НДС
ГАП: 19 200 000 рублей, в том числе НДС
Индексация плавающая 7-8%

Технические характеристики

Тип здания: Арендный бизнес,Офис

Общая площадь: 190.3  м2

Этаж: 52

Всего этажей: 60

Электрическая мощность: по запросу

Высота потолков:

Парковка: паркинг

Коммерческие условия

Цена за все: 245 471 776 RUB

ФОРМА ВЛАДЕНИЯ: ООО с НДС

Общий МАП: 1 600 000 RUB (данный МАП является минимальным, при оптимизации арендаторов арендный поток можно значительно увеличить)

Общий ГАП: 19 200 000 RUB

Окупаемость: 12.8 лет

Доходность: 7.79%

карта

Расположение

Адрес: Москва, Пресненская набережная, 6с2

Округ: Центральный административный округ

Близость метро: Деловой центр

Транспортная доступность: -

Окружение

Торговое окружение: -

Адрес:

Москва, Пресненская набережная, 6с2

Округ:

Центральный административный округ

Близость метро:

Деловой центр

Транспортная доступность:

-

карта

Торговое окружение:

-

Общая площадь:

190.3  м2

Этаж:

52

Всего этажей:

60

Тип:

Арендный бизнес,Офис

Электрическая мощность:

по запросу

Высота потолков:

Парковка:

паркинг

ФОРМА ВЛАДЕНИЯ:

ООО с НДС

Цена за все:

245 471 776 RUB

Общий МАП: 1 600 000

(данный МАП является минимальным, при оптимизации арендаторов арендный поток можно значительно увеличить)

Общий ГАП:

19 200 000

Окупаемость:

12.8 лет

Доходность:

7.79%

Планировка

Назарова Олеся

Ваш брокер по работе с клиентами

Найдите лучшее место
для жизни, бизнеса, инвестиций

Оставьте свои контакты — с вами свяжется руководитель отдела для презентации нужного вам объекта

Похожие объекты