Id 656

ЮВАО, г. Москва, Паперника 7к2/ 980,3 кв.м. / Продажа арендного бизнеса, Магнит

адрес Москва, Паперника 7к2

Арендный бизнес

Окупаемость: 10.5 года

Доходность:9.52%

320 000 000 RUB | за все

(за 1 м2 — 326 431 RUB)

площадь 980.3 м2

QR код Qr код

Продается арендный бизнес, торговое помещение с сетевым арендатором, расположенное по адресу: г. Москва, улица Паперника, дом 7, корпус 2.
Объект находится в нескольких минутах ходьбы от м. Окская (380 м).

Развитый жилой массив.
Встроенно-пристроенное помещение (1 этаж жилого 12-этажного дома) располагается на первой линии.
Своя парковка и выделенная зона разгрузки-погрузки. Хорошая проходимость.

Торговое окружение: "Пятерочка", "Перекресток", Ресторан, гостиница, аптеки, ПВЗ, салоны красоты, фитнес-клуб, сетевые арендаторы сферы услуг.

Технические характеристики:
Помещение 1967 года постройки.
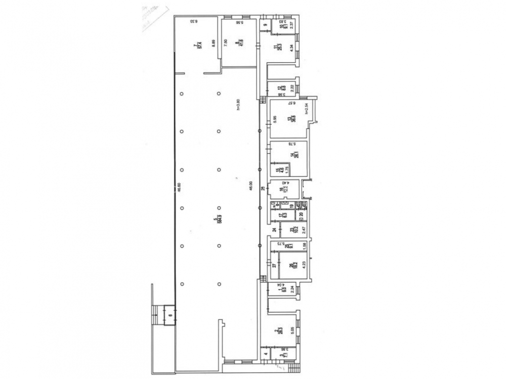
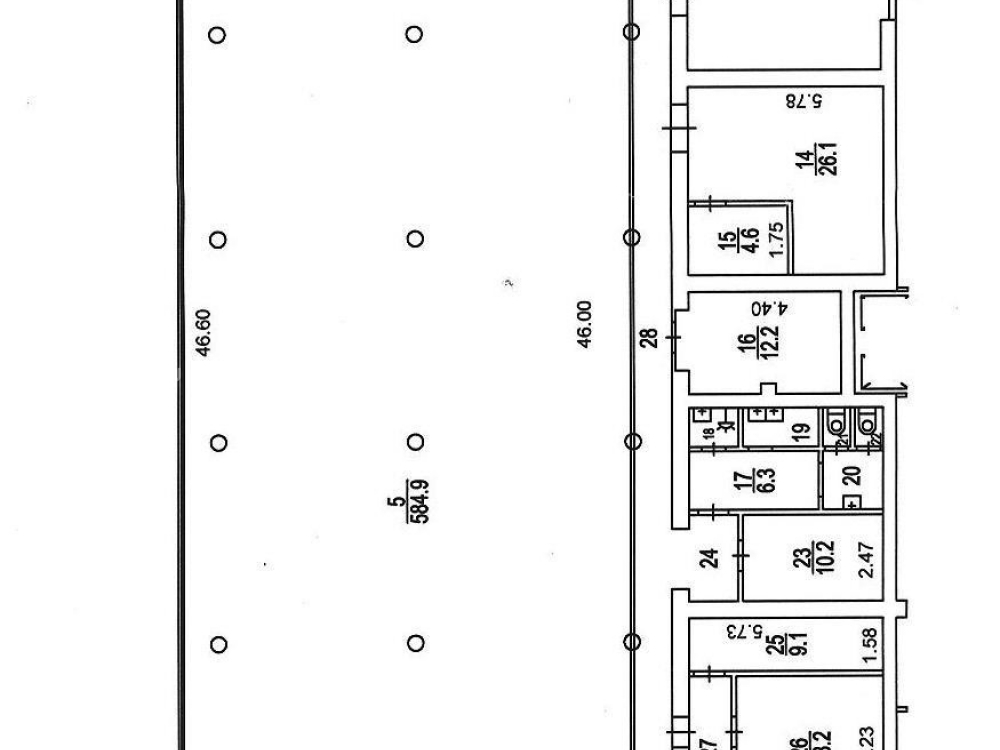
Общая площадь 980,3 м2. Энергоснабжение 100 кВт. Высота потолков - 3 метра. Центральные коммуникации. Кондиционирование: сплит-системы. Парковка городская. Вход оборудован пандусом, есть зона погрузки/разгрузки.

Арендатор - магазин Магнит, Магнит дарк стор. Долгосрочный договор аренды.
МАП - 2 557 008 руб. с НДС, ГАП - 30 684 096 руб. с НДС.
Срок окупаемости - 10,5 лет

Коммерческие условия:
Стоимость объекта: 320 000 000 рублей.
НДС 20% в размере 53,3 млн. ₽ возвращается покупателю на общей системе налогообложения.
Стоимость за м.кв. 326 430 рублей

Технические характеристики

Тип здания: Арендный бизнес

Общая площадь: 980.3  м2

Этаж: 1

Всего этажей: 12

Электрическая мощность: 100 кВт

Высота потолков: 3 м

Парковка: Городская парковка напротив помещения

Коммерческие условия

Цена за все: 320 000 000 RUB

ФОРМА ВЛАДЕНИЯ: -

Общий МАП: 2 557 008 RUB (данный МАП является минимальным, при оптимизации арендаторов арендный поток можно значительно увеличить)

Общий ГАП: 30 684 096 RUB

Окупаемость: 10.5 года

Доходность: 9.52%

карта

Расположение

Адрес: Москва, Паперника 7к2

Округ: Юго-Восточный административный округ

Близость метро: Рязанский проспект

Транспортная доступность: м. Окская (380 м)

Окружение

Торговое окружение: развитое

Адрес:

Москва, Паперника 7к2

Округ:

Юго-Восточный административный округ

Близость метро:

Рязанский проспект

Транспортная доступность:

м. Окская (380 м)

карта

Торговое окружение:

развитое

Общая площадь:

980.3  м2

Этаж:

1

Всего этажей:

12

Тип:

Арендный бизнес

Электрическая мощность:

100 кВт

Высота потолков:

3 м

Парковка:

Городская парковка напротив помещения

ФОРМА ВЛАДЕНИЯ:

-

Цена за все:

320 000 000 RUB

Общий МАП: 2 557 008

(данный МАП является минимальным, при оптимизации арендаторов арендный поток можно значительно увеличить)

Общий ГАП:

30 684 096

Окупаемость:

10.5 года

Доходность:

9.52%

Планировка

Шагитов Марат

Ваш брокер по работе с клиентами

Найдите лучшее место
для жизни, бизнеса, инвестиций

Оставьте свои контакты — с вами свяжется руководитель отдела для презентации нужного вам объекта

Похожие объекты