Id 155991

4-я Гражданская ул., 33А - 303 кв. м. - Продажа / готовый Арендный Бизнес / Пятёрочка

адрес Москва, 4-я Гражданская улица, 33А

Арендный бизнес
С отдельным входом
Торговая
Жилой комплекс (мфк)

Окупаемость: 11 года

Доходность:9.09%

129 000 000 RUB | за все

(за 1 м2 — 425 743 RUB)

площадь 303.0 м2

QR код Qr код

Продажа готового Арендного Бизнеса в ЖК премиум-класса «Вдохновение». Адрес: г. Москва, ВАО, р-н Богородское, 4-я Гражданская ул., 33А. Ближайшие станции метро: Бульвар Рокоссовского – 16 мин. пешком, Преображенская площадь и Белокаменная – 21 мин пешком. Густонаселенный престижный район с развитой инфраструктурой. Идеальное расположение – первая линия на оживленной улице с высоким пешеходным трафиком. Остановки наземного транспорта в 3-5 минутах ходьбы. Платежеспособная аудитория – жители ЖК «Вдохновение» и соседних домов.

Технические характеристики:
Помещение общей площадью – 303 кв. м., 1 этаж. Отдельный вход. Витринное остекление. Высота потолков – 5 м. Электричество: 85 кВт (с возможностью увеличения). Отделка: чистовая. Отопление: автономное. Парковка: 50 мест, в том числе для грузового транспорта.

Коммерческие условия:
Стоимость объекта: 129 000 000 рублей.
Стоимость за 1 кв. м.: 425 742 рублей.
Арендатор: сетевой супермаркет «Пятёрочка»,
МАП: 980 000 рублей. ГАП: 11 760 000 рублей.
Долгосрочный договор аренды с апреля 2025 г. до 2032 г.
РТО: 6%.
Индексация аренды +6% ежегодно
Окупаемость: 10.9 лет.

Технические характеристики

Тип здания: Арендный бизнес,С отдельным входом,Торговая,Жилой комплекс (мфк)

Общая площадь: 303  м2

Этаж: 1

Всего этажей: 27

Электрическая мощность: 85 кВт

Высота потолков: 5 м

Парковка: паркинг на 50 мест

Коммерческие условия

Цена за все: 129 000 000 RUB

ФОРМА ВЛАДЕНИЯ: собственность

Общий МАП: 980 000 RUB (данный МАП является минимальным, при оптимизации арендаторов арендный поток можно значительно увеличить)

Общий ГАП: 11 760 000 RUB

Окупаемость: 11 года

Доходность: 9.09%

карта

Расположение

Адрес: Москва, 4-я Гражданская улица, 33А

Округ: Восточный административный округ

Близость метро: Белокаменная,Бульвар Рокоссовского,Преображенская площадь

Транспортная доступность: в пешей доступности

Окружение

Торговое окружение: развитое торговое окружение

Адрес:

Москва, 4-я Гражданская улица, 33А

Округ:

Восточный административный округ

Близость метро:

Белокаменная,Бульвар Рокоссовского,Преображенская площадь

Транспортная доступность:

в пешей доступности

карта

Торговое окружение:

развитое торговое окружение

Общая площадь:

303  м2

Этаж:

1

Всего этажей:

27

Тип:

Арендный бизнес,С отдельным входом,Торговая,Жилой комплекс (мфк)

Электрическая мощность:

85 кВт

Высота потолков:

5 м

Парковка:

паркинг на 50 мест

ФОРМА ВЛАДЕНИЯ:

собственность

Цена за все:

129 000 000 RUB

Общий МАП: 980 000

(данный МАП является минимальным, при оптимизации арендаторов арендный поток можно значительно увеличить)

Общий ГАП:

11 760 000

Окупаемость:

11 года

Доходность:

9.09%

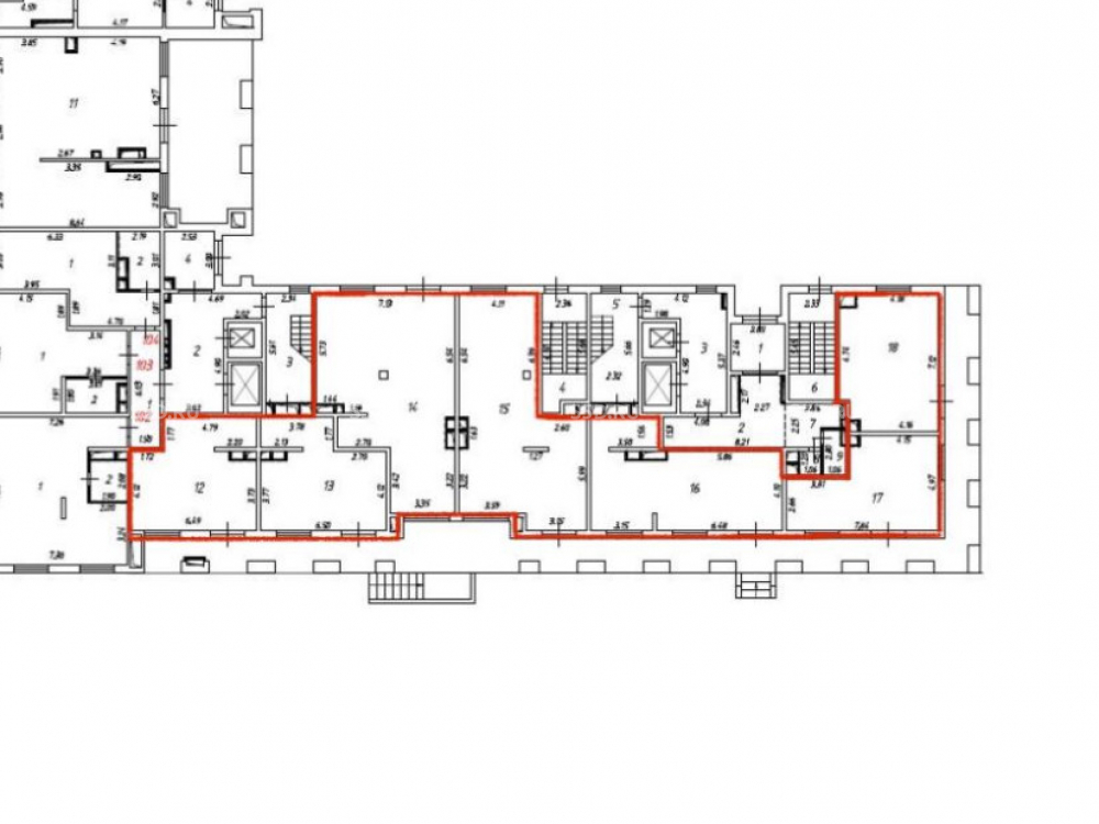
Планировка

Степанов Анатолий

Ваш брокер по работе с клиентами

Найдите лучшее место
для жизни, бизнеса, инвестиций

Оставьте свои контакты — с вами свяжется руководитель отдела для презентации нужного вам объекта

Похожие объекты