Id 2723

Москва, ЦАО, Барыковский переулок, 7 / 560 кв.м / Продажа особняка/

адрес г.Москва, ЦАО, Барыковский переулок, 7

Особняк/здание

1 890 000 000 RUB | за все

(за 1 м2 — 3 375 000 RUB)

площадь 560.0 м2

QR код Qr код

Продаётся отдельно стоящее здание, расположенное по адресу: г. Москва, ЦАО, Барыковский переулок, 7. Самое сердце Москвы, в тихом переулке, соединяющем улицы Остоженка и Пречистенка. Данный район, находящийся в непосредственной близости от Кремля и Храма Христа Спасителя, является наиболее престижным в столице и часто именуется "Золотая миля". Первая линия.
Ближайшие станции метро: м. "Парк Культуры" и м. "Кропоткинская"- 7 минут пешком.

Технические параметры:
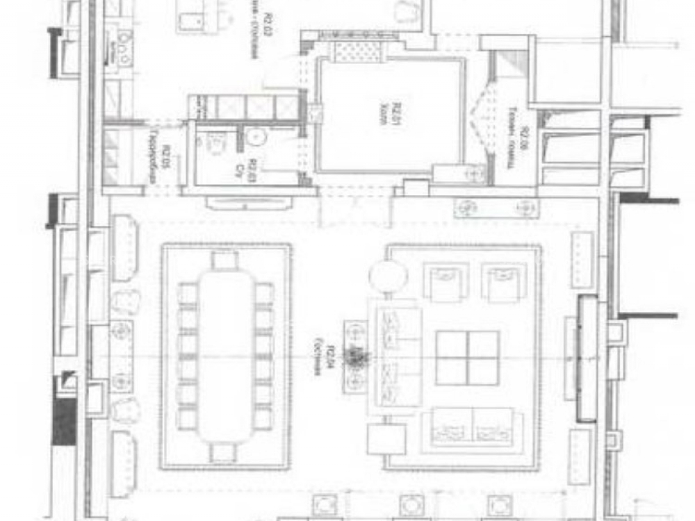
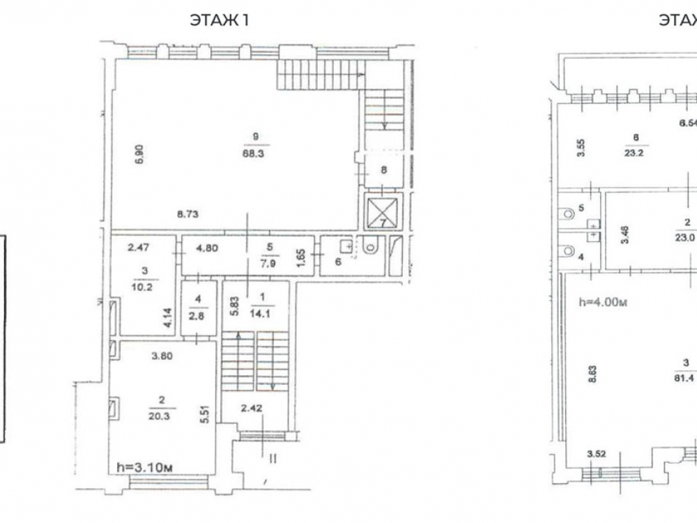
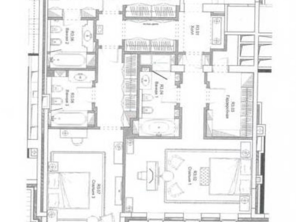
Общая площадь зелёного здания: 560 кв.м. (без учёта площадей паркинга, балконов и террас). Площадь открытых террас - 45 кв.м. 5 уровней: 1-4-й этажи и подземный паркинг. Выделенная электрическая мощность - 70 кВт. Высота потолков: 4 м. Кабинетная планировка. Состояние: дизайнерский ремонт. Особняк имеет 3 спальни. Лифт - есть. Количество машиномест - 3 (под лимузины представительского класса). Прекрасный вариант для резиденции, офиса.

Коммерческие условия:
Стоимость объекта - 2 000 000 000 рублей;
Стоимость в рублях: 1 890 000 000 рублей.
Стоимость за 1 кв.м. - 3 375 000 рубля.
Собственность - Физ.лицо.
Форма сделки - ДКПН.

Технические характеристики

Тип здания: Особняк/здание

Общая площадь: 560  м2

Этаж: 1

Всего этажей: 4

Электрическая мощность: 70 кВт

Высота потолков: 4 м

Парковка: 6 м.м.

Коммерческие условия

Цена за все: 1 890 000 000 RUB

ФОРМА ВЛАДЕНИЯ: соб

карта

Расположение

Адрес: г.Москва, ЦАО, Барыковский переулок, 7

Округ: Центральный административный округ

Близость метро: Кропоткинская,Парк культуры

Транспортная доступность: Ближайшие станции метро: м.

Окружение

Торговое окружение: -

Адрес:

г.Москва, ЦАО, Барыковский переулок, 7

Округ:

Центральный административный округ

Близость метро:

Кропоткинская,Парк культуры

Транспортная доступность:

Ближайшие станции метро: м.

карта

Торговое окружение:

-

Общая площадь:

560  м2

Этаж:

1

Всего этажей:

4

Тип:

Особняк/здание

Электрическая мощность:

70 кВт

Высота потолков:

4 м

Парковка:

6 м.м.

ФОРМА ВЛАДЕНИЯ:

соб

Цена за все:

1 890 000 000 RUB

Планировка

Назарова Олеся

Ваш брокер по работе с клиентами

Найдите лучшее место
для жизни, бизнеса, инвестиций

Оставьте свои контакты — с вами свяжется руководитель отдела для презентации нужного вам объекта

Похожие объекты